Faza 2 - Ghidigeni Parc Residance - Proiect Finalizat- Dezvoltator

272.000 € + TVA

Bragadiru, Județul Ilfov

Nr. cam.:
5
Sup. utilă:
215 mp
Sup. teren:
670 mp
Tip prop.:
Individuală
  • • Comision 0%
  • • Locație exactă
  • • Vizionare prin apel video

Descriere casă

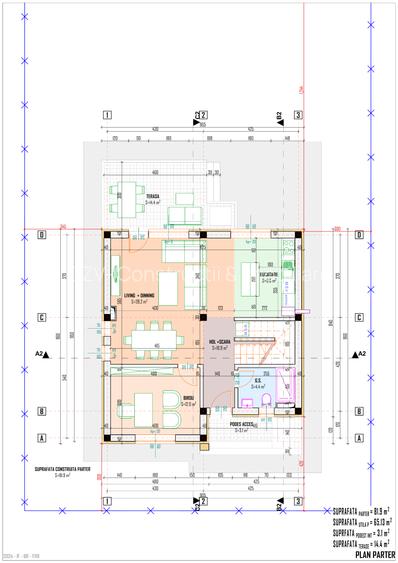
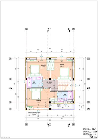
? Vile Individuale Premium în Bragadiru – Lângă Parcul Ghidigeni ? Spațiu. Natură. Siguranță. Calitate. Un proiect rezidențial exclusivist, compus din 12 vile individuale, situat într-una dintre cele mai atractive și promițătoare zone din Bragadiru – la doar 1 minut de mers pe jos de noul Parc Ghidigeni, un spațiu verde modern, perfect pentru familii. ? Locuințe construite pentru viitor ? Suprafață utilă generoasă, compartimentare echilibrată și funcțională: Parter: living aerisit, bucătărie spațioasă, baie, spațiu tehnic/depozitare, ieșire pe terasă de 14 mp; Etaj: 3 dormitoare și 2 băi, dintre care unul matrimonial cu baie proprie și acces la o terasă de 6 mp; Mansardă: open space cu scară de beton, ideală pentru birou, studio creativ, sală de sport sau cameră de joacă; Curte proprie de aproximativ 400 mp + cotă parte din drum de acces de 140 mp. ? Calitate de construcție superioară Structură integrală din cărămidă; Tâmplărie tripan, termoizolație performantă; Acoperiș cu țiglă metalică de calitate premium; Finisaje la alegere, conforme cu cele mai recente tendințe în design interior. ? Un cartier elegant, aproape de natură Proiectul beneficiază de gard perimetral cu zid și fier forjat; Acces securizat, cu barieră automată și sistem de supraveghere video 24/7; Posibilitate de amenajare peisagistică: gazon, arbori decorativi, alei și zone de relaxare; ? Locație strategică – zonă verde, dar conectată urban Doar câteva minute până la școli, grădinițe, supermarketuri și transport în comun; Acces facil către București prin Prelungirea Ghencea, bulevardul 1 Mai sau Centura Capitalei; Parcul Ghidigeni din vecinătate – complet reamenajat, cu loc de joacă modern, alei pietonale, spații verzi și mobilier urban nou, ideal pentru relaxare sau plimbări în aer liber. ? Programează o vizionare acum: ? Descoperă locuința care oferă cu adevărat spațiu, intimitate și valoare pe termen lung.
Citește mai mult Citește mai puțin
Încălzire prin pardoseală 4 Parcări

Detalii casă

ID anunț: X76K010G6 Copiat! 248244578 Copiat!
Actualizat în: 20 Februarie 2026
Suprafață construită: 82 mp
Suprafață desfășurată: 270 mp
Nr. bucătării: 1
Nr. băi: 4
Nr. balcoane / Terase / Logii: 1
Nr. terase: 1
Suprafață terase: 24 mp
Nr. fronturi stradale: 1
Front stradal: 16 m
Învelitoare acoperiș: Tabla
An construcție: 2025 (Finalizată)
Structură rezistență: Beton
Regim înălțime: P+1E+M

Utilități

Destinație
Rezidențial
Pereți
Faianță Vinarom
Podele
Parchet Gresie
Ușă intrare
Metal
Uși interior
Celulare Lemn Sticlă
Izolații termice
Exterior Interior
Ferestre cu geam termopan
PVC
Contorizare
Apometre Contor gaz
Alte spații utile
Spațiu depozitare Dressing WC Serviciu
Utilități
Curent Curent trifazic Apă Canalizare CATV
Internet
Fibră optică
Servicii imobil
Supraveghere video
Amenajare străzi
Asfaltate Mijloace de transport în comun Iluminat stradal
Comision
0%

Certificat energetic:

Clasa energetică: A

Vecinătăți:

Ghidiceni Parc.,Lidl Ghidigeni..

Alte detalii:

Zona este într-o continuă dezvoltare, cu noi proiecte de infrastructură și modernizare, ceea ce atrage noi investiții și schimbă treptat aspectul arhitectural.

Viitoarele proiecte includ extinderea infrastructurii rutiere și dezvoltarea unor complexe rezidențiale cu facilități integrate.

În concluzie, Prelungirea Ghencea reflectă o tranziție de la o zonă periferică, cu case individuale, la un spațiu urban modern, cu ansambluri rezidențiale de amploare. Arhitectura zonei este în continuă transformare, combinând elemente tradiționale cu influențe contemporane

Alte detalii despre preț:

pret final tva inclus 329000

Disponibilitate proprietate:

Disponibila pentru contactare si personalizare

Puncte de interes

Mijloace transport
bus-station
Primacom
Stații autobuz aprox. 1302 m
bus-station
Statia Cartier Fortuna, linia 302
Stații autobuz aprox. 1749 m
bus-station
Campului
Stații autobuz aprox. 1899 m
bus-station
Ansamblul Primavara
Stații autobuz aprox. 1938 m
Școală
school
Scoala PROINGENIO
Școli aprox. 644 m
kindergarten
Watoto
Gradinițe aprox. 1311 m
Recreere
supermarket
Shop&Go
Supermarket aprox. 842 m
supermarket
Shop & Go / Mega Image
Supermarket aprox. 849 m
park
Parc
Parcuri aprox. 951 m
restaurant
Restaurantul Latin
Restaurant aprox. 1114 m

Detalii despre preț și costuri

Costuri cu achiziția

Fără credit
14.202 RON
Credit ipotecar
16.712 RON
Noua casă
1.817 RON+ taxe notariale

i

Costuri adiționale mai puțin știute la achiziție: taxe notariale, comisioane etc.

Proprietăți recomandate

Detalii de contact

Abonează-te la newsletter să fii primul care primește cele mai noi recomandări de proprietăți și sfaturi de la experți.

CONTACT

Creează alertă

Salvează căutarea ca să primești pe email ultimele anunțuri publicate

Case individuale cu 4+ camere de vânzare în Bragadiru, Județul Ilfov