Casa individuala Centru Civic Brasov

497.000 €

Centrul Civic, Brașov

Nr. cam.:
4
Sup. utilă:
138,6 mp
Sup. teren:
365 mp
Tip prop.:
Casă individuală
  • • Comision 0%
  • • Locație aproximativă

Descriere casă

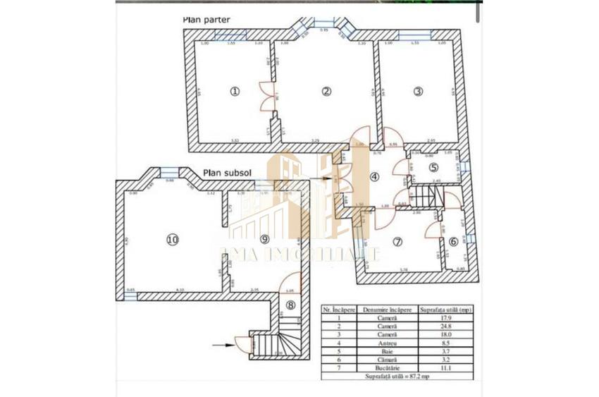
LMA Imobiliare va propune casa individuala constructie 1940, cu structura de caramida renovata integral in 2025,cu regim de inaltime D+P+pod, cu o suprafata utila de 138,6 mp. Proprietatea este amplasata pe un teren cu o suprafata de 365 mp si are urmatoarea decomandare: Parter-87.2 mp: -Hol de acces si decomandare cu acces catre demisol -Bucatarie cu camara -Baie cu dus si aerisire naturala -Dormitor -Living -Dormitor Demisol-51.4 mp: -Baie de serviciu -2 Camere Pod-aproximativ 50 mp. Mentionam ca si zona de demisol a fost renovata in integralitate si semimobilata asa cum se vede in foto.Partea de pod ofera posibiltate de mansardare si obtinerea unui spatiu util generos cu acces din casa. Este complet mobilată și utilată conform foto si descriere si beneficiaza de supraveghere video. Acoperisul este aproape nou cu tigla de calitate,podelele cu parchet din lemn,mobilierul este Mobexpert si import Italia din lemn masiv care adaugă un plus de confort și eleganță. Casa este luminoasa, iar finisajele sunt de înaltă calitate. Are instalatiile electrice, sanitare, fibra internet si televiziune complet schimbate, centrala noua Ariston, beneficiaza de acces auto(portile se pot automatiza) si locuri de parcare in fata casei. Gradina, in suprafata de 465 mp, are gazon rulou, lumini solare pe stalp, cascada de apa, palmieri, pomi fructiferi si vita de vie. Accesul auto in curte si locurile de parcare din fata casei disponibile ofera un alt avantaj important. Priveliste deosebita cu vedere catre dealul Tampa, orientare excelenta. De asemenea a fost construit un foisor superb cu magazie. Gazonul este intretinut cu robot controlat din aplicatie pe telefon cu harta presatbilita. Casa si gradina au fost renovate in totalitate in decursul anului 2025 cu simt de raspundere fiind locuinta permanenta a actualilor proprietari. Locația este avantajoasă, situată în Centrul Civic ,Brașov, zona de maxim interes in Brasov, fiind extrem de linistita si aproape de centre comerciale,scoli,piata,parcuri,liceu,centrul vechi al Brasovului, cafenele, afterschool, restaurante, magazine. Accesul la transportul public este extrem de ușor in toate directiile, având stații de autobuz și gara la distanță mică. Daca aceasta proprietate se incadreaza in criteriile dumneavoastra de cautare va asteptam la vizionare! LMA Imobiliare : Transformam visurile in adrese!
Citește mai mult Citește mai puțin
Mobilat Grădină Curte Calorifere 2 Parcări Renovat

Detalii casă

ID anunț: XF0C1102G Copiat! 275374495 Copiat!
Actualizat în: 30 Martie 2026
Suprafață construită: 140 mp
Nr. bucătării: 1
Nr. băi: 2
Nr. terase: 1
An construcție: 1940 (Finalizată)
Structură rezistență: Cărămidă

Utilități

Pereți
Vopsea lavabilă Faianță
Podele
Parchet Gresie
Ușă intrare
Lemn
Uși interior
Lemn
Izolații termice
Exterior
Ferestre cu geam termopan
PVC
Contorizare
Apometre Contor gaz
Bucătărie
Mobilată Utilată
Electrocasnice
Mașină de spălat Frigider Mașină spălat vase TV Cuptor microunde Hotă
Diverse
Scară interioară
Facilități imobil
Interfon
Utilități
Curent Apă Canalizare Gaze CATV
Internet
Fibră optică
Amenajare străzi
Asfaltate Betonate Iluminat stradal Mijloace de transport în comun
Comision
0%

Certificat energetic:

Clasa energetică: B

Puncte de interes

Mijloace transport
bus-station
Statia "Mircea cel Batran", linia 2,36,7,30,51
Stații autobuz aprox. 107 m
bus-station
Mircea cel Batran
Stații autobuz aprox. 135 m
train-station
Gara Brasov Călători CFR
Stații tren aprox. 721 m
train-station
Statia CFR Brasov
Stații tren aprox. 741 m
Școală
kindergarten
Gradinita nr. 14A
Gradinițe aprox. 203 m
kindergarten
Gradinita cu program normal nr. 14 A (fosta nr. 26)
Gradinițe aprox. 215 m
school
Colegiul National "Dr Ioan Mesota"
Școli aprox. 277 m
university
Corpul V
Universități aprox. 605 m
Recreere
park
Parc
Parcuri aprox. 173 m
sports-ground
Teren sportiv
Terenuri sport aprox. 287 m
supermarket
Carrefour
Supermarket aprox. 411 m
mall
Magazinul Star
Mall aprox. 1606 m

Detalii despre preț și costuri

Costuri cu achiziția

Fără credit
19.973 RON
Credit ipotecar
23.196 RON
Noua casă
2.674 RON+ taxe notariale

i

Costuri adiționale mai puțin știute la achiziție: taxe notariale, comisioane etc.

Proprietăți similare

Casă individuală cu 4 camere în Centrul Civic
497.000 €
Brașov, Centrul Civic
4 camere
138 mp
465 mp teren
Casă individuală cu 5 camere în Centrul Civic
478.000 €
Brașov, Centrul Civic
5 camere
138 mp
465 mp teren
Casă individuală cu 4 camere în Centrul Civic
497.000 €
Brașov, Centrul Civic
4 camere
134 mp
465 mp teren

Detalii de contact

LMA Imobiliare

Constantin Lambuta-Mihai manager

5.00(3 review-uri)

LMA Imobiliare
PRO

Abonează-te la newsletter să fii primul care primește cele mai noi recomandări de proprietăți și sfaturi de la experți.

CONTACT

Creează alertă

Salvează căutarea ca să primești pe email ultimele anunțuri publicate

Case individuale cu 4+ camere de vânzare în zona Centrul Civic, Brașov