2

Proiect distinct, din pasiune pentru calitate, Cristian, Brasov

295.119 €

Exterior Est, Brașov

Nr. cam.:
4
Sup. utilă:
120 mp
Sup. teren:
600 mp
Tip prop.:
Individuală
  • • Comision 0%
  • • Locație aproximativă
  • • Vizionare prin apel video

Descriere casă

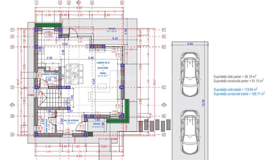
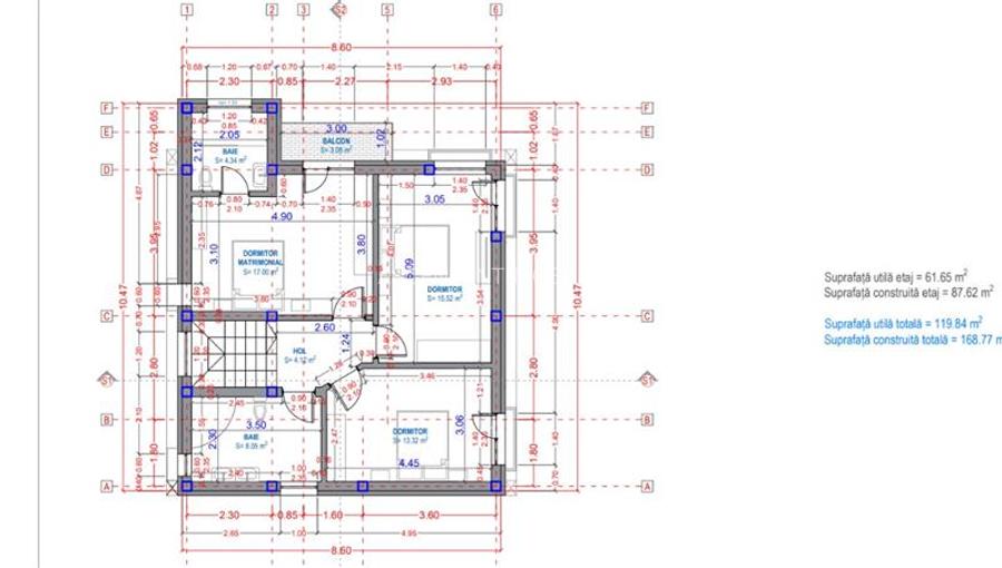
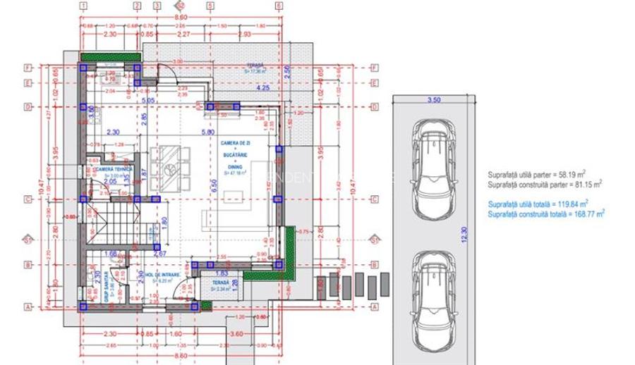
Comision cumparator: 0% ASCENDENT IMOBILIARE propune spre vanzare imobile deosebite, situate in cel mai nou, modern si bine pozitionat cartier rezidential de case, situat in Cristian, la 500 m de Centru - primarie. Complexul ofera un stil de viata aparte, prin vile construite cu materiale si finisaje de calitate superioara, compartimentari spatioase si luminoase si loturi de teren generoase. Este un cartier cu o arhitectura emblematica, cu imobile moderne si complet functionale, a caror design interior si exterior vorbeste de la sine, cu o priveliste deosebita si nu in ultimul rand cu unitati locative care vor creste ca valoare in timp, privind asta ca investitie. Ansamblul ofera beneficiile unei vieti de calitate care ar trebui sa fie firesti si la indemana oricui in lumea moderna si de aceea dezvoltatorul vine in intampinare cu flexibilitate si conditii avantajoase de achizitie, atat pentru persoane fizice, cat si juridice. Cartierul se prezinta pe o configuratie de 24 de vile spectaculoase, din care opt deja avansate, construite pe loturi de 600 mp de teren, orientate spre Sud, cu vedere spre Postavaru, Bucegi, cetatea Rasnov si nu numai. Imobilele valorifica fiecare centimetru patrat din aria utila si se desfasoara pe o compartimentare atractiva, unde la parter avem windfag, baie de serviciu, dressing, spatii de depozitare sub scara, tip sertare, living cu bucatarie si dining, de peste 47 mp si cu iesire pe terasa si scara interioara, placata cu lemn lacuit, balustrada din sticla securizata si mana curenta din lemn, care ne poarta spre etaj unde identificam trei dormitoare, din care unul cu baie proprie, hol si o baie spatioasa. Din punct de vedere tehnic, structura este din caramida Porotherm de 30 cm, cu stalpi si planseu din beton armat, acoperisul este din tablă Bilka, ce coboara elegant pe fatada imobilului, podul termoizolat cu minim două straturi de vată minerală de 10 cm, la exterior termoizolatie din vata bazaltica de 10 cm cu tencuieli decorative structurate, aticuri izolate cu sort de tabla, incalzire in pardoseala pe toata suprafata utila, balustrade de sticla, , tamplaria este Salamander cu 3 foi si 6 camere, centrala termica Viessmann si multe alte elemente personalizabile. Proprietatile beneficiaza de toate utilitatile, respectiv gaz, apa, curent, canalizare, internet, iluminat public si acces la drum public de 10 m latime, cu trotuare, spatii si rigole de scurgere, in apropiere de statie RAT, magazine, primarie, scoala, gradinite si alte puncte de interes. Din punct de vedere geografic, pozitionare este centrala, avand in vedere accesul facil catre oras, la doar 10 minute, Poiana Brasov, Predeal, Rasnov, Bran, Zarnesti, Ghimbav, Codlea, zone aflate circular in jurul Cristianului. Pretul nu include TVA. Consilier dedicat alesei oferte: domnul George Mosor Telefon WhatsApp:
Citește mai mult Citește mai puțin
Centrală proprie Încălzire prin pardoseală 2 Parcări

Detalii casă

ID anunț: X50611BU8 Copiat! 274802497 Copiat!
Actualizat în: 05 Februarie 2026
Tip tranzacție: De vânzare prin agent
Suprafață construită: 168 mp
Suprafață desfășurată: 168 mp
Nr. bucătării: 1
Nr. băi: 3
Nr. balcoane / Terase / Logii: 1
Nr. terase: 1
Nr. fronturi stradale: 1
Front stradal: 20 m
Învelitoare acoperiș: Tabla
An construcție: 2022 (În construcție)
Structură rezistență: Altele
Etaj: Etaj 1 / 1
Regim înălțime: P+1E
Modalitate de plată: Cash sau Credit

Utilități

Destinație
Rezidențial
Pereți
Faianță Vopsea lavabilă
Podele
Parchet Gresie
Izolații termice
Exterior
Ferestre cu geam termopan
PVC
Utilități
Apă Curent Gaze Canalizare
Internet
Fibră optică
Amenajare străzi
Pietruite
Comision
0%

Certificat energetic:

Clasa energetică: B
Consumul total specific de energie primară: 63 kWh
Indicele de emisii echivalent CO2: 108

Puncte de interes

Mijloace transport
bus-station
Cristian
Stații autobuz aprox. 1423 m
Școală
school
Scoala Generala
Școli aprox. 731 m
kindergarten
Gradinita
Gradinițe aprox. 864 m
Recreere
sports-ground
Teren sportiv
Terenuri sport aprox. 589 m
park
Parc
Parcuri aprox. 797 m
park
Parc
Parcuri aprox. 832 m

Detalii despre preț și costuri

Costuri cu achiziția

Fără credit
Credit ipotecar
Noua casă

i

Costuri adiționale mai puțin știute la achiziție: taxe notariale, comisioane etc.

Acces la informații premium după autentificare
Login Gratuit

Proprietăți similare

Casă individuală cu 4 camere în Exterior Est
258.700 €
Brașov, Exterior Est
4 camere
114 mp
500 mp teren
Casă individuală cu 5 camere în Uzina 2
239.800 €
Brașov, Uzina 2
5 camere
150 mp
500 mp teren
Casă individuală cu 4 camere în Exterior Est
265.000 €
Brașov, Exterior Est
4 camere
123 mp
777 mp teren

Detalii de contact

ASCENDENT IMOBILIARE

George Mosor Sales Associate

5.00(3 review-uri)

ASCENDENT IMOBILIARE
PRO

Abonează-te la newsletter să fii primul care primește cele mai noi recomandări de proprietăți și sfaturi de la experți.

CONTACT

Creează alertă

Salvează căutarea ca să primești pe email ultimele anunțuri publicate

Case individuale cu 4+ camere de vânzare în zona Exterior Est, Brașov