2

Casă individuală la 4 km de Brașov | 730 mp teren - P+E+M

262.000 €

Sud, Brașov

Nr. cam.:
6
Sup. utilă:
200 mp
Sup. teren:
730 mp
Tip prop.:
data_properties.housing_type.detached-house
  • • Locație exactă

Descriere casă

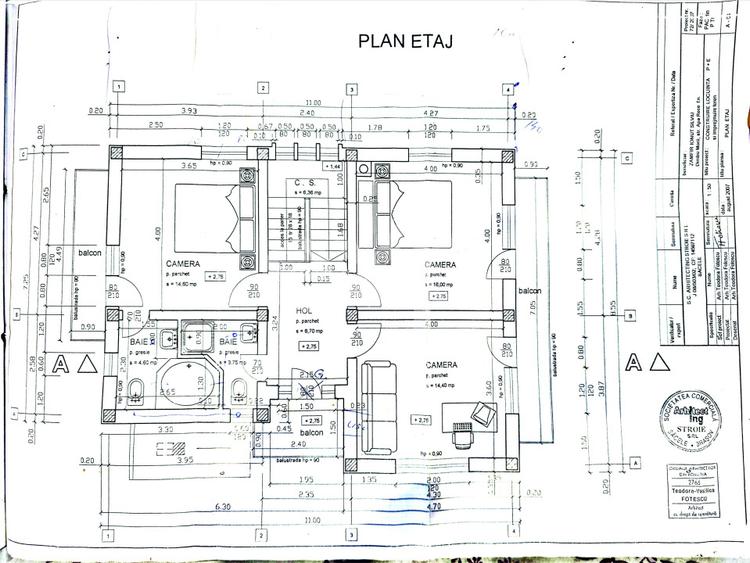
Liniște, natură și discreție – la marginea pădurii în Dâmbul Morii – Str. Apa Rece nr. 5 CE este această proprietate? O casă individuală solid construită, amplasată într-o zonă retrasă și liniștită din Dâmbul Morii, la marginea pădurii, ideală pentru cei care își doresc spațiu, intimitate și un stil de viață aproape de natură, dar cu acces facil către Brașov. Suprafață teren: 698 mp Regim de înălțime: Parter + Etaj + Pod (podul este transformat în spațiu locuibil) Suprafață utilă: aprox. 200 mp Suprafață construită: 276 mp An construcție: 2008 Structură: cărămidă Izolație exterioară: polistiren 10 cm Utilități: complete Încălzire: prin două centrale termice pe gaz, pentru eficiență și redundanță Casa este locuită în prezent și are un nivel de finisaje specific anului construcției, cu un grad de uzură normal, corespunzător utilizării.     Proprietatea are o compartimentare practică, adaptată locuirii permanente: Parter: Living generos cu zonă de dining și acces către terasă Bucătărie separată, cu ieșire directă în curte Dormitor / cameră de oaspeți Baie Hol și spații de depozitare Etaj: Dormitoare luminoase, cu acces la balcoane Băi Hol central Pod: Spațiu amenajat și utilizabil – ideal pentru birou, zonă de relaxare, hobby sau dormitor suplimentar   DE CE este o proprietate diferită? Pentru că nu este o casă „de cartier”, ci o proprietate pentru cei care caută liniște, discreție și contact real cu natura. ✔ Poziționare rară, la marginea pădurii ✔ Zonă aerisită, fără trafic intens ✔ Curte mare, funcțională, nu doar decorativă ✔ Piscină exterioară, ideală pentru sezonul cald ✔ Foișor din lemn cu grătar, perfect pentru timp petrecut în familie ✔ Compartimentare echilibrată și flexibilă ✔ Pod locuibil – un avantaj real, nu doar menționat Această casă nu concurează prin finisaje ultra-moderne, ci prin: amplasare suprafață intimitate stil de viață Proprietatea poate fi folosită în mai multe direcții. ✔ Reședință permanentă pentru o familie care vrea spațiu și liniște ✔ Casă de vacanță aproape de Brașov ✔ Locuință pentru cei care lucrează hibrid și au nevoie de spațiu suplimentar ✔ Ideală pentru iubitorii de drumeții, aer curat și activități outdoor În imediata apropiere se află: Canionul 7 Scări Dealul Bunloc – parapantă, trasee montane acces rapid către Brașov   Aceasta este o proprietate pentru cei care știu exact ce caută: o casă solidă, cu teren generos, într-o zonă liniștită, unde natura, intimitatea și spațiul fac diferența.  
Citește mai mult Citește mai puțin
Acceptă animale de companie Centrală proprie 2 Parcări Zonă de deal / munte

Detalii casă

ID anunț: XG6P0101A Copiat! 274408403 Copiat!
Actualizat în: 06 Martie 2026
Suprafață construită: 276 mp
Nr. bucătării: 1
Nr. băi: 4
Nr. balcoane / Terase / Logii: 2
Nr. terase: 1
Suprafață terase: 15 mp
An construcție: 2008 (Finalizată)
Structură rezistență: Cărămidă
Regim înălțime: P+2E

Utilități

Utilități
Curent Apă Canalizare Gaze

Certificat energetic:

Clasa energetică: B

Puncte de interes

Mijloace transport
bus-station
Statia Dambul Morii. linia 17barat
Stații autobuz aprox. 101 m
bus-station
Halta Timisul de jos, linia 17barat
Stații autobuz aprox. 1641 m
bus-station
Gara Timisul de Jos
Stații autobuz aprox. 1658 m
train-station
Halta CFR Timișul de Jos
Stații tren aprox. 1672 m
Recreere
restaurant
Hanul Dambul Morii
Restaurant aprox. 410 m
restaurant
Casa Ezio
Restaurant aprox. 546 m
park
Parc Aventura
Parcuri aprox. 1943 m
sports-ground
Parc Aventura (escalada copaci)
Terenuri sport aprox. 1946 m

Detalii despre preț și costuri

Costuri cu achiziția

Fără credit
11.894 RON
Credit ipotecar
14.118 RON
Noua casă
1.475 RON+ taxe notariale

i

Costuri adiționale mai puțin știute la achiziție: taxe notariale, comisioane etc.

Proprietăți recomandate

Detalii de contact

EXP REALTY ROMANIA

Nicolae Blaj Team Leader

EXP REALTY ROMANIA
PRO

Abonează-te la newsletter să fii primul care primește cele mai noi recomandări de proprietăți și sfaturi de la experți.

CONTACT

Creează alertă

Salvează căutarea ca să primești pe email ultimele anunțuri publicate

Case individuale cu 4+ camere de vânzare în zona Sud, Brașov