Va prezint o proprietate deosebita amplasata in localitatea Breaza, intr-o zona cu teren drept pe o portiune mare din jurul casei si o pozitie putin retrasa fata de soseaua principala. Este compusa dintr-o casa P+M+pod inalt cu iesire la o terasa acoperita + magazie de 6 mp si o zona de gratar. Terenul este plat si are 331 mp ( 29 m deschidere la strada asfaltata si 11 m latime), cu pomi fructiferi si ornamentali si este delimitat cu tuia inalti care va ofera intimitate in curte. Impartirea este foarte buna si aveti in partea stanga spatiu pentru a parca 2 autoturisme, iar in partea dreapta este o bucata compacta de curte, cu o alee betonata intre casa, magazie si gratar si o ciusmea amplasata langa gratar. Casa a fost construita recent ( in anul 2009 ), pe structura din lemn cu fundatie din beton, este izolata la exterior, tamplaria este din pvc cu geamuri termopan de buna calitate ( culoare maro ), iar acoperisul este cu tabla Lindab.
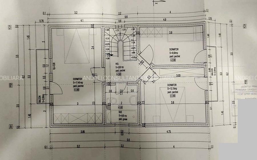
Casa are 137 mp, se vinde complet mobilata si utilata ( cum este in poze ) si are urmatoarea compartimentare:
- Parter : living ( 22 mp ), bucatarie ( 11 mp ), baie cu cabina dus ( 3,6 mp ), camera tehhnica, hol ( 12 mp ) si terasa acoperita ( 12 mp )
- Mansarda: 3 dormitoare decomandate ( 17,4 mp, 12 mp si 8,5 mp ), baie cu cada si bideu ( 4,6 mp ), hol si doua balcoane.
- Pod
Casa este racordata la utilitati, in camere este parchet din lemn masiv, baile si bucataria sunt placate cu gresie si faianta, iar incalzirea se realizeaza cu centrala termica pe gaze si calorifere. Camerele sunt inalte ( si cele din mansarda ), baile au geamuri de aerisire, iar centrala poate fi programata de la distanta ( de cand a fost construita casa a fost incalzita in fiecare iarna si nu exista miros de mucegai sau igrasie ).
Casa este bine intretinuta, complet functionala si dispune de tot ce aveti nevoie. In zona unde este amplasata casa sunt multi copaci, iar vara veti constata diferenta de temperatura fata de un oras de campie si veti aprecia aerul curat.
Localitatea se află în zona subcarpatică, la o altitudine de 380–450 m, pe o terasă situată la o înălțime de 50–60 m deasupra albiei râului Prahova, în partea de sud a Munților Bucegi, în plină zonă subcarpatică, la o altitudine de 380–450 m și este înconjurata de dealuri impadurite ce depășesc 700 de metri altitudine . Localitatea Breaza este situata la o depărtare de 103 km de București, 67 km de Brașov și 45 km nord-vest de Ploiești. Breaza este atestata ca statiune balneo-climaterica din anul 1928, iar calitatea aerului localitatii se datoreaza ozonului si ionilor negativi, cu efect terapeutic si aerul localități este comparat deseori cu cel al stațiunii Davos din Alpii Elvețieni de Nord-Est. Clima orașului Breaza este una temperat-continentală, specific zonelor deluroase, cu ierni mai blânde și veri răcoroase.
Pentu detalii suplimentare ma puteti contacta telefonic, pe Whatsapp sau prin e-mail.
Sediul central - Timișoara
Bulevardul Victor Babeș nr. 2, 300230, Timișoara, România
Tel: +40.374.40.44.98 / Fax: +40.256.401.179
Email: suport@imobiliare.ro
Luni - Vineri 08:00 - 20:00
Punct de lucru - București: Iride Business Park, Bld. Dimitrie
Pompeiu 9-9A, Clădirea B2B,
020335, Sector 2, București, România
CONTACT
Sediul central - Timișoara
Bulevardul Victor Babeș nr. 2, 300230, Timișoara, România
Tel: +40.374.40.44.98 / Fax: +40.256.401.179
Email: suport@imobiliare.ro
Luni - Vineri 08:00 - 20:00
Punct de lucru - București: Iride Business Park, Bld. Dimitrie
Pompeiu 9-9A, Clădirea B2B,
020335, Sector 2, București, România
Sună acum și cere detalii sau programează o vizionare.
Cere detalii prin email
*
*
*
*
Parcări
Terenuri sport
Parcare
aprox.
627 m
Teren sportiv
aprox.
522 m
Înainte să pleci...
Ești sigur că ai văzut și aceste proprietăți?
190.000 €
Județul Prahova, Breaza
5 camere
200 mp
800 mp teren
130.000 €
Județul Prahova, Breaza
5 camere
170 mp
480 mp teren
175.000 €
Județul Prahova, Breaza
5 camere
152 mp
410 mp teren
200.000 €
Județul Prahova, Breaza
5 camere
375 mp
331 mp teren
189.000 €
Județul Prahova, Breaza
5 camere
130 mp
2.380 mp teren
150.000 €
Județul Prahova, Breaza
5 camere
145 mp
2.100 mp teren
Creează alertă
Salvează căutarea ca să primești pe email ultimele anunțuri publicate
Case individuale cu 4+ camere de vânzare în Breaza, Județul Prahova
Cere detalii prin email
*
*
*
*
Detaliile tale de contact vor fi partajate cu Andrei Consultanta Imobiliara
Preț total818.640 RON (160.640 €)
Costuri cu achiziția8.361 RON
Preț de achiziție810.279 RON
Costuri cu achiziția8.361 RON
Comision agenție Întreabă agenţia
Onorariu notarial7.146 RON
Taxă înscriere OCPI1.215 RON
Preț de achiziție810.279 RON
Preț locuință810.279 RON
TVA 0%Inclus în prețul cerut
Cost total134.283 RON (26.350 €)
Avans (15%)121.542 RON
Cost achitat în prima lună2.592 RON
Costuri cu achiziția10.149 RON
Cost achitat în prima lună2.592 RON
Comision analiză dosar
400 RON - 900 RON
Taxă evaluare imobil(până la)
900 RON
Rata lunară (variabilă)3.609 RON
Asigurare anuală imobil810 RON
Arhivă electronică102 RON
Poliță PAD130 RON
Asigurare de viață/lună Costul este variabil. În funcție de banca aleasă, procentul variază între 0.0259% și 0.035% din soldul creditului.
Costuri cu achiziția10.149 RON
Comision agenție Întreabă agenţia
Onorariu notarial7.146 RON
Taxă întabulare OCPI1.215 RON
Autentificare contract credit1.788 RON
Preț de achiziție810.279 RON
Preț locuință810.279 RON
TVA 0%Inclus în prețul cerut
Preț de achiziție810.279 RON
Preț locuință810.279 RON
TVA 0%
Inclus în prețul cerut
Avans minim203.844 RON
Credit pe 30 de ani606.436 RON
Cost achitat în prima lună
Taxa evaluare imobil(până la)
900 RON
Rata lunară (variabilă)4.261 RON
Depozit colateral12.783 RON
Comision de garantare FNGCIMM68 RON
Asigurare anuală imobil810 RON
Poliță PAD130 RON
Tarif arhivă electronică102 RON
Costuri adiționale950 RON + taxe notariale
Asigurare viață și complexă (opțională)Costul este variabil. În funcție de banca aleasă, procentul variază între 0.0259% și 0.035% din soldul creditului
Onorariu notarialconform tarif notarial
Taxă întabulare OCPI950 RON
i
Toate valorile de mai sus sunt estimative și nu reprezintă în mod obligatoriu costurile exacte pe care le veți primi de la companiile/instituțiile prin care veți încheia tranzacția.