27

Casa de vanzare central Busteni, Jud. Prahova

147.000 €

Bușteni, Județul Prahova

Nr. cam.:
8
Sup. utilă:
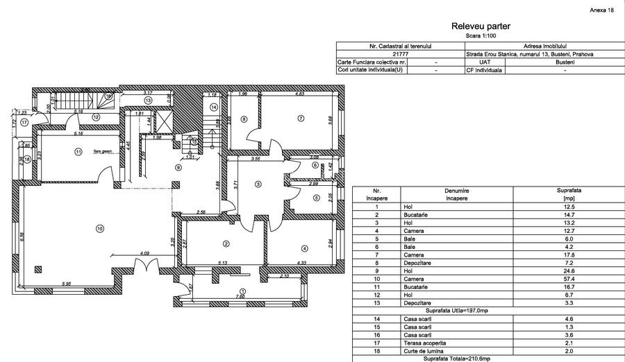
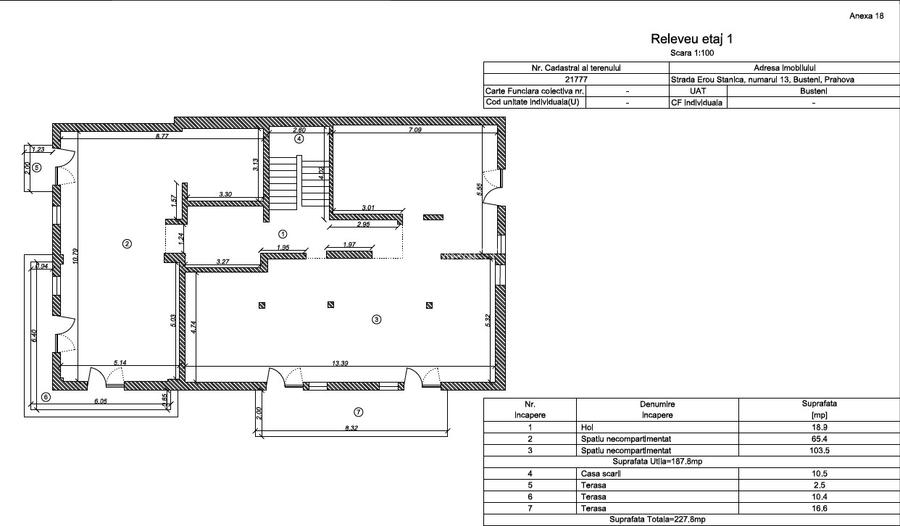
743,8 mp
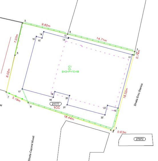
Sup. teren:
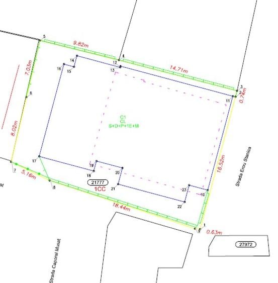
401 mp
Tip prop.:
Individuală
  • • Comision 0%
  • • Locație exactă

Descriere casă

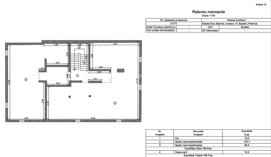
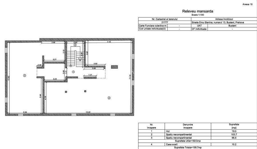
De vanzare imobil situat in Busteni, Strada Erou Stanica (zona centrala), Jud. Prahova. Va rog sa acordati atentie urmatorului aspect: casa cu regim de inaltime D+P (conform CF) insa in fapt este de tip D+P+1E+M* avand structura de rezistenta a imobilului din cadre de beton armat si inchideri din zidarie de caramida, acoperisul este de tip sarpanta din lemn acoperit cu tabla ondulata. Tamplaria exterioara din PVC cu geam termopan. In anul 2006 imobilul a fost extins in baza unei autorizatii de construire, insa receptia lucrarii nu a fost niciodata finalizata astfel incat sa poata fi actualizata Cartea Funciara cu structura actuala. Imobilul este in prezent la "rosu" cu exceptia a doua camere ce sunt amenajate. Imobilul este bransat la reteaua de electricitate, gaz natural si apa. - Suprafata teren = 401 m.p. - Amprenta la sol = 266 m.p. - Suprafata desfasurata = 830.6 mp - Suprafata utila = 743.8 m.p. Pentru detalii suplimentare, va rog sa apelati numarul de telefon de Luni pana Vineri in intervalul orar 09:00 - 17:00.
Citește mai mult Citește mai puțin
Zonă de deal / munte

Detalii casă

ID anunț: X9P8010HQ Copiat! 46350945 Copiat!
Actualizat în: 24 Noiembrie 2025
Tip tranzacție: Licitație de vânzare
Suprafață construită: 266 mp
Suprafață desfășurată: 830.6 mp
Nr. balcoane / Terase / Logii: 2
Învelitoare acoperiș: Tabla
An construcție: 2006 (La roșu)
Structură rezistență: Cărămidă
Regim înălțime: S+P+1E+M
Modalitate de plată: Cash sau Credit

Utilități

Destinație
Rezidențial De vacanță
Utilități
Curent Apă
Amenajare străzi
Asfaltate
Comision
0%

Vecinătăți:

Parcul Busteni, Primaria Busteni, Centrul Busteni.

Puncte de interes

Recreere
sports-ground
Teren sportiv
Terenuri sport aprox. 388 m
park
Parcul Schiel
Parcuri aprox. 415 m
sports-ground
Teren sportiv
Terenuri sport aprox. 688 m
restaurant
Pensiune Casa Alba
Restaurant aprox. 736 m

Istoricul prețurilor

Acces la informații premium după autentificare
Login Gratuit

Detalii despre preț și costuri

Costuri cu achiziția

Fără credit
Credit ipotecar
Noua casă

i

Costuri adiționale mai puțin știute la achiziție: taxe notariale, comisioane etc.

Acces la informații premium după autentificare
Login Gratuit

Proprietăți similare

Casă individuală cu 3 camere în Bușteni
158.000 €
Județul Prahova, Bușteni
3 camere
135 mp
300 mp teren
Casă individuală cu 5 camere în Gării
148.500 €
Județul Prahova, Bușteni
5 camere
116 mp
245 mp teren
Casă individuală cu 6 camere în Central
135.000 €
Județul Prahova, Bușteni
6 camere
110 mp
152 mp teren

Detalii de contact

B2 IMPACT

B IMPACT REAL ESTATE Manager

B2 IMPACT
PRO

Abonează-te la newsletter să fii primul care primește cele mai noi recomandări de proprietăți și sfaturi de la experți.

CONTACT

Creează alertă

Salvează căutarea ca să primești pe email ultimele anunțuri publicate

Case individuale cu 4+ camere de vânzare în Bușteni, Județul Prahova