AYAN RESIDENCE FOREST – Vile individuale premium la liziera Padurii Rosu
Bine ai venit acasa, acolo unde linistea padurii intalneste confortul modern al orasului.
AYAN RESIDENCE FOREST este un complex exclusivist format din 18 vile individuale, amplasate chiar la liziera Padurii Rosu, in cea mai verde si apreciata zona din Chiajna.
Este locul ideal pentru familiile care cauta intimitate, siguranta, aer curat si o viata echilibrata — aproape de natura, dar la cateva minute de Bucuresti.
Localizare Premium
Pozitionare unica, intre padure si oras – perfect pentru plimbari, relaxare si activitati in aer liber.
Acces rapid catre Bucuresti, Autostrada A1 si Șoseaua de Centura.
In apropiere: scoli, gradinite, supermarketuri, parcuri si mijloace de transport.
Beneficiu pentru tine: Traiesti intr-o zona curata si linistita, fara sa renunti la confortul urban.
Vila ta – spatiu, lumina si rafinament
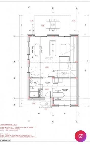
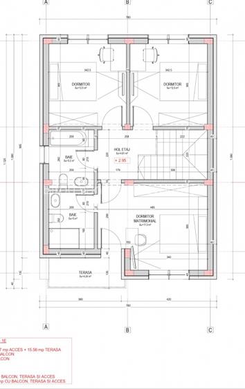
Suprafata totala: 184,39 mp
Suprafata utila: 161,64 mp
Teren propriu: 292 mp + 55 mp cota indiviza → 347 mp total
Regim: Parter + Etaj + Pod pentru depozitare
2 locuri de parcare private si magazie exterioara inclusa
Beneficiu: Te bucuri de o casa complet individuala, cu spatiu pentru familie, depozitare si relaxare — fara vecini lipiti de tine.
Dotari si Finisaje Premium
Incalzire in pardoseala – confort termic constant si eficienta energetica.
Tamplarie tripan Salamander Madrugada – izolare fonica si termica de top.
Izolatie exterioara de 15 cm + spuma la pod – facturi mai mici, confort tot anul.
Toate utilitatile racordate: apa, gaze, curent, canalizare.
Drum privat asfaltat (7 m latime) si acces securizat – siguranta si confort pentru tine si copii.
Beneficiu: O locuinta moderna, eficienta energetic si usor de intretinut, construita pentru viata de zi cu zi.
Disponibilitate & Etape de constructie
16 vile disponibile din 18
Incepere proiect: 15 octombrie 2025
Finalizare faza I (primele 8 vile): 1 iulie 2026
Imaginile sunt orientative – provin dintr-un proiect finalizat recent, cu acelasi nivel de calitate.
Beneficiu: Poti rezerva din timp si personaliza finisajele dupa gustul tau.
Preturi si avantaje financiare
275.000 € cu avans de 10%
255.000 € cu avans de 40%
0% comision pentru cumparator
Consultanta financiara GRATUITĂ – te ajutam sa alegi cea mai buna solutie de creditare, prin partenerii nostri.
Beneficiu: Platesti direct dezvoltatorului, fara costuri ascunse, si ai sprijin total pana la semnarea contractului.
De ce sa alegi AYAN RESIDENCE FOREST
Vile complet individuale – intimitate si libertate totala
Locatie rara, la marginea padurii
Finisaje premium si constructie de calitate
Comunitate restransa, sigura si eleganta
Acces facil la toate punctele de interes
Beneficiu: Investitia perfecta intr-o casa moderna, durabila si intr-o viata mai buna pentru familia ta.
Programeaza o vizionare si descopera AYAN RESIDENCE FOREST – acolo unde confortul urban intalneste linistea naturii.
Traieste premium. Respira liber. Alege AYAN RESIDENCE FOREST.
Sediul central - Timișoara
Bulevardul Victor Babeș nr. 2, 300230, Timișoara, România
Tel: +40.374.40.44.98 / Fax: +40.256.401.179
Email: suport@imobiliare.ro
Luni - Vineri 08:00 - 20:00
Punct de lucru - București: Iride Business Park, Bld. Dimitrie
Pompeiu 9-9A, Clădirea B2B,
020335, Sector 2, București, România
CONTACT
Sediul central - Timișoara
Bulevardul Victor Babeș nr. 2, 300230, Timișoara, România
Tel: +40.374.40.44.98 / Fax: +40.256.401.179
Email: suport@imobiliare.ro
Luni - Vineri 08:00 - 20:00
Punct de lucru - București: Iride Business Park, Bld. Dimitrie
Pompeiu 9-9A, Clădirea B2B,
020335, Sector 2, București, România
Sună acum și cere detalii sau programează o vizionare.
Cere detalii prin email
*
*
*
*
Stații autobuz
Școli
Gradinițe
Supermarket
Parcări
Parcuri
Terenuri sport
Farmacie
Spital
Restaurant
Cartier Rosu
aprox.
1491 m
Catinei
aprox.
1501 m
Stația RATB "Cartier Militari"
aprox.
1522 m
Statia Scoala Noua, linia 163
aprox.
1817 m
Margelelor
aprox.
1942 m
Ghirlandei
aprox.
1951 m
Statia Giulesti-Sarbi, linia 163
aprox.
1957 m
Scoala nr.158
aprox.
1240 m
Scoala din Rosu (en)
aprox.
1248 m
Cladirea scolii nr 1 (en)
aprox.
1621 m
Scoala "ALEXANDRU ODOBESCU" Chiajna (en)
aprox.
1631 m
Scoala cu clasele nr.161
aprox.
1832 m
Scoala Nr. 161
aprox.
1886 m
Scoala Generala 163
aprox.
1888 m
Kids Club
aprox.
1461 m
Grădinița Kid's Club Militari
aprox.
1466 m
Penny
aprox.
1017 m
Mega Image
aprox.
1154 m
Auchan
aprox.
1976 m
Auchan Militari (en)
aprox.
1984 m
Parcare cu plată
aprox.
1394 m
Parcare
aprox.
1398 m
Parcare
aprox.
1422 m
Parcare
aprox.
1440 m
Parcare
aprox.
1534 m
parcare Turbomecanica
aprox.
1765 m
Parcare
aprox.
1787 m
Parcare Militari Shopping Center
aprox.
1882 m
Parcare privata
aprox.
1953 m
Pădurea Roșu
aprox.
218 m
Parc
aprox.
1172 m
Parc
aprox.
1286 m
Parc
aprox.
1411 m
Parc
aprox.
1412 m
Parc
aprox.
1446 m
Parc
aprox.
1727 m
Parc
aprox.
1744 m
Parc
aprox.
1887 m
Teren sportiv
aprox.
1299 m
Stadionul Concordia Chiajna
aprox.
1979 m
Teren sportiv
aprox.
1999 m
Alissa
aprox.
189 m
Farmacia Denta Farm
aprox.
941 m
Farmacia 4 Em
aprox.
1397 m
Milena Farm
aprox.
1520 m
Policlinica Chiajna
aprox.
213 m
Popasul turistic Randunica (en)
aprox.
315 m
Popas Randunica
aprox.
328 m
Trattoria Roz Cafe
aprox.
1060 m
Militari Residence Ballrom Sala Londra
aprox.
1422 m
Sala Paris
aprox.
1467 m
Giuliano pizza & grill
aprox.
1510 m
Trattoria Donna Victoria
aprox.
1987 m
Înainte să pleci...
Ești sigur că ai văzut și aceste proprietăți?
235.000 €
Județul Ilfov, Chiajna
4 camere
189 mp
305 mp teren
230.000 € + TVA
Județul Ilfov, Chiajna
4 camere
155 mp
476 mp teren
269.000 €
Județul Ilfov, Chiajna
5 camere
126 mp
286 mp teren
Creează alertă
Salvează căutarea ca să primești pe email ultimele anunțuri publicate
Case individuale cu 4+ camere de vânzare în Chiajna, Județul Ilfov
Cere detalii prin email
*
*
*
*
Detaliile tale de contact vor fi partajate cu Birou Vanzari Dezvoltator
Preț total1.310.700 RON (257.287 €)
Costuri cu achiziția11.654 RON
Preț de achiziție1.299.046 RON
Costuri cu achiziția11.654 RON
Comision agenție Întreabă agenţia
Onorariu notarial9.705 RON
Taxă înscriere OCPI1.949 RON
Preț de achiziție1.299.046 RON
Preț locuință1.299.046 RON
TVA 0%Inclus în prețul cerut
Cost total211.787 RON (41.573 €)
Avans (15%)194.857 RON
Cost achitat în prima lună3.081 RON
Costuri cu achiziția13.849 RON
Cost achitat în prima lună3.081 RON
Comision analiză dosar
400 RON - 900 RON
Taxă evaluare imobil(până la)
900 RON
Rata lunară (variabilă)5.787 RON
Asigurare anuală imobil1.299 RON
Arhivă electronică102 RON
Poliță PAD130 RON
Asigurare de viață/lună Costul este variabil. În funcție de banca aleasă, procentul variază între 0.0259% și 0.035% din soldul creditului.
Costuri cu achiziția13.849 RON
Comision agenție Întreabă agenţia
Onorariu notarial9.705 RON
Taxă întabulare OCPI1.949 RON
Autentificare contract credit2.195 RON
Preț de achiziție1.299.046 RON
Preț locuință1.299.046 RON
TVA 0%Inclus în prețul cerut
Preț de achiziție1.299.046 RON
Preț locuință1.299.046 RON
TVA 0%
Inclus în prețul cerut
Avans minim692.825 RON
Credit pe 30 de ani606.222 RON
Cost achitat în prima lună
Taxa evaluare imobil(până la)
900 RON
Rata lunară (variabilă)4.260 RON
Depozit colateral12.780 RON
Comision de garantare FNGCIMM108 RON
Asigurare anuală imobil1.299 RON
Poliță PAD130 RON
Tarif arhivă electronică102 RON
Costuri adiționale1.439 RON + taxe notariale
Asigurare viață și complexă (opțională)Costul este variabil. În funcție de banca aleasă, procentul variază între 0.0259% și 0.035% din soldul creditului
Onorariu notarialconform tarif notarial
Taxă întabulare OCPI1.439 RON
i
Toate valorile de mai sus sunt estimative și nu reprezintă în mod obligatoriu costurile exacte pe care le veți primi de la companiile/instituțiile prin care veți încheia tranzacția.