Casa 2 camere de vanzare in Chinteni

220.000 €

Chinteni, Județul Cluj

Nr. cam.:
2
Sup. utilă:
206 mp
Sup. teren:
500 mp
Tip prop.:
Individuală
  • • Locație aproximativă

Descriere casă

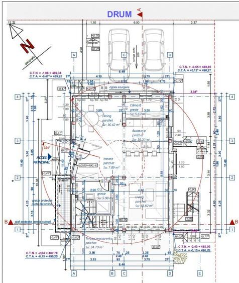
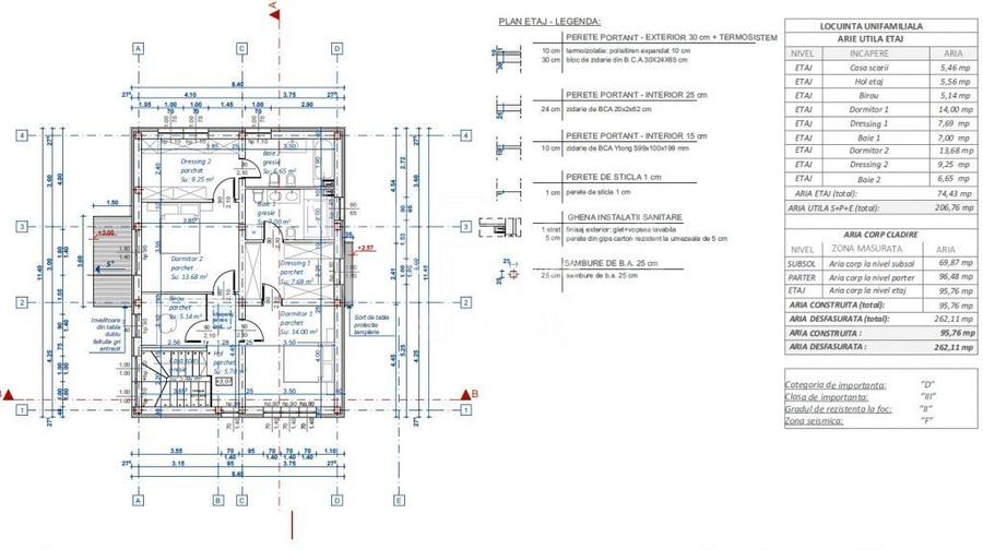
Casa individuala in Chinteni Va propunem spre vanzare o casa individuala in zona Profi Chinteni, la doar 8 minute de mers cu masina de orasul Cluj. Suprafata utila a imobilului este de 206 mp desfasurata astfel: S+P+E, dupa cum urmeaza: Subsol: - Spatiu depozitare; - Sala Jacuzzi; - Sala fitness; - Curte de lumina. Parter: - Bucatarie; - Zona dining; - Camara; - Living; - Grup sanitar. Etaj: - 1 Hol; - 1 Birou; - 2 Dormitoare cu bai proprii si dressing. Suprafata terenului este de 500 mp pe care sunt amenajate si 2 locuri de parcare. Termen de finalizare septembrie 2025 Pentru detalii referitoare la stadiul proiectului, vizionari si oferte de pret, nu ezitati sa ne contactati! echipa Napoca Imobiliare ID oferta: 151756
Citește mai mult Citește mai puțin
2 Parcări Zonă de deal / munte Zonă rurală

Detalii casă

ID anunț: X57Q112SE Copiat! 275374785 Copiat!
Actualizat în: 01 Aprilie 2026
Tip tranzacție: De vânzare prin agent
Suprafață desfășurată: 95 mp
Nr. bucătării: 1
Nr. băi: 3
Nr. terase: 1
Front stradal: 20.0 m
Învelitoare acoperiș: Țiglă
Regim înălțime: S+P+1E
Modalitate de plată: Cash sau Credit

Utilități

Utilități
Curent Apă Canalizare CATV Curent trifazic Gaze Telefon
Internet
Cablu Wireless
Amenajare străzi
Iluminat stradal Mijloace de transport în comun Asfaltate
Comision
standard

Disponibilitate proprietate:

Imediat

Puncte de interes

Mijloace transport
bus-station
Catun Vest
Stații autobuz aprox. 761 m
bus-station
Catun Est
Stații autobuz aprox. 781 m
bus-station
Cluj Due Vest
Stații autobuz aprox. 993 m
bus-station
Cluj Due Est
Stații autobuz aprox. 1008 m

Detalii despre preț și costuri

Costuri cu achiziția

Fără credit
Credit ipotecar
Noua casă

i

Costuri adiționale mai puțin știute la achiziție: taxe notariale, comisioane etc.

Acces la informații premium după autentificare
Login Gratuit

Proprietăți similare

Casă individuală cu 4 camere în Chinteni
237.000 €
Județul Cluj, Chinteni
4 camere
105 mp
465 mp teren
Casă individuală cu 4 camere în Chinteni
199.900 €
Județul Cluj, Chinteni
4 camere
169 mp
500 mp teren
Casă individuală cu 4 camere în Chinteni
235.950 €
Județul Cluj, Chinteni
4 camere
148 mp
538 mp teren

Detalii de contact

Napoca Imobiliare

Napoca Imobiliare Manager Agentie

5.00(3 review-uri)

Napoca Imobiliare
PRO

Abonează-te la newsletter să fii primul care primește cele mai noi recomandări de proprietăți și sfaturi de la experți.

CONTACT

Creează alertă

Salvează căutarea ca să primești pe email ultimele anunțuri publicate

Case individuale cu 2 camere de vânzare în Chinteni, Județul Cluj