5

Vila noua Ciolpani

175.000 €

Ciolpani, Județul Ilfov

Nr. cam.:
4
Sup. utilă:
120 mp
Sup. teren:
470 mp
Tip prop.:
Individuală
  • • Locație aproximativă

Descriere casă

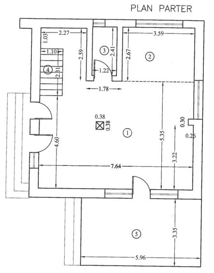
Neoland Realplus Estates va ofera spre achizitie o vila noua, finalizata, situata in Ciolpani, in proximitatea padurii. Interiorul este partitionat in living cu acces direct in terasa generoasa, 3 dormitoare, bucatarie si trei bai. Se distinge prin faptul ca este independenta, nefiind lipita de alta constructie, precum si datorita suprafetei de teren de 470 mp, care o diferentiaza de alte oferte din zona la acelasi pret. Finisajele sunt de cea mai buna calitate. Vila are încălzirea în pardoseală și oferă un confort energetic deosebit. Imaginile reprezintă propuneri de amenajare. Pret vanzare 175.000 euro
Citește mai mult Citește mai puțin
2 Parcări

Detalii casă

ID anunț: XBKM1104L Copiat! 275395300 Copiat!
Actualizat în: 02 Aprilie 2026
Tip tranzacție: De vânzare prin agent
Suprafață construită: 85 mp
Suprafață desfășurată: 160 mp
Nr. băi: 3
Nr. balcoane / Terase / Logii: 1
Nr. terase: 1
An construcție: 2025 (Finalizată)
Structură rezistență: Beton
Regim înălțime: P+1E
Modalitate de plată: Cash sau Credit

Utilități

Izolații termice
Exterior
Utilități
Curent Apă Canalizare CATV Gaze Telefon
Internet
Cablu
Comision
standard

Disponibilitate proprietate:

Imediat

Detalii despre preț și costuri

Costuri cu achiziția

Fără credit
Credit ipotecar
Noua casă

i

Costuri adiționale mai puțin știute la achiziție: taxe notariale, comisioane etc.

Acces la informații premium după autentificare
Login Gratuit

Proprietăți similare

Casă individuală cu 4 camere în Berceni
165.000 €
Județul Ilfov, Berceni
4 camere
100 mp
444 mp teren
Casă individuală cu 5 camere în Berceni
185.000 €
Județul Ilfov, Berceni
5 camere
170 mp
450 mp teren
Casă individuală cu 4 camere în Berceni
174.900 €
Județul Ilfov, Berceni
4 camere
136 mp
560 mp teren

Detalii de contact

REALPLUS ESTATES

Neoland RealPlus Estates Manager

4.08(4 review-uri)

REALPLUS ESTATES
PRO

Abonează-te la newsletter să fii primul care primește cele mai noi recomandări de proprietăți și sfaturi de la experți.

CONTACT

Creează alertă

Salvează căutarea ca să primești pe email ultimele anunțuri publicate

Case individuale cu 4+ camere de vânzare în Ciolpani, Județul Ilfov