Casa individuala cu 4 camere, 130mp utili+terasa (19mp), teren 360mp

248.050 €

Cisnădie, Județul Sibiu

Nr. cam.:
4
Sup. utilă:
130 mp
Sup. teren:
360 mp
Tip prop.:
Individuală
  • • Locație aproximativă

Descriere casă

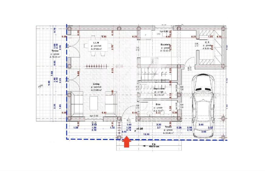
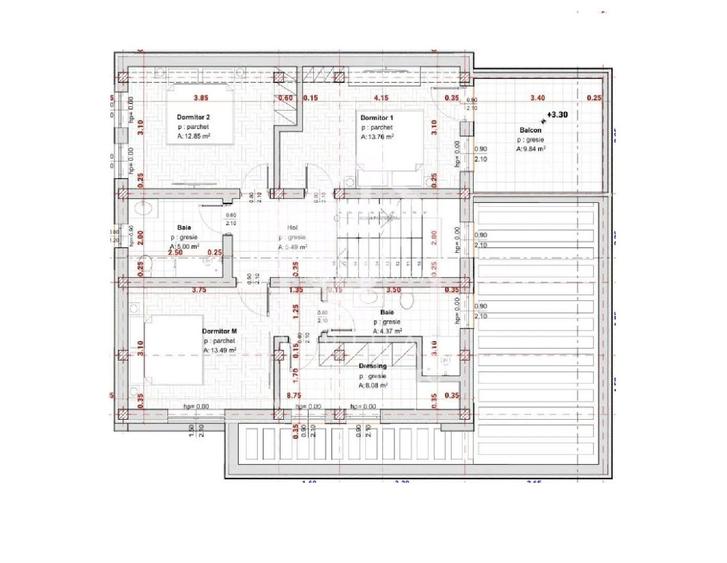
Casa individuala cu 4 camere, carpot, 2 locuri de parcare in curte Avantaje: -casa individuala -parcare acoperita pentru masina -incalzire in pardoseala -placa de beton intre etaj si pod -pod mansardabil -inaltime camere 3m -casa se preda cu exteriorul la cheie (gard, poarta, pavaj, spatiu verde) -curte amenajata -calea de acces in proces de asfaltare -pompa de caldura montata -poze cu fiecare etapa a constructiei Detalii tehnice: -izolatie exterioara cu polistiren de 10cm -geamuri cu 3 foi de sticla -curent trifazic -acoperis din tigla -balustrada din sticla la terasa Compartimentare: Parter: -bucatarie -camera tehnica -zona de luat masa -living -baie -spatiu de depozitare -terasa Etaj: -hol -baie -2 dormitoare -dormitor matrimonial cu baie si dressing propriu -balcon Casa se preda cu interiorul la stadiul de alb si exteriorul la cheie Termen de predare: sfarsit de august 2026 Pentru acest imobil se percepe un avans minim 20% Pretul afisat include TVA de 21%, pretul fara TVA este de 205000€ Locatia: Sibiu, localittea Cisnadie Iti doresti mai mult decat o simpla locuinta? Noi suntem aici pentru a-ți oferi cele mai bune soluții. Oferim servicii de DESIGN SI AMENAJARI INTERIOARE, PROPERTY MANAGEMENT, REGIM HOTELIER, HOME STAGING, VIRTUAL INVESTMENT, SERVICII DE CURATENIE.
Citește mai mult Citește mai puțin
Curte Centrală proprie Încălzire prin pardoseală 2 Parcări 1 Garaj

Detalii casă

ID anunț: XDQ4110II Copiat! 275289219 Copiat!
Actualizat în: 06 Mai 2026
Tip tranzacție: De vânzare prin agent
Nr. bucătării: 1
Nr. băi: 3
Nr. balcoane / Terase / Logii: 1
Nr. terase: 1
Suprafață terase: 18 mp
An construcție: 2026
Structură rezistență: Cărămidă
Regim înălțime: P+1E
Modalitate de plată: Cash sau Credit

Utilități

Izolații termice
Exterior
Utilități
Curent Apă Canalizare CATV Gaze Telefon
Internet
Cablu
Amenajare străzi
Iluminat stradal Mijloace de transport în comun Asfaltate
Comision
standard

Disponibilitate proprietate:

Imediat

Puncte de interes

Mijloace transport
airport
Aerodrom Magura
Aeroporturi aprox. 1336 m
bus-station
Cisnadie
Stații autobuz aprox. 1768 m
Școală
school
Scoala nr. 1
Școli aprox. 1478 m
school
Scoala Nr. 2
Școli aprox. 1831 m
Recreere
supermarket
Penny Market
Supermarket aprox. 1515 m
sports-ground
Teren sportiv
Terenuri sport aprox. 1642 m
restaurant
Casa Magura
Restaurant aprox. 1860 m

Detalii despre preț și costuri

Costuri cu achiziția

Fără credit
Credit ipotecar
Noua casă

i

Costuri adiționale mai puțin știute la achiziție: taxe notariale, comisioane etc.

Acces la informații premium după autentificare
Login Gratuit

Proprietăți similare

Casă individuală cu 3 camere în Central
225.000 €
Județul Sibiu, Cisnădie
3 camere
116 mp
300 mp teren
Casă individuală cu 4 camere în Nord-Est
239.000 €
Județul Sibiu, Cisnădie
4 camere
115 mp
215 mp teren
Casă individuală cu 4 camere în Cisnădie
239.900 €
Județul Sibiu, Cisnădie
4 camere
144 mp
518 mp teren

Detalii de contact

Virtual Imobiliare

Petru Caburgan Consultant Imobiliar

Virtual Imobiliare

Abonează-te la newsletter să fii primul care primește cele mai noi recomandări de proprietăți și sfaturi de la experți.

CONTACT

Creează alertă

Salvează căutarea ca să primești pe email ultimele anunțuri publicate

Case individuale cu 4+ camere de vânzare în Cisnădie, Județul Sibiu