Casa individuala executie premium 129 mp utili teren 365 mp Cisnadie

248.000 €

Cisnădie, Județul Sibiu

Nr. cam.:
4
Sup. utilă:
129 mp
Sup. teren:
360 mp
Tip prop.:
Individuală
  • • Locație aproximativă

Descriere casă

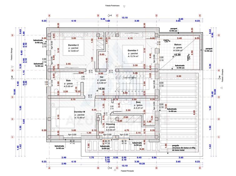
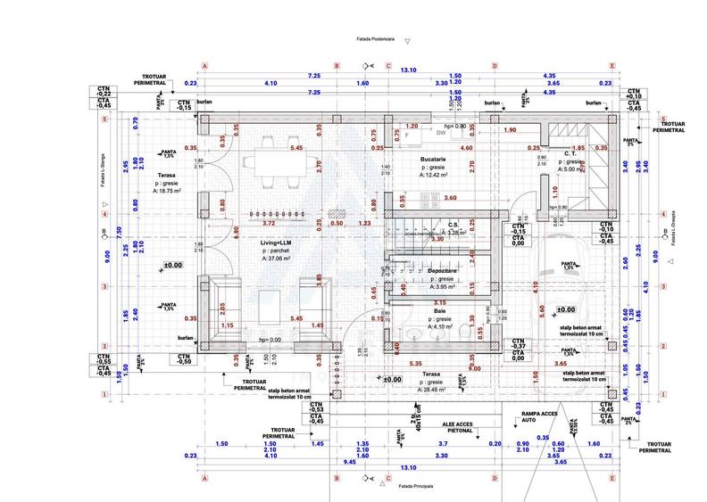
Agentia imobiliara Azura Estate va propune spre vanzare o locuinta individuala, constructie premium, cu o suprafata utila de 129 mp utili, regim de inaltime P+1 si mansarda utilizabila, edificata din caramida porotherm, tigla Bramac negru, formata din living cu bucatarie open space, 3 dormitoare, 3 bai, 2 terase, garaj si teren generos in zona Arhitectilor din Cisnadie. Zona se remarcă printr-un cadru natural superb, cu panoramă deschisă către munți, lumină naturală excelentă și o atmosferă calmă, ideală pentru locuire premium. Este un cartier în dezvoltare, cu vecini liniștiți și un profil rezidențial de calitate. Infrastructură existentă Străzi în proces de pavare (în prezent pietruite), cu proiect aprobat pentru modernizare Iluminat stradal instalat functional Rețele edilitare complete: apă, canalizare, curent electric, internet fibră optică, functionale Caracteristici si compartimentare: Parter: Living cu spatiu pentru dining 37 mp Bucătărie – 12,42 mp Camera tehnica– 5 mp Depozitare – 3,95 mp Baie – 4,10 mp Casa scării – 3,28 mp Terase – 28,46 mp și 18,75 mp Flux natural între bucătărie – dining – living – terase Etaj: Dormitor matrimonial – 13,49 mp + dressing 6.93 mp Dormitor 1 – 13,74 mp Dormitor 2 – 12,83 mp Baie 1 – 5,37 mp Baie 2 – 5,00 mp Hol – 5,49 mp Predarea locuintei se va face la cheie exterior cu izolatii, decorativa, curte pavata, garduri imprejmuire turnate, porti automatizate, iar in interior la alb cu usa de acces, ferestre tripan, incalzire in pardoseala, pompa de caldura 10000 euro (se pot cere facturi), pereti gletuiti si vopsiti in alb, bai pregatite cu toalete incorporate in pereti. La cerere proprietarul ofera documentatie, fotografii si facturi pentru fiecare faza a constructiei. Termen de predare Septembrie 2026 Pretul de vanzare este de 248000 euro cu TVA inclus de 21%
Citește mai mult Citește mai puțin
Nemobilat Curte Centrală proprie Încălzire prin pardoseală 2 Parcări 1 Garaj

Detalii casă

ID anunț: XG760102N Copiat! 275433190 Copiat!
Actualizat în: 15 Aprilie 2026
Suprafață construită: 85 mp
Suprafață desfășurată: 176.4 mp
Nr. bucătării: 1
Nr. băi: 3
Nr. balcoane / Terase / Logii: 1
Nr. terase: 2
Suprafață terase: 48 mp
Învelitoare acoperiș: Țiglă
An construcție: 2025 (În construcție)
Structură rezistență: Cărămidă
Regim înălțime: P+M

Utilități

Pereți
Faianță Vopsea lavabilă
Ușă intrare
PVC
Izolații termice
Exterior
Contorizare
Contor gaz
Facilități imobil
Acoperiș
Utilități
Curent Apă Canalizare CATV Gaze Telefon
Internet
Cablu
Amenajare străzi
Iluminat stradal Mijloace de transport în comun Asfaltate Pietruite
Comision
standard

Disponibilitate proprietate:

Imediat

Puncte de interes

Mijloace transport
airport
Aerodrom Magura
Aeroporturi aprox. 680 m

Detalii despre preț și costuri

Costuri cu achiziția

Fără credit
Credit ipotecar
Noua casă

i

Costuri adiționale mai puțin știute la achiziție: taxe notariale, comisioane etc.

Insight premium disponibil după login

Proprietăți similare

Casă individuală cu 4 camere în Exterior Sud
239.000 €
Județul Sibiu, Cisnădie
4 camere
158 mp
600 mp teren
Casă individuală cu 4 camere în Exterior Sud
227.000 €
Județul Sibiu, Cisnădie
4 camere
134 mp
500 mp teren
Casă individuală cu 4 camere în Central
227.000 €
Județul Sibiu, Cisnădie
4 camere
135 mp
500 mp teren

Detalii de contact

Azura-Estate

Adrian Sasu Manager

Azura-Estate
PRO

Abonează-te la newsletter să fii primul care primește cele mai noi recomandări de proprietăți și sfaturi de la experți.

CONTACT

Creează alertă

Salvează căutarea ca să primești pe email ultimele anunțuri publicate

Case individuale cu 4+ camere de vânzare în Cisnădie, Județul Sibiu