Casă premium complet utilata 5 camere 3 bai teren 427 mp în Cisnădie

290.000 €

Cisnădie, Județul Sibiu

Nr. cam.:
5
Sup. utilă:
120 mp
Sup. teren:
427 mp
Tip prop.:
Individuală
  • • Locație aproximativă

Descriere casă

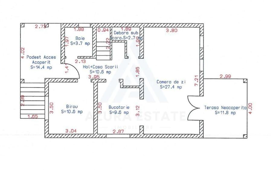
Agenția imobiliară Azura Estate vă propune spre vânzare o casă individuală premium, construcție nouă (2025), cu o suprafață utilă de 120 mp, amplasată pe un teren de 427 mp, situată în Cisnădie, într-o zonă liniștită, aproape de centru, școli, grădinițe și principalele puncte de interes. Localitatea este apreciată pentru atmosfera relaxată și accesul rapid către Sibiu, Cisnadioara, parc, lac, si agrement Magura. Proprietatea oferă confort, intimitate și o curte generoasă de 337 mp, fiind ideală atât pentru locuit, cât și pentru investiție. În apropiere se regăsesc toate facilitățile necesare, într-un mediu sigur și prietenos. Caracteristici si compartimentare: Parter: 64.6mp Acces acoperit 14.4mp Living spațios cu zonă de dining 27.4mp și ieșire pe terasă 11.8mp Bucătărie open-space 9.6mp– cu posibilitate de închidere Dormitor/Birou 10.6mp Baie 3.7mp Debara sub scară 2.7mp Hol de acces + casa scării 10.6mp Etaj 62.2 mp Dormitor matrimonial cu dressing 13.3mp 2 dormitoare 13.3mp + 12.8mp 2 băi 4.2mp + 5.1mp Hol + casa scării 7.1mp Balcon 4.2 mp Hol cu spatii pentru depozitare 2.2mp Alte beneficii: Casă complet mobilată și utilată, exact ca în fotografii Centrală termică pe gaz Toate utilitățile racordate Izolație exterioară Pod izolat Pentru mai multe detalii și programarea unei vizionări, nu ezitați să ne contactați – această locuință chiar merită văzută!
Citește mai mult Citește mai puțin
Parțial mobilat Curte Încălzire prin pardoseală

Detalii casă

ID anunț: XG760102C Copiat! 275368464 Copiat!
Actualizat în: 04 Mai 2026
Tip tranzacție: De vânzare prin agent
Suprafață construită: 90 mp
Suprafață desfășurată: 144 mp
Nr. bucătării: 1
Nr. băi: 3
Nr. balcoane / Terase / Logii: 1
Suprafață terase: 11.8 mp
Front stradal: 15.0 m
Învelitoare acoperiș: Țiglă
An construcție: 2025 (Finalizată)
Structură rezistență: Cărămidă
Regim înălțime: P+1E
Modalitate de plată: Cash sau Credit

Utilități

Pereți
Var Vopsea lavabilă
Podele
Gresie Linoleum Parchet
Ușă intrare
Metal
Izolații termice
Exterior
Contorizare
Apometre Contor căldură Contor gaz
Bucătărie
Mobilată Utilată
Electrocasnice
Aragaz Frigider Hotă Mașină de spălat
Diverse
Senzor de fum
Alte spații utile
Dressing
Facilități imobil
Acoperiș
Utilități
Curent Apă Canalizare Gaze
Internet
Cablu
Amenajare străzi
Iluminat stradal Asfaltate
Comision
standard

Disponibilitate proprietate:

Imediat

Puncte de interes

Mijloace transport
bus-station
Cisnadioara
Stații autobuz aprox. 1025 m
bus-station
Statia Stejarului
Stații autobuz aprox. 1541 m
bus-station
Cisnadie Sus
Stații autobuz aprox. 1717 m
Școală
school
Scoala Nr. 3
Școli aprox. 1490 m
school
Scoala Nr. 2
Școli aprox. 1802 m
Recreere
park
Parc
Parcuri aprox. 757 m
park
Parc
Parcuri aprox. 778 m
park
Parc
Parcuri aprox. 818 m
sports-ground
Teren sportiv
Terenuri sport aprox. 1767 m

Detalii despre preț și costuri

Costuri cu achiziția

Fără credit
Credit ipotecar
Noua casă

i

Costuri adiționale mai puțin știute la achiziție: taxe notariale, comisioane etc.

Acces la informații premium după autentificare
Login Gratuit

Proprietăți similare

Casă individuală cu 6 camere în Central
289.000 €
Județul Sibiu, Cisnădie
6 camere
229 mp
960 mp teren
Casă individuală cu 7 camere în Central
270.000 €
Județul Sibiu, Cisnădie
7 camere
176 mp
511 mp teren
Casă individuală cu 7 camere în Central
270.000 €
Județul Sibiu, Cisnădie
7 camere
176 mp
511 mp teren

Detalii de contact

Azura-Estate

Stefania Bunescu Team Leader

Azura-Estate
PRO

Abonează-te la newsletter să fii primul care primește cele mai noi recomandări de proprietăți și sfaturi de la experți.

CONTACT

Creează alertă

Salvează căutarea ca să primești pe email ultimele anunțuri publicate

Case individuale cu 4+ camere de vânzare în Cisnădie, Județul Sibiu