Vila la cheie-4 camere- Clinceni

140.000 €

Clinceni, Județul Ilfov

Nr. cam.:
4
Sup. utilă:
93,5 mp
Sup. teren:
272 mp
Tip prop.:
Casă individuală
  • • Locație aproximativă

Descriere casă

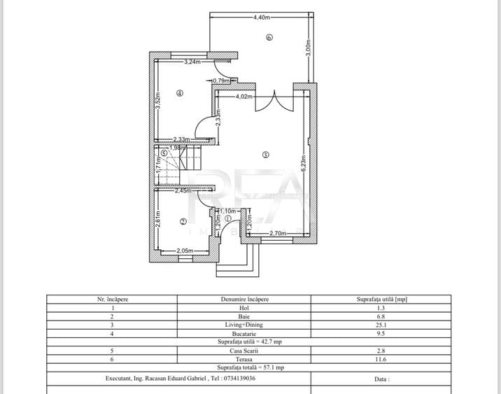
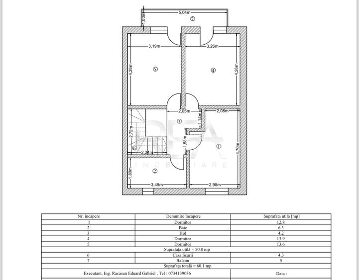
R.E.A Imobiliare va propune spre vanzare o vila cu 4 camere complet mobilata si utilata, situata in Clinceni, judetul Ilfov, la intrarea in Bucuresti, constructia din caramida finalizata in anul 2024, suprafata terenului este de 275 mp iar aprenta casei este de 67mp. Inclazirea se realizeaza prin centrala proprie si calorifere Suprafata totala utila este de 93,50 mp, la parter se afla livingul, o baie si bucataria inchisa, suprafata utila la parter fiind de 57.1mp iar la etaj se afla 3 dormitoare,baia si balconul, suprafata totala utila fiind de 60.1mp care include balconul de 5mp. Instalatiile sanitare si electrice noi. Deschiderea in lateralul casei este de 17 mp Iar in fata casei de 15 mp Cota parte din drumul de servitute de 9mp Parter+Etaj+Pivnita+Mansarda. Se afla la 5 minute cu masina de Prelungirea Ghnecea. Informațiile sunt preluate de la propietar și au scop orientativ. Pentru mai multe detalii dar si pentru a stabilii o vizionare ne puteti contacta specificand codul de identificare P9993
Citește mai mult Citește mai puțin
Mobilat Centrală proprie Bine întreținut (Bună)

Detalii casă

ID anunț: XDKS110E6 Copiat! 274826922 Copiat!
Actualizat în: 27 Martie 2026
Nr. bucătării: 1
Nr. băi: 2
Nr. balcoane / Terase / Logii: 1
Nr. terase: 1
An construcție: 2024 (Finalizată)
Structură rezistență: Cărămidă
Regim înălțime: P+2E

Utilități

Pereți
Vopsea lavabilă Var
Podele
Parchet Gresie
Ușă intrare
Metal
Uși interior
Lemn
Izolații termice
Exterior Interior
Ferestre cu geam termopan
PVC PVC
Contorizare
Apometre Contor căldură Contor gaz
Bucătărie
Mobilată Utilată
Utilități
Curent Apă Gaze Fosa septică CATV Telefon
Amenajare străzi
Asfaltate Iluminat stradal
Comision
Standard

Puncte de interes

Mijloace transport
bus-station
Primacom
Stații autobuz aprox. 1638 m
Școală
school
Scoala PROINGENIO
Școli aprox. 1482 m
kindergarten
Watoto
Gradinițe aprox. 1879 m
Recreere
supermarket
Shop & Go / Mega Image
Supermarket aprox. 689 m
restaurant
Restaurantul Latin
Restaurant aprox. 1090 m
supermarket
Shop&Go
Supermarket aprox. 1132 m
park
Parc
Parcuri aprox. 1201 m

Detalii despre preț și costuri

Costuri cu achiziția

Fără credit
7.712 RON
Credit ipotecar
9.419 RON
Noua casă
854 RON+ taxe notariale

i

Costuri adiționale mai puțin știute la achiziție: taxe notariale, comisioane etc.

Proprietăți recomandate

Detalii de contact

R.E.A. Imobiliare

Cristian Nistor Broker

R.E.A. Imobiliare
PRO

Abonează-te la newsletter să fii primul care primește cele mai noi recomandări de proprietăți și sfaturi de la experți.

CONTACT

Creează alertă

Salvează căutarea ca să primești pe email ultimele anunțuri publicate

Case individuale cu 4+ camere de vânzare în Clinceni, Județul Ilfov