Casa 5 camere de vanzare in Borhanci, Cluj Napoca

468.000 €

Borhanci, Cluj-Napoca

Nr. cam.:
5
Sup. utilă:
180 mp
Sup. teren:
298 mp
Tip prop.:
Individuală
  • • Locație aproximativă

Descriere casă

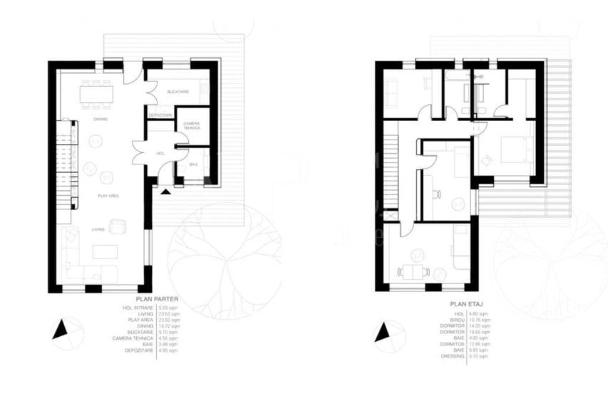
Casa individuala finisata, construita dupa standarde de casa pasiva, cu 5 camere, panorama! Proprietatea este ideal pozitionata intr-o zona de case noi, perfecta pentru cei ce doresc liniște și retragere din aglomerație, dar în același timp acces facil spre principalele direcții: nu mai mult de 20 minute cu mașina spre zona centrala, Aeroport, zona Emerson, ori ieșirea spre autostrada prin centura ocolitoare. Imobilul face parte dintr-un ansamblu exclusivist si a fost proiectat cu un design contemporan, design minimalist și funcțional, cu linii curate, volume echilibrate și spații deschise, generoase. Casa reprezintă un etalon în ceea ce privește sustenabilitatea, economia, integrarea tehnologiei și grija față de mediu. Peste 95% din materialele folosite sunt de origine naturala, iar tehnicile de construcție, de la fundație pana la ultimele detalii de finisaje au în vedere sanatatea locatarilor -spre exemplu nici unul din materialele de construcție folosite nu emite compuși volatili în aerul din interior. Mai mult, se folosesc materiale absorbante pentru chimicale toxice, care pot proveni din mobilarea casei, astfel avand un control suplimentar asupra sanatatii aerului interior. Confortul termic este asigurat de sistemul de ventilatie integrat cu pompa de caldura si boiler ACM, pentru o temperatura constanta atat a aerului ambiental cat si a apei calde menajere. Sistemul de iluminat este integrat, ferestrele sunt prevazute cu jaluzele exterioare automatizate, se monteaza senzori de incendiu/inundație. Exista posibilitatea de creare de scenarii smart pentru automatizarea casei in funcție de nevoile fiecarei familii. Amenajarile sunt gandite integrat si unitar: fațade din lemn natural, terasa acoperita, curte interioara amenajata, opțiune de stație de incarcare auto. Finisajele interioare sunt proiectate in culori și texturi naturale, iar materialele alese sunt de calitate premium: parchet din lemn stratificat, placaje cu marmura in bai, obiecte sanitare si corpuri de iluminatde foarte buna calitate. Ansamblul este proiectat tip comunitate privată și se livrează cu drum de acces integral amenajat, alei pietonale, loc de joacă și relaxare. Casa este structurata pe 2 niveluri: - parterul este dominat de livingul imens, cu o deschidere de 12 metri, avsnd perspective inspre curtea din fața casei și curtea din spate. - la etaj sunt 3 dormitoare si 2 bai Proiectul configurează o diversitate de compartimentari: între 3 și 5 dormitoare, 3 bai, birou, bibliotecă ori cameră de joacă, precum și o multitudine de spații adiacente. Detine o curte utila amenajata de 240 mp. Designul se concentrează pe integrarea tuturor activităților familiale într-un spațiu generos cu ferestre largi și bine poziționate pentru a maximiza lumina naturală. Proiectul este finalizat. In pretul afisat sunt incluse avantaje precum iluminat exterior complet, panouri fotovoltaice, stații de încărcare mașini și biciclete electrice, senzori suplimentari pentru automatizări smart. Pentru programarea unei vizionari si pentru consultanta imobiliara de calitate contactati-ne cu incredere! Va stam cu drag la dispozitie, Echipa Napoca Imobiliare! ID oferta: 131409
Citește mai mult Citește mai puțin
Nemobilat Aer condiționat 2 Parcări

Detalii casă

ID anunț: X57Q11329 Copiat! 275395556 Copiat!
Actualizat în: 02 Aprilie 2026
Suprafață desfășurată: 240 mp
Nr. bucătării: 1
Nr. băi: 3
Front stradal: 18.0 m
Învelitoare acoperiș: Șindrilă
An construcție: 2022
Regim înălțime: P+1E

Utilități

Ușă intrare
Metal
Uși interior
Lemn
Ferestre cu geam termopan
PVC
Utilități
Curent Apă Canalizare CATV Curent trifazic Gaze Telefon
Internet
Cablu Wireless
Amenajare străzi
Iluminat stradal Mijloace de transport în comun Asfaltate
Comision
standard

Disponibilitate proprietate:

Imediata

Puncte de interes

Mijloace transport
bus-station
Violetelor
Stații autobuz aprox. 235 m
bus-station
Theodor Pallady
Stații autobuz aprox. 251 m
bus-station
Borhanciului
Stații autobuz aprox. 509 m
bus-station
Antim Ivireanul
Stații autobuz aprox. 510 m
Școală
university
Casa Agronomului (en)
Universități aprox. 1194 m
kindergarten
Gradinita Poenita
Gradinițe aprox. 1475 m
kindergarten
Grădinita "Poenita"
Gradinițe aprox. 1482 m
school
Happy Kids Internaional school
Școli aprox. 1580 m
Recreere
park
Parc
Parcuri aprox. 926 m
sports-ground
Teren sportiv
Terenuri sport aprox. 988 m
supermarket
Carrefour
Supermarket aprox. 1636 m
pub
Ancuta
Pub aprox. 1718 m

Detalii despre preț și costuri

Costuri cu achiziția

Fără credit
18.968 RON
Credit ipotecar
22.067 RON
Noua casă
2.525 RON+ taxe notariale

i

Costuri adiționale mai puțin știute la achiziție: taxe notariale, comisioane etc.

Proprietăți similare

Casă individuală cu 4 camere în Borhanci
500.000 € + TVA
Cluj-Napoca, Borhanci
4 camere
196 mp
350 mp teren
Casă individuală cu 4 camere în Borhanci
499.000 € + TVA
Cluj-Napoca, Borhanci
4 camere
196 mp
386 mp teren
Casă individuală cu 5 camere în Borhanci
490.000 €
Cluj-Napoca, Borhanci
5 camere
152 mp
720 mp teren

Detalii de contact

Napoca Imobiliare

Napoca Imobiliare Manager Agentie

Napoca Imobiliare
PRO

Abonează-te la newsletter să fii primul care primește cele mai noi recomandări de proprietăți și sfaturi de la experți.

CONTACT

Creează alertă

Salvează căutarea ca să primești pe email ultimele anunțuri publicate

Case individuale cu 4+ camere de vânzare în zona Borhanci, Cluj-Napoca