Casă individuală cu panoramă spre oraș zona de case și vile

575.000 €

Bună Ziua, Cluj-Napoca

Nr. cam.:
5
Sup. utilă:
220 mp
Sup. teren:
410 mp
Tip prop.:
Individuală
  • • Locație aproximativă

Descriere casă

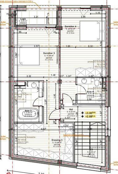
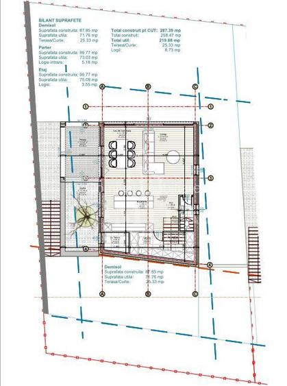
Va propunem spre vânzare o casă individuală, zonă de case și duplexuri cu panoramă superbă spre orașul Cluj Napoca. Casa este poziționată în zonă verde, retrasă de la stradă circulată având o poziție de excepție cu vecinătăți formate exclusiv din case si vile! Dispunerea este D+P+E, casa beneficiind de o suprafață utila de 220 mp si teren in proprietate de 410 mp. Compartimentarea este realizata astfel: Demisol: living cu bucătărie open space, cămară de alimente, cameră tehnică, ieșire pe terasă și curtea casei. Parterul: 2 dormitoare cu baie fiecare, antreu spațios și 1 dressing. Etajul: 2 dormitoare cu baie fiecare, dressing și 1 balcon de unde se pot admira luminile orașului seara. Casa se vinde la stadiul de semifinisat cu încălzire în pardoseală și centrală montată, instalații termice, sanitare și electrice trase pe poziții, pod izolat cu vată bazaltică, geamuri tripan Gealan, izolație exterioară cu polistiren de 15 cm și exterior finalizat complet. Curte și grădina frumos amenajate cu gazon, alei pavate și garduri de împrejmuire. Pentru detalii suplimentare si vizionari, ne puteți contacta cu încredere. *Informațiile din anunț au fost furnizate în prealabil de către proprietar. Agenția nu își asumă responsabilitatea pentru eventualele modificări în ceea ce privește prețul sau informațiile prezentate.
Citește mai mult Citește mai puțin
Nemobilat Centrală proprie Încălzire prin pardoseală Beci 4 Parcări

Detalii casă

ID anunț: XBA0110I7 Copiat! 243034554 Copiat!
Actualizat în: 23 Februarie 2026
Suprafață desfășurată: 272 mp
Nr. bucătării: 1
Nr. băi: 4
Nr. balcoane / Terase / Logii: 1
Nr. terase: 1
Front stradal: 16.0 m
Învelitoare acoperiș: Țiglă
An construcție: 2023 (Finalizată)
Structură rezistență: Cărămidă
Regim înălțime: D+P+1E

Utilități

Ușă intrare
PVC
Izolații termice
Exterior
Ferestre cu geam termopan
PVC
Contorizare
Apometre Contor căldură Contor gaz
Diverse
Scară interioară
Facilități imobil
Acoperiș
Utilități
Curent Apă Canalizare Gaze
Comision
standard

Disponibilitate proprietate:

Imediat

Puncte de interes

Mijloace transport
bus-station
Dinu Lipatti
Stații autobuz aprox. 226 m
bus-station
M-Aroma
Stații autobuz aprox. 623 m
bus-station
Statia Drum Faget, Linia 40
Stații autobuz aprox. 824 m
bus-station
Hotel Stil Est
Stații autobuz aprox. 862 m
Recreere
restaurant
Restaurant Aroma
Restaurant aprox. 539 m
sports-ground
Teren sportiv
Terenuri sport aprox. 765 m
park
Parc
Parcuri aprox. 1580 m
supermarket
Baumax
Supermarket aprox. 1621 m

Detalii despre preț și costuri

Costuri cu achiziția

Fără credit
22.641 RON
Credit ipotecar
26.194 RON
Noua casă
3.070 RON+ taxe notariale

i

Costuri adiționale mai puțin știute la achiziție: taxe notariale, comisioane etc.

Proprietăți recomandate

Detalii de contact

Comitat Imobiliare

Radu Sucila Manager

Comitat Imobiliare
PRO

Abonează-te la newsletter să fii primul care primește cele mai noi recomandări de proprietăți și sfaturi de la experți.

CONTACT

Creează alertă

Salvează căutarea ca să primești pe email ultimele anunțuri publicate

Case individuale cu 4+ camere de vânzare în zona Bună Ziua, Cluj-Napoca