Casa 17 camere de vanzare in Centru, Cluj Napoca

2.400.000 €

Central, Cluj-Napoca

Nr. cam.:
17
Sup. utilă:
780 mp
Sup. teren:
898 mp
Tip prop.:
Individuală
  • • Locație aproximativă

Descriere casă

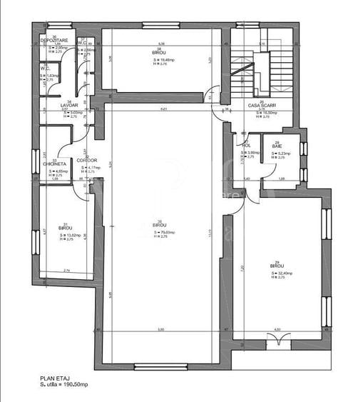
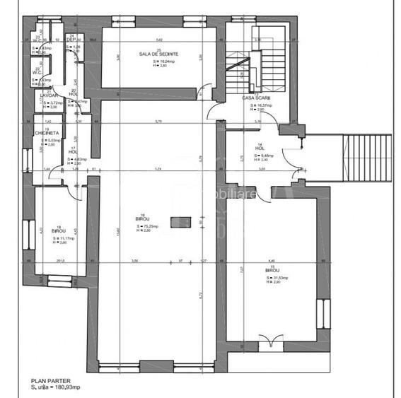
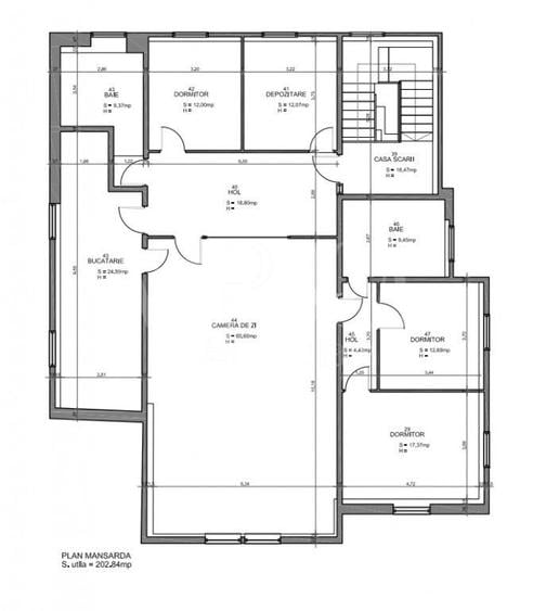
Cladire cu destinatie de functionare mixta! Va propunem spre vanzare un imobil situat in zona semicentrala orasului Cluj-Napoca, la 400 m de Piata Avram Iancu! Avand o suprafata de teren de aproximativ 900 mp, cu un front stradal generos de 45 m si doua intrari auto, pe teren s-au amenataj 14 parcari si o casuta pentru portar. Casa are o suprafata utila de 780 dispuse pe 4 niveluri, intr-un regim de inaltime D+P+E+M, in urmatoarea compartimentare: Demisol: - in curs de amenajare: - 1 open-space; - 4 incaperi; - 1 camera tehnica; - 1 chicineta; - 2 bai. Parter: - birou - 1 open-space; - 3 incaperi; - 1 bucatrie; - 2 bai. Etaj: - birou - 1 open-space; - 3 incaperi; - 1 bucatarie; - 3 bai. Mansarda: - apartament - 1 living generos cu zona de luat masa; - 1 dormitor matrimonial cu baie proprie; - 2 dormitoare; - 1 bucatarie; - 1 baie; - 1 hol. Fiecare nivel are centrala termica proprie cu contor separat si repartitor separat al curentului, pentru separarea completa a utilitatilor fiecarui nivel. Imobilul dispune de pompa de caldura si panouri fotovoltaice pentru diminuarea cheltuielilor. Toata cladirea a fost renovata in intregime in anul 2022 cu materiale de cea mai buna calitare. Pentru detalii suplimentare, vizionari si oferte de pret, nu ezitati sa ne contactati! Napoca Imobiliare! ID oferta: 138890
Citește mai mult Citește mai puțin
Aer condiționat 14 Parcări

Detalii casă

ID anunț: X57Q112VO Copiat! 275388642 Copiat!
Actualizat în: 01 Aprilie 2026
Tip tranzacție: De vânzare prin agent
Suprafață desfășurată: 1000 mp
Nr. bucătării: 4
Nr. băi: 7
Front stradal: 45.0 m
Învelitoare acoperiș: Tabla
An construcție: 2022
Regim înălțime: D+P+1E+M
Modalitate de plată: Cash sau Credit

Utilități

Pereți
Vopsea lavabilă
Podele
Parchet
Ușă intrare
Metal
Uși interior
Lemn
Bucătărie
Mobilată
Diverse
Sistem de alarmă
Facilități imobil
Interfon
Utilități
Curent Apă Canalizare CATV Curent trifazic Gaze Telefon
Internet
Cablu Wireless
Servicii imobil
Supraveghere video
Amenajare străzi
Iluminat stradal Mijloace de transport în comun Asfaltate
Comision
standard

Disponibilitate proprietate:

Imediata

Puncte de interes

Mijloace transport
bus-station
Statia Sora: 32B, 3, 4
Stații autobuz aprox. 112 m
bus-station
Victoria
Stații autobuz aprox. 225 m
tram-station
Statia G. Baritiu 1, Linia 102
Stații tramvai aprox. 460 m
train-station
Gara Noua / "Gara de scurt parcurs"
Stații tren aprox. 1572 m
Școală
university
Universitatea Babes-Bolyai, Fac. de Teologie Rom.-Cat.
Universități aprox. 70 m
kindergarten
Grăd.Universității Babeș< Bolyai
Gradinițe aprox. 79 m
university
Facultatea de Teologie Romano-Catolica
Universități aprox. 108 m
school
Liceul Teologic Unitarian Janos Zsigmond
Școli aprox. 144 m
Recreere
supermarket
Minimarket
Supermarket aprox. 69 m
sports-ground
Teren sportiv
Terenuri sport aprox. 329 m
park
Piata "Avram Iancu"
Parcuri aprox. 331 m
public-square
Piata Mihai Viteazul
Piețe publice aprox. 487 m

Proprietăți similare

Casă individuală cu 11 camere în Zorilor
2.300.000 €
Cluj-Napoca, Zorilor
11 camere
688 mp
700 mp teren
Casă individuală cu 10 camere în Andrei Mureșanu
2.550.000 €
Cluj-Napoca, Andrei Mureșanu
10 camere
608 mp
865 mp teren
Casă individuală cu 10 camere în Andrei Mureșanu
2.550.000 €
Cluj-Napoca, Andrei Mureșanu
10 camere
710 mp
865 mp teren

Detalii de contact

Napoca Imobiliare

Napoca Imobiliare Manager Agentie

Napoca Imobiliare
PRO

Abonează-te la newsletter să fii primul care primește cele mai noi recomandări de proprietăți și sfaturi de la experți.

CONTACT

Creează alertă

Salvează căutarea ca să primești pe email ultimele anunțuri publicate

Case individuale cu 4+ camere de vânzare în zona Central, Cluj-Napoca