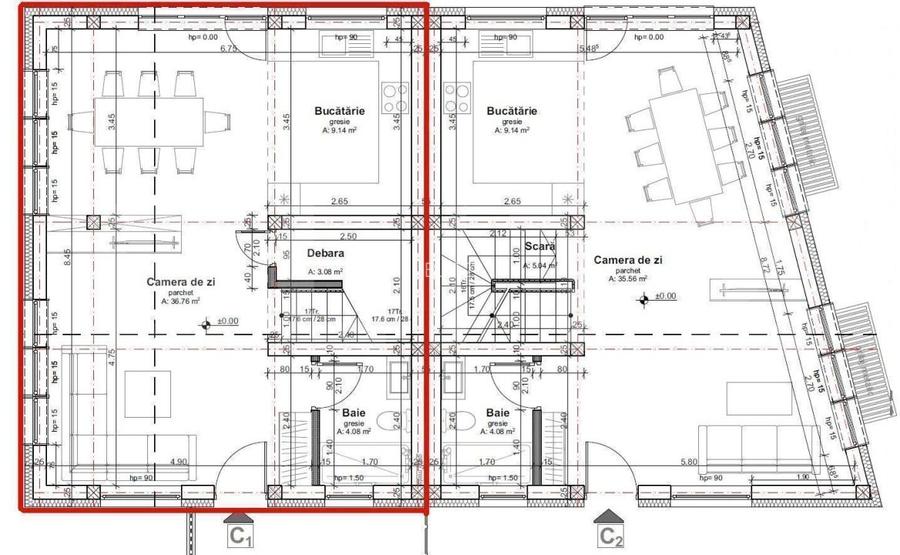
Blitz va propune spre vanzare un duplex modern situat intr-o zona linistita, ideala pentru familii, cu o panorama spectaculoasa asupra peisajului inconjurator.
Sunt disponibile ambele unitati :
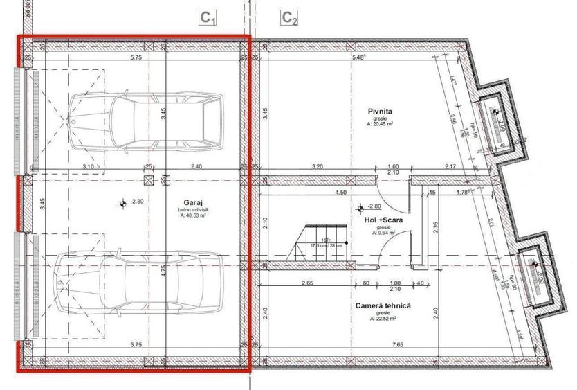
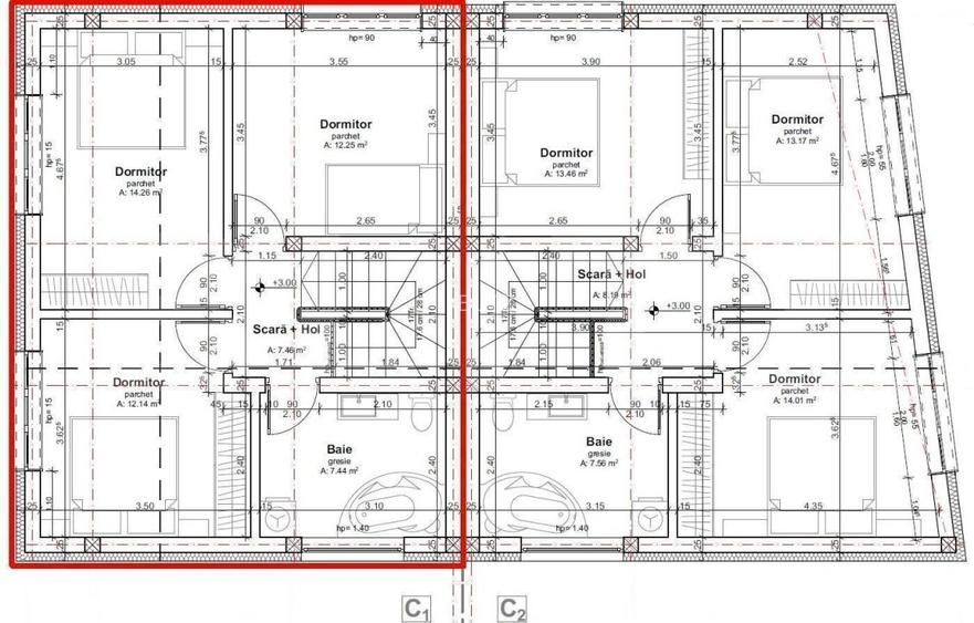
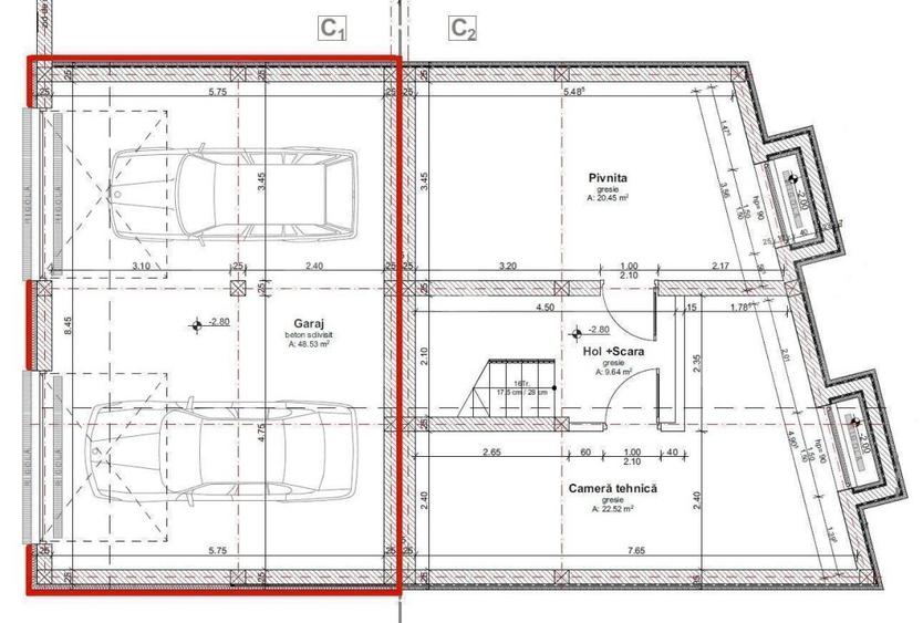
Unitatea din fata (cu 2 garaje, panorama spre oras) – 156 mp utili (inclusiv garaje) + Pod (~30-40 mp utili)
Unitatea din spate (cu pivnita si camera tehnica) – 163 mp utili (inclusiv subsol) + Pod (~30-40 mp utili)
La mansarda inalta, pentru unitatea din spate se vor amenaja 2 bai, in loc de una.
Parcela de teren: 470 mp (inclusiv amprenta casei) + 100 mp drum (50 mp pentru fiecare unitate), drum ce va fi asfaltat in curand, iar Primaria va achizitiona cei 100 mp de la proprietari atunci cand va veni sa finalizeze lucrarile de asfaltare.
Predare la stadiul de semifinisat, astfel: 2 maini de glet, lavabil alb, geamuri termopan cu 7 camere, izolatie exterioara, centrala termica proprie si Incalzire prin pardoseala, instalatii electrice si sanitare trase pe pozitie, acoperis din tabla, exterior amenajat.
Pentru mai multe detalii sau o vizionare, va asteptam cu drag!
Cod oferta / ID BLITZ: P136958
Citește mai mult
Citește mai puțin
Nemobilat
Centrală proprie
Încălzire prin pardoseală
2 Parcări
2 Garaje
Sediul central - Timișoara
Bulevardul Victor Babeș nr. 2, 300230, Timișoara, România
Tel: +40.374.40.44.98 / Fax: +40.256.401.179
Email: suport@imobiliare.ro
Luni - Vineri 08:00 - 20:00
Punct de lucru - București: Iride Business Park, Bld. Dimitrie
Pompeiu 9-9A, Clădirea B2B,
020335, Sector 2, București, România
CONTACT
Sediul central - Timișoara
Bulevardul Victor Babeș nr. 2, 300230, Timișoara, România
Tel: +40.374.40.44.98 / Fax: +40.256.401.179
Email: suport@imobiliare.ro
Luni - Vineri 08:00 - 20:00
Punct de lucru - București: Iride Business Park, Bld. Dimitrie
Pompeiu 9-9A, Clădirea B2B,
020335, Sector 2, București, România
Sună acum și cere detalii sau programează o vizionare.
Cere detalii prin email
*
*
*
*
Stații autobuz
Stații tramvai
Stații tren
Gradinițe
Școli
Supermarket
Parcări
Terenuri sport
Parcuri
Piețe publice
Farmacie
Restaurant
Bar
Cafenea
Bancă
Livezeni
aprox.
653 m
Statia FIMARO, Linia 31
aprox.
655 m
Soarelui
aprox.
681 m
Statia Fagaras, Linia 31
aprox.
850 m
Fagaras
aprox.
856 m
Statia T.Vladimirescu, Linia 31
aprox.
888 m
Tudor Vladimirescu Nord
aprox.
899 m
Statia T.Vladimirescu 2, Linia 31
aprox.
905 m
Tudor Vladimirescu Sud
aprox.
906 m
Trandafirilor
aprox.
947 m
Statia Trandafirilor, Linia 31
aprox.
953 m
Statia Bariera CFR 2, Linia 37
aprox.
1150 m
Bariera CFR Nord
aprox.
1154 m
Statia Bariera CFR, Linia 37
aprox.
1164 m
Bariera CFR
aprox.
1164 m
Statia P-ta Garii 2 TRV, Linia 100, 102, 31
aprox.
1981 m
Piata Garii
aprox.
1991 m
Gara Cluj-Napoca
aprox.
1982 m
Grăd.Neghinițăstr. 1
aprox.
742 m
Gradinita Neghinita
aprox.
908 m
Grăd.Neghiniță
aprox.
1123 m
Grăd.Neghinițăstr. 2
aprox.
1347 m
Grăd.Bambi str.5
aprox.
1670 m
Cresa si Gradinita Heidi
aprox.
1902 m
Școala de Agenți de Poliție "Septimiu Mureșan" Cluj Napoca
aprox.
913 m
Colegiul Național George Barițiu
aprox.
1069 m
Scoala generala nr. 7 / Emil Isac
aprox.
1149 m
Scoala Generala si Liceul Waldorf
aprox.
1197 m
Liceul Teologic Baptist "Emanuel"
aprox.
1755 m
Liceul Teologic Emanuel
aprox.
1773 m
Scoala Speciala pentru Deficienti de Auz Nr. 2
aprox.
1893 m
Lidl
aprox.
1008 m
La Doi Pasi
aprox.
1939 m
Parcare pentru clienti cu plata
aprox.
967 m
Parcare
aprox.
1342 m
Parcare
aprox.
1403 m
Parcare
aprox.
1404 m
Parcare pentru clienti cu plata
aprox.
1669 m
Parcare pentru clienti
aprox.
1728 m
Parcare
aprox.
1729 m
Parcare privata
aprox.
1788 m
Parcare privata
aprox.
1803 m
Parcare privata
aprox.
1808 m
Parcare pentru clienti
aprox.
1843 m
Teren sportiv
aprox.
938 m
Teren sportiv
aprox.
942 m
Fabrica de Sport
aprox.
952 m
Teren sportiv
aprox.
1109 m
Teren sportiv
aprox.
1131 m
Teren sportiv
aprox.
1149 m
CFR 1907 Cluj
aprox.
1669 m
Teren sportiv
aprox.
1962 m
Teren sportiv
aprox.
1987 m
Parc
aprox.
960 m
Parcul CFR
aprox.
1312 m
Parc
aprox.
1355 m
Muzeul Etnografic Cluj (en)
aprox.
1503 m
Parc
aprox.
1814 m
Piata Garii-RailwayStation Square (en)
aprox.
1971 m
Farmacia Catena
aprox.
1948 m
Restaurant
aprox.
796 m
Ilinca
aprox.
1067 m
suson farm (en)
aprox.
1096 m
Hotel Panorama (en)
aprox.
1607 m
La Casa
aprox.
1801 m
Vila Lupsa
aprox.
1823 m
Sunset Hill Rosetti
aprox.
1853 m
Pralina
aprox.
1863 m
Restaurant Autoservire
aprox.
1931 m
Mama Manu
aprox.
1948 m
Terasa "Hoia"
aprox.
1950 m
Cantina Hoia
aprox.
1961 m
Bar
aprox.
1924 m
Las Vegas Caffe
aprox.
1991 m
Bookla
aprox.
1931 m
Banca Transilvania
aprox.
1364 m
Banca Transilvania
aprox.
1366 m
BRD
aprox.
1456 m
BRD
aprox.
1456 m
Banca Transilvania
aprox.
1910 m
BRD
aprox.
1955 m
Printre principalele artere care străbat această zonă a Clujului se numără, în partea de sud, strada Septimiu Mureșan (aceasta merge, pe bună parte din lungimea sa, paralel cu râul Nadăș); în centrul cartierului se află Strada Dâmbul Rotund "“ de unde îi vine, de fapt, și numele; în nord, Strada Gheorghe Sion și Strada Viile Dâmbul Rotund marchează, practic, limita nordică a cartierului. Comparativ cu alte zone ale Clujului, Dâmbul Rotund este, pe alocuri, destul de deficitar în ceea ce privește infrastructura rutieră. Deși este deservit, ca și alte zone clujene, de o serie de mijloace de transport în comun, zona de nord a cartierului ar necesita extinderea liniilor parcurse de acestea. Dacă vrei să cumperi o proprietate aici, interesează-te, așadar, ce distanță ai de parcurs până la cele mai apropiate stații.
Dacă ești părinte "“ sau deocamdată doar îți dorești să devii "“, cu siguranță că, atunci când vine vorba de alegerea unei locuințe, un aspect important la care te gândești este reprezentat de oportunitățile de educație disponibile într-o zonă sau alta. În această privință, poți să stai liniștit: în Dâmbul Rotund se găsesc, ca și în celelalte subdiviziuni ale orașului de pe Someș, mai multe unități de învățământ. O școală cu tradiție din cartier este Școala Gimnazială "Emil Isac", situată chiar în apropiere de Strada Dâmbul Rotund, din zona centrală. În ceea ce privește oportunitățile de continuare a studiilor după liceu, de menționat este Școala de Agenți de Poliție "Septimiu Mureșan" "“ localizată în zona de sud a cartierului, dar dincolo de cursul râului Nadăș.
Ca și în Gruia, în Dâmbul Rotund nu există, momentan, un mall și nici un hipermarket (lucru cât se poate de firesc, de altfel, ținând cont de faptul că este vorba de un cartier mărginaș și cu o densitate a populației relativ redusă). Locuitorii acestei zone nu sunt, însă, lipsiți de alternative când vine vorba de cumpărături "“ astfel, pentru nevoile de zi cu zi există o serie de magazine de dimensiuni mai reduse, dintre care unele afiliate unor rețele internaționale. Chiar dacă nu strict între granițele cartierului, opțiuni există și pentru aceia care sunt pasionați de shopping. Fără prea mare efort, aceștia pot ajunge rapid în zona Centrală a orașului, unde pot vizita numeroasele magazine existente în materie de fashion (și nu numai).
Dacă ai "“ sau intenționezi să-ți achiziționezi "“ o mașină, parcarea nu ar trebui să reprezinte, în mod normal, o problemă, dată fiind densitatea redusă a populației din acest cartier. Dacă dorești, totuși, să închiriezi un spațiu al tău de la autoritățile locale, te poți interesa la sediul central al Primăriei Clujului (amplasat pe Strada Moților, nr. 3).
Spre deosebire de locuitorii altor zone ale Clujului, cei din Dâmbul Rotund nu au la dispoziție un parc în toată puterea cuvântului, cartierul fiind, în general, deficitar și la capitolul locuri de joacă pentru copii. Totuși, având în vedere multitudinea zonelor verzi, poți spera să găsești câteva trasee bune de plimbare. Dacă ești pasionat de sport, iar mersul pe jos și joggingul nu sunt suficiente pentru tine, în Dâmbul Rotund găsești o oportunitate importantă, cunoscută localnicilor sub numele "Fabrica de Sport". Amplasat în sudul cartierului, în fosta zonă industrială, acesta este considerat a fi unul dintre cele mai moderne complexuri sportive din oraș, fiind deschis atât amatorilor de fotbal, cât și celor de fitness, aerobic, kickboxing etc.
Dacă te gândești să te muți în Dâmbul Rotund, poate că vei fi dezamăgit să afli că aici nu există niciun spital de stat. Nu e cazul, însă, să te descurajezi: având în vedere proximitatea față de Centru, pentru serviciile medicale de urgență poți ajunge rapid la multitudinea de spitale care se găsesc în "inima" orașului: Spitalul Clinic Județean de Urgență Cluj-Napoca, Spitalul Clinic Municipal Cluj-Napoca, Spitalul Universitar C.F. Cluj-Napoca etc. Nu sunt de neglijat, desigur, nici cele câteva cabinete medicale particulare ce pot fi găsite în cartier "“ pe acest segment vei găsi atât câteva opțiuni în materie de medicină de familie, cât și în ceea ce privește anumite servicii medicale de specialitate (stomatologie, spre exemplu).
În afară de câteva fast food-uri de cartier, locuitorii cartierului Dâmbul Rotund beneficiază, în apropierea casei, și de câteva oportunități demne de luat în seamă la capitolul restaurante. De menționat este restaurantul "Stejarul", amplasat pe Strada Corneliu Coposu, nr. 95, ce dispune de terasă și oferă și servicii de livrare la domiciliu, dar și restaurantul "Fabrica", de pe Strada Tudor Vladimirescu, nr. 22, unde pot fi organizate și evenimente. Pentru a beneficia de o gamă mai largă de opțiuni pentru ieșirile în oraș cu prietenii, locuitorii acestui cartier au la dispoziție, desigur, și zona Centrală.
Dacă ai nevoie să efectuezi o operațiune bancară, trebuie să știi că strict între granițele acestui cartier nu prea ai opțiuni la acest capitol. Cu toate acestea, imediat sub limita sudică a cartierului, la granița dintre Gruia și zona Centrală (reprezentată de Strada Horea), se găsesc trei sucursale bancare: una din rețeaua BCR, o Banca Transilvania, alături de un sediu Raiffeisen Bank. Consultă harta și află unde sunt localizate și alte bănci sau ATM-uri în cartierul Dâmbul Rotund:
Înainte să pleci...
Ești sigur că ai văzut și aceste proprietăți?
350.000 €
Cluj-Napoca, Dâmbul Rotund
4 camere
127 mp
127 mp teren
345.000 €
Cluj-Napoca, Iris
5 camere
153 mp
330 mp teren
689.000 €
Cluj-Napoca, Dâmbul Rotund
4 camere
234 mp
596 mp teren
480.000 €
Cluj-Napoca, Dâmbul Rotund
2 camere
100 mp
4.280 mp teren
530.000 €
Cluj-Napoca, Dâmbul Rotund
5 camere
250 mp
200 mp teren
360.000 € + TVA
Cluj-Napoca, Iris
4 camere
120 mp
390 mp teren
Creează alertă
Salvează căutarea ca să primești pe email ultimele anunțuri publicate
Case individuale cu 4+ camere de vânzare în zona Dâmbul Rotund, Cluj-Napoca
Cere detalii prin email
*
*
*
*
Detaliile tale de contact vor fi partajate cu Blitz
Preț total1.874.774 RON (368.028 €)
Costuri cu achiziția15.428 RON
Preț de achiziție1.859.346 RON
Costuri cu achiziția15.428 RON
Comision agenție Întreabă agenţia
Onorariu notarial12.639 RON
Taxă înscriere OCPI2.789 RON
Preț de achiziție1.859.346 RON
Preț locuință1.859.346 RON
TVA 0%Inclus în prețul cerut
Cost total300.632 RON (59.015 €)
Avans (15%)278.902 RON
Cost achitat în prima lună3.641 RON
Costuri cu achiziția18.089 RON
Cost achitat în prima lună3.641 RON
Comision analiză dosar
400 RON - 900 RON
Taxă evaluare imobil(până la)
900 RON
Rata lunară (variabilă)8.282 RON
Asigurare anuală imobil1.859 RON
Arhivă electronică102 RON
Poliță PAD130 RON
Asigurare de viață/lună Costul este variabil. În funcție de banca aleasă, procentul variază între 0.0259% și 0.035% din soldul creditului.
Costuri cu achiziția18.089 RON
Comision agenție Întreabă agenţia
Onorariu notarial12.639 RON
Taxă întabulare OCPI2.789 RON
Autentificare contract credit2.661 RON
Preț de achiziție1.859.346 RON
Preț locuință1.859.346 RON
TVA 0%Inclus în prețul cerut
Preț de achiziție1.859.346 RON
Preț locuință1.859.346 RON
TVA 0%
Inclus în prețul cerut
Avans minim1.253.149 RON
Credit pe 30 de ani606.198 RON
Cost achitat în prima lună
Taxa evaluare imobil(până la)
900 RON
Rata lunară (variabilă)4.259 RON
Depozit colateral12.777 RON
Comision de garantare FNGCIMM155 RON
Asigurare anuală imobil1.859 RON
Poliță PAD130 RON
Tarif arhivă electronică102 RON
Costuri adiționale1.999 RON + taxe notariale
Asigurare viață și complexă (opțională)Costul este variabil. În funcție de banca aleasă, procentul variază între 0.0259% și 0.035% din soldul creditului
Onorariu notarialconform tarif notarial
Taxă întabulare OCPI1.999 RON
i
Toate valorile de mai sus sunt estimative și nu reprezintă în mod obligatoriu costurile exacte pe care le veți primi de la companiile/instituțiile prin care veți încheia tranzacția.