Swiss Imobiliare va propune spre vanzare, cu comision 0% pentru cumparator, o unitate duplex situata in cartierul Dambul Rotund, la doar cativa pasi de o gradinita privata, 700m de scoala gimnaziala si 7min cu masina de noul mall Rivus.
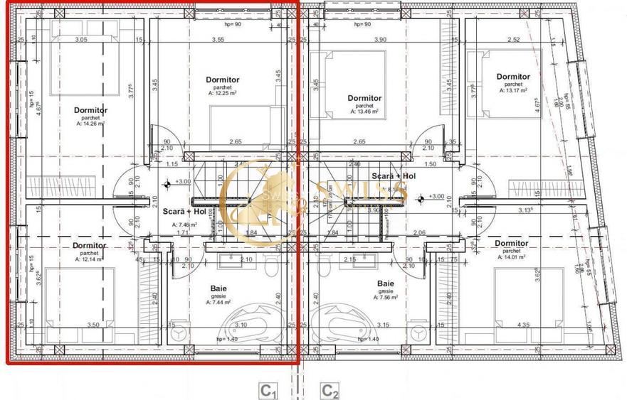
Imobilul este amplasat pe un teren de 280mp, dispus pe un regim de inaltime S+P+E (+ pod, care poate fi folosit pentru depozitare). Suprafata utila este de 156mp, compartimentata astfel:
S: - 2 garaje inchise
P: bucatarie cu loc de luat masa, living, debara, baie
E: 3 camere, hol, baie
Se vinde la stadiul de semifinisat cu 2 maini de glet, lavabil alb, geamuri termopan cu 7 camere, izolatie exterioara cu vata de 15cm, centrala termica proprie cu sistem de incalzire in pardoseala, instalatii electrice si sanitare trase pe pozitie, acoperis tabla si exterior amenajat.
Cealalta unitate similara disponibila la pretul de 360.000 euro.
Pentru mai multe detalii, nu ezitati sa ne contactati.
Citește mai mult
Citește mai puțin
Centrală proprie
Încălzire prin pardoseală
2 Garaje
Sediul central - Timișoara
Bulevardul Victor Babeș nr. 2, 300230, Timișoara, România
Tel: +40.374.40.44.98 / Fax: +40.256.401.179
Email: suport@imobiliare.ro
Luni - Vineri 08:00 - 20:00
Punct de lucru - București: Iride Business Park, Bld. Dimitrie
Pompeiu 9-9A, Clădirea B2B,
020335, Sector 2, București, România
CONTACT
Sediul central - Timișoara
Bulevardul Victor Babeș nr. 2, 300230, Timișoara, România
Tel: +40.374.40.44.98 / Fax: +40.256.401.179
Email: suport@imobiliare.ro
Luni - Vineri 08:00 - 20:00
Punct de lucru - București: Iride Business Park, Bld. Dimitrie
Pompeiu 9-9A, Clădirea B2B,
020335, Sector 2, București, România
Sună acum și cere detalii sau programează o vizionare.
Cere detalii prin email
*
*
*
*
Stații autobuz
Stații tramvai
Stații tren
Gradinițe
Școli
Supermarket
Parcări
Terenuri sport
Parcuri
Piețe publice
Farmacie
Restaurant
Bar
Cafenea
Bancă
Livezeni
aprox.
653 m
Statia FIMARO, Linia 31
aprox.
655 m
Soarelui
aprox.
681 m
Statia Fagaras, Linia 31
aprox.
850 m
Fagaras
aprox.
856 m
Statia T.Vladimirescu, Linia 31
aprox.
888 m
Tudor Vladimirescu Nord
aprox.
899 m
Statia T.Vladimirescu 2, Linia 31
aprox.
905 m
Tudor Vladimirescu Sud
aprox.
906 m
Trandafirilor
aprox.
947 m
Statia Trandafirilor, Linia 31
aprox.
953 m
Statia Bariera CFR 2, Linia 37
aprox.
1150 m
Bariera CFR Nord
aprox.
1154 m
Statia Bariera CFR, Linia 37
aprox.
1164 m
Bariera CFR
aprox.
1164 m
Statia P-ta Garii 2 TRV, Linia 100, 102, 31
aprox.
1981 m
Piata Garii
aprox.
1991 m
Gara Cluj-Napoca
aprox.
1982 m
Grăd.Neghinițăstr. 1
aprox.
742 m
Gradinita Neghinita
aprox.
908 m
Grăd.Neghiniță
aprox.
1123 m
Grăd.Neghinițăstr. 2
aprox.
1347 m
Grăd.Bambi str.5
aprox.
1670 m
Cresa si Gradinita Heidi
aprox.
1902 m
Școala de Agenți de Poliție "Septimiu Mureșan" Cluj Napoca
aprox.
913 m
Colegiul Național George Barițiu
aprox.
1069 m
Scoala generala nr. 7 / Emil Isac
aprox.
1149 m
Scoala Generala si Liceul Waldorf
aprox.
1197 m
Liceul Teologic Baptist "Emanuel"
aprox.
1755 m
Liceul Teologic Emanuel
aprox.
1773 m
Scoala Speciala pentru Deficienti de Auz Nr. 2
aprox.
1893 m
Lidl
aprox.
1008 m
La Doi Pasi
aprox.
1939 m
Parcare pentru clienti cu plata
aprox.
967 m
Parcare
aprox.
1342 m
Parcare
aprox.
1403 m
Parcare
aprox.
1404 m
Parcare pentru clienti cu plata
aprox.
1669 m
Parcare pentru clienti
aprox.
1728 m
Parcare
aprox.
1729 m
Parcare privata
aprox.
1788 m
Parcare privata
aprox.
1803 m
Parcare privata
aprox.
1808 m
Parcare pentru clienti
aprox.
1843 m
Teren sportiv
aprox.
938 m
Teren sportiv
aprox.
942 m
Fabrica de Sport
aprox.
952 m
Teren sportiv
aprox.
1109 m
Teren sportiv
aprox.
1131 m
Teren sportiv
aprox.
1149 m
CFR 1907 Cluj
aprox.
1669 m
Teren sportiv
aprox.
1962 m
Teren sportiv
aprox.
1987 m
Parc
aprox.
960 m
Parcul CFR
aprox.
1312 m
Parc
aprox.
1355 m
Muzeul Etnografic Cluj (en)
aprox.
1503 m
Parc
aprox.
1814 m
Piata Garii-RailwayStation Square (en)
aprox.
1971 m
Farmacia Catena
aprox.
1948 m
Restaurant
aprox.
796 m
Ilinca
aprox.
1067 m
suson farm (en)
aprox.
1096 m
Hotel Panorama (en)
aprox.
1607 m
La Casa
aprox.
1801 m
Vila Lupsa
aprox.
1823 m
Sunset Hill Rosetti
aprox.
1853 m
Pralina
aprox.
1863 m
Restaurant Autoservire
aprox.
1931 m
Mama Manu
aprox.
1948 m
Terasa "Hoia"
aprox.
1950 m
Cantina Hoia
aprox.
1961 m
Bar
aprox.
1924 m
Las Vegas Caffe
aprox.
1991 m
Bookla
aprox.
1931 m
Banca Transilvania
aprox.
1364 m
Banca Transilvania
aprox.
1366 m
BRD
aprox.
1456 m
BRD
aprox.
1456 m
Banca Transilvania
aprox.
1910 m
BRD
aprox.
1955 m
Printre principalele artere care străbat această zonă a Clujului se numără, în partea de sud, strada Septimiu Mureșan (aceasta merge, pe bună parte din lungimea sa, paralel cu râul Nadăș); în centrul cartierului se află Strada Dâmbul Rotund "“ de unde îi vine, de fapt, și numele; în nord, Strada Gheorghe Sion și Strada Viile Dâmbul Rotund marchează, practic, limita nordică a cartierului. Comparativ cu alte zone ale Clujului, Dâmbul Rotund este, pe alocuri, destul de deficitar în ceea ce privește infrastructura rutieră. Deși este deservit, ca și alte zone clujene, de o serie de mijloace de transport în comun, zona de nord a cartierului ar necesita extinderea liniilor parcurse de acestea. Dacă vrei să cumperi o proprietate aici, interesează-te, așadar, ce distanță ai de parcurs până la cele mai apropiate stații.
Dacă ești părinte "“ sau deocamdată doar îți dorești să devii "“, cu siguranță că, atunci când vine vorba de alegerea unei locuințe, un aspect important la care te gândești este reprezentat de oportunitățile de educație disponibile într-o zonă sau alta. În această privință, poți să stai liniștit: în Dâmbul Rotund se găsesc, ca și în celelalte subdiviziuni ale orașului de pe Someș, mai multe unități de învățământ. O școală cu tradiție din cartier este Școala Gimnazială "Emil Isac", situată chiar în apropiere de Strada Dâmbul Rotund, din zona centrală. În ceea ce privește oportunitățile de continuare a studiilor după liceu, de menționat este Școala de Agenți de Poliție "Septimiu Mureșan" "“ localizată în zona de sud a cartierului, dar dincolo de cursul râului Nadăș.
Ca și în Gruia, în Dâmbul Rotund nu există, momentan, un mall și nici un hipermarket (lucru cât se poate de firesc, de altfel, ținând cont de faptul că este vorba de un cartier mărginaș și cu o densitate a populației relativ redusă). Locuitorii acestei zone nu sunt, însă, lipsiți de alternative când vine vorba de cumpărături "“ astfel, pentru nevoile de zi cu zi există o serie de magazine de dimensiuni mai reduse, dintre care unele afiliate unor rețele internaționale. Chiar dacă nu strict între granițele cartierului, opțiuni există și pentru aceia care sunt pasionați de shopping. Fără prea mare efort, aceștia pot ajunge rapid în zona Centrală a orașului, unde pot vizita numeroasele magazine existente în materie de fashion (și nu numai).
Dacă ai "“ sau intenționezi să-ți achiziționezi "“ o mașină, parcarea nu ar trebui să reprezinte, în mod normal, o problemă, dată fiind densitatea redusă a populației din acest cartier. Dacă dorești, totuși, să închiriezi un spațiu al tău de la autoritățile locale, te poți interesa la sediul central al Primăriei Clujului (amplasat pe Strada Moților, nr. 3).
Spre deosebire de locuitorii altor zone ale Clujului, cei din Dâmbul Rotund nu au la dispoziție un parc în toată puterea cuvântului, cartierul fiind, în general, deficitar și la capitolul locuri de joacă pentru copii. Totuși, având în vedere multitudinea zonelor verzi, poți spera să găsești câteva trasee bune de plimbare. Dacă ești pasionat de sport, iar mersul pe jos și joggingul nu sunt suficiente pentru tine, în Dâmbul Rotund găsești o oportunitate importantă, cunoscută localnicilor sub numele "Fabrica de Sport". Amplasat în sudul cartierului, în fosta zonă industrială, acesta este considerat a fi unul dintre cele mai moderne complexuri sportive din oraș, fiind deschis atât amatorilor de fotbal, cât și celor de fitness, aerobic, kickboxing etc.
Dacă te gândești să te muți în Dâmbul Rotund, poate că vei fi dezamăgit să afli că aici nu există niciun spital de stat. Nu e cazul, însă, să te descurajezi: având în vedere proximitatea față de Centru, pentru serviciile medicale de urgență poți ajunge rapid la multitudinea de spitale care se găsesc în "inima" orașului: Spitalul Clinic Județean de Urgență Cluj-Napoca, Spitalul Clinic Municipal Cluj-Napoca, Spitalul Universitar C.F. Cluj-Napoca etc. Nu sunt de neglijat, desigur, nici cele câteva cabinete medicale particulare ce pot fi găsite în cartier "“ pe acest segment vei găsi atât câteva opțiuni în materie de medicină de familie, cât și în ceea ce privește anumite servicii medicale de specialitate (stomatologie, spre exemplu).
În afară de câteva fast food-uri de cartier, locuitorii cartierului Dâmbul Rotund beneficiază, în apropierea casei, și de câteva oportunități demne de luat în seamă la capitolul restaurante. De menționat este restaurantul "Stejarul", amplasat pe Strada Corneliu Coposu, nr. 95, ce dispune de terasă și oferă și servicii de livrare la domiciliu, dar și restaurantul "Fabrica", de pe Strada Tudor Vladimirescu, nr. 22, unde pot fi organizate și evenimente. Pentru a beneficia de o gamă mai largă de opțiuni pentru ieșirile în oraș cu prietenii, locuitorii acestui cartier au la dispoziție, desigur, și zona Centrală.
Dacă ai nevoie să efectuezi o operațiune bancară, trebuie să știi că strict între granițele acestui cartier nu prea ai opțiuni la acest capitol. Cu toate acestea, imediat sub limita sudică a cartierului, la granița dintre Gruia și zona Centrală (reprezentată de Strada Horea), se găsesc trei sucursale bancare: una din rețeaua BCR, o Banca Transilvania, alături de un sediu Raiffeisen Bank. Consultă harta și află unde sunt localizate și alte bănci sau ATM-uri în cartierul Dâmbul Rotund:
Înainte să pleci...
Ești sigur că ai văzut și aceste proprietăți?
320.000 €
Cluj-Napoca, Dâmbul Rotund
4 camere
100 mp
300 mp teren
480.000 €
Cluj-Napoca, Dâmbul Rotund
6 camere
170 mp
600 mp teren
359.000 €
Cluj-Napoca, Mănăștur
4 camere
150 mp
300 mp teren
459.000 €
Cluj-Napoca, Dâmbul Rotund
5 camere
157 mp
410 mp teren
389.900 €
Cluj-Napoca, Gruia
5 camere
145 mp
230 mp teren
350.000 €
Cluj-Napoca, Dâmbul Rotund
4 camere
130 mp
164 mp teren
Creează alertă
Salvează căutarea ca să primești pe email ultimele anunțuri publicate
Case individuale cu 4+ camere de vânzare în zona Dâmbul Rotund, Cluj-Napoca
Cere detalii prin email
*
*
*
*
Detaliile tale de contact vor fi partajate cu Swiss Imobiliare
Preț total1.875.509 RON (368.028 €)
Costuri cu achiziția15.433 RON
Preț de achiziție1.860.076 RON
Costuri cu achiziția15.433 RON
Comision agenție Întreabă agenţia
Onorariu notarial12.643 RON
Taxă înscriere OCPI2.790 RON
Preț de achiziție1.860.076 RON
Preț locuință1.860.076 RON
TVA 0%Inclus în prețul cerut
Cost total300.748 RON (59.015 €)
Avans (15%)279.011 RON
Cost achitat în prima lună3.642 RON
Costuri cu achiziția18.095 RON
Cost achitat în prima lună3.642 RON
Comision analiză dosar
400 RON - 900 RON
Taxă evaluare imobil(până la)
900 RON
Rata lunară (variabilă)8.286 RON
Asigurare anuală imobil1.860 RON
Arhivă electronică102 RON
Poliță PAD130 RON
Asigurare de viață/lună Costul este variabil. În funcție de banca aleasă, procentul variază între 0.0259% și 0.035% din soldul creditului.
Costuri cu achiziția18.095 RON
Comision agenție Întreabă agenţia
Onorariu notarial12.643 RON
Taxă întabulare OCPI2.790 RON
Autentificare contract credit2.662 RON
Preț de achiziție1.860.076 RON
Preț locuință1.860.076 RON
TVA 0%Inclus în prețul cerut
Preț de achiziție1.860.076 RON
Preț locuință1.860.076 RON
TVA 0%
Inclus în prețul cerut
Avans minim1.253.641 RON
Credit pe 30 de ani606.436 RON
Cost achitat în prima lună
Taxa evaluare imobil(până la)
900 RON
Rata lunară (variabilă)4.261 RON
Depozit colateral12.783 RON
Comision de garantare FNGCIMM155 RON
Asigurare anuală imobil1.860 RON
Poliță PAD130 RON
Tarif arhivă electronică102 RON
Costuri adiționale2.000 RON + taxe notariale
Asigurare viață și complexă (opțională)Costul este variabil. În funcție de banca aleasă, procentul variază între 0.0259% și 0.035% din soldul creditului
Onorariu notarialconform tarif notarial
Taxă întabulare OCPI2.000 RON
i
Toate valorile de mai sus sunt estimative și nu reprezintă în mod obligatoriu costurile exacte pe care le veți primi de la companiile/instituțiile prin care veți încheia tranzacția.