14

Ansamblu rezidential cu case tip Duplex de 118mp pe Valea Chintaului

193.600 €

Exterior Nord, Cluj-Napoca

Nr. cam.:
5
Sup. utilă:
118 mp
Sup. teren:
265 mp
Tip prop.:
Casă individuală
  • • Locație aproximativă

Descriere casă

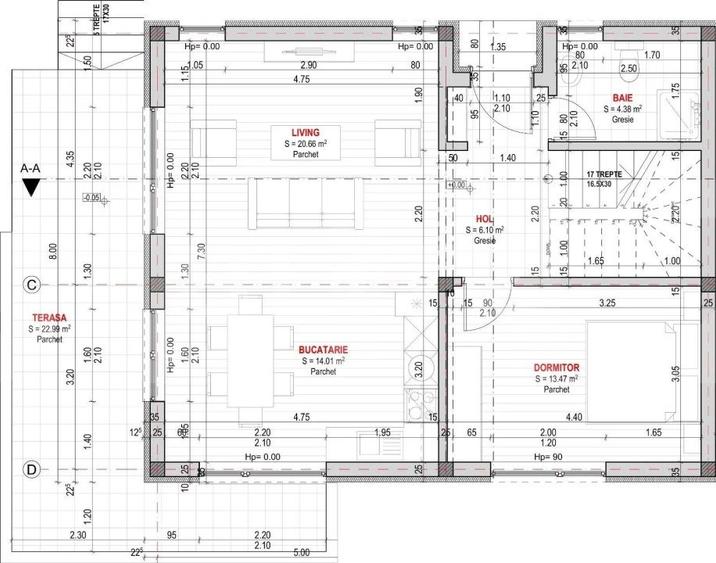
Blitz ofera spre vanzare ansamblu premium de case ,situat intr-o zona cautata , in plina dezvoltare .Proiectul ansamblului este conceput pentru case cuplate cu cate doua unitati locative..Suprafata utila este de 118 mp ,iar terenul fiecarei unitati va fi de cca 265mp. Compartimentarea este foarte practic gandita pentru fiecare casa si anume la parter avem un living spatios cu acces la terasa si bucatarie open space,(sau cu posibilitate de inchidere),hol,un dormitor si baie .La etaj sunt trei dormitoare din care , un dormitor matrimonial cu baie proprie si inca o baie pe hol ce le deserveste pe celalalte doua . Casele vor fi construite din caramida de 25 cm .Se vor preda la stadiul de semifinisat interior si finisat exterior si cu : -centrala termica proprie si incalzire in pardoseala pe intreaga suprafata; -ferestre termopan cu 7 camere si sticla tripan; -termoziolatie cu polisitren cu 10 cm EPS 80; -pereti gletuiti si instalatii sanitare si electrice la pozitie; -acoperis din tigla; -curtea imprejmuita si amenajari alee acces si parcari asemenea, contracost centrala termica pe gaz poate fi inlocuita cu pompa de caldura. Casa are regim de inaltime P+E, front 10 ml, iar accesul se face de pe un drum asfaltat. In curte exista posibilitatea de a parca 2 masini intr-un spatiu amenajat.Accesul se face usor si este aproape de mijloacele de transport in comun.Termenul de finalizare estimat este sfarsitul acestui an. In incinta complexului se vor amenaja doua spatii de joaca si zona verde. La pretul afisat se adauga TVA . Cod ofertă / ID BLITZ: P3041
Citește mai mult Citește mai puțin
Nemobilat 2 Parcări Bine întreținut (Bună)

Detalii casă

ID anunț: XFTI1115G Copiat! 261092276 Copiat!
Actualizat în: 25 Mai 2026
Tip tranzacție: De vânzare prin agent
Nr. bucătării: 1
Nr. băi: 3
Nr. balcoane / Terase / Logii: 1
Nr. terase: 1
Suprafață terase: 23 mp
An construcție: 2022 (La gri)
Structură rezistență: Cărămidă
Regim înălțime: P+1E
Modalitate de plată: Cash sau Credit

Utilități

Comision
2%

Puncte de interes

Mijloace transport
bus-station
Catun Est
Stații autobuz aprox. 340 m
bus-station
Catun Vest
Stații autobuz aprox. 364 m
bus-station
M-Garden E
Stații autobuz aprox. 389 m
bus-station
M-Garden
Stații autobuz aprox. 389 m

Istoricul prețurilor

Acces la informații premium după autentificare
Login Gratuit

Detalii despre preț și costuri

Costuri cu achiziția

Fără credit
Credit ipotecar
Noua casă

i

Costuri adiționale mai puțin știute la achiziție: taxe notariale, comisioane etc.

Acces la informații premium după autentificare
Login Gratuit

Proprietăți similare

Casă individuală cu 2 camere în Dâmbul Rotund
160.000 €
Cluj-Napoca, Dâmbul Rotund
2 camere
70 mp
430 mp teren
Casă individuală cu 2 camere în Iris
150.000 €
Cluj-Napoca, Iris
2 camere
70 mp
1.113 mp teren
Casă individuală cu 2 camere în Dâmbul Rotund
145.000 €
Cluj-Napoca, Dâmbul Rotund
2 camere
50 mp
100 mp teren

Detalii de contact

BLITZ

BLITZ ROMANIA

4.68(112 review-uri)

BLITZ
PRO

Abonează-te la newsletter să fii primul care primește cele mai noi recomandări de proprietăți și sfaturi de la experți.

CONTACT

Creează alertă

Salvează căutarea ca să primești pe email ultimele anunțuri publicate

Case individuale cu 4+ camere de vânzare în zona Exterior Nord, Cluj-Napoca