De vanzare casa individuala in Gruia zona Hotel ARY.
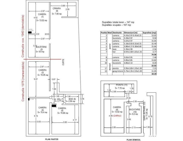
Casa este compusa din doua sectiuni (vezi planul anexat)
La strada pe doua nivele; parter: garaj (transformat in camera), bucatarie, pivnita si gang etaj: 3 camere, hol si baie. Cunstructie, edificata in 1975, din caramida pe fundatie din beton acoperita cu tigla. Incalzirea se face cu sobe din teracota.
In curte: camera si bucatarie, constructie antebelica, din caramida.
Suprafata terenului este de 147mp iar cea utila este de cca. 100mp. Imobilul este cu toate actele in regula.
Pentru mai multe detalii nu ezitati sa ne contactati! ID: P13221
Sediul central - Timișoara
Bulevardul Victor Babeș nr. 2, 300230, Timișoara, România
Tel: +40.374.40.44.98 / Fax: +40.256.401.179
Email: suport@imobiliare.ro
Luni - Vineri 08:00 - 20:00
Punct de lucru - București: Iride Business Park, Bld. Dimitrie
Pompeiu 9-9A, Clădirea B2B,
020335, Sector 2, București, România
CONTACT
Sediul central - Timișoara
Bulevardul Victor Babeș nr. 2, 300230, Timișoara, România
Tel: +40.374.40.44.98 / Fax: +40.256.401.179
Email: suport@imobiliare.ro
Luni - Vineri 08:00 - 20:00
Punct de lucru - București: Iride Business Park, Bld. Dimitrie
Pompeiu 9-9A, Clădirea B2B,
020335, Sector 2, București, România
Una dintre principalele artere care străbate această zonă a Clujului, pe direcția sud-vest "“ nord-est, este Strada Gruia "“ de aici îi vine, de fapt, și numele. Alte străzi importante sunt și Romulus Vuia, care traversează cartierul pe aproape toată întinderea sa, de la stânga la dreapta, și care face legătura cu Tăietura Turcului, din vest. Ca și locuitorii altor cartiere clujene, cei din Gruia beneficiază de o rețea bine pusă la punct de mijloace de transport în comun. Nu același lucru se poate spune, totuși, în ceea ce privește pistele pentru biciclete, astfel că cei pasionați de ciclism trebuie să se descurce pe cont propriu în această privință "“ faptul că acesta nu este un cartier aglomerat constituie, însă, un avantaj.
Dacă ai "“ sau doar plănuiești să ai "“ copii, nu trebuie să-ți faci griji în privința oportunităților de educație oferite de cartierul Gruia: probabil că nu vei avea probleme în găsirea unei grădinițe sau unei școli pentru aceștia. În afară de unitățile obișnuite de învățământ, fie ele de stat sau particulare, aici vei găsi și Școala Specială pentru Deficienți de Auz nr. 2 (pe strada Gruia, nr. 51). Opțiuni numeroase există și la capitolul licee, de menționat fiind, printre altele, Liceul Teologic Baptist "Emanuel". În Gruia se găsește și una dintre facultățile importante ale Universității "Babeș-Bolyai" din Cluj-Napoca: este vorba despre Facultatea de Litere, ce se află situată aproape de granița de est a cartierul, pe Strada Horea, la nr. 31.
Dat fiind numărul relativ redus de locuitori și localizarea periferică a acestui cartier, nu este de mirare că în această zonă a Clujului nu se găsește niciun mall și niciun hipermarket. Asta nu înseamnă, însă, că dacă locuiești aici nu ai de unde să-ți faci cumpărăturile: în Gruia se găsesc destule magazine de mici dimensiuni pentru a-ți satisface nevoile de zi cu zi. Dacă îți dorești, totuși, să ai la dispoziție mai multe opțiuni la categoria alimente, cosmetice și articole de casă, poți ajunge cu ușurință la hipermarketul Cora din Grigorescu. Pasionații de shopping, pe de altă parte, pot vizita atât centrul comercial Platinia Shopping Center de la marginea cartierului Plopilor (la granița cu Centru și Mănăștur), cât și magazinele și galeriile comerciale din zona centrală a orașului "“ unde vor putea găsi destule opțiuni în materie de fashion.
Pentru cei care au mașină, parcarea nu ar trebui să reprezinte, în mod normal, o problemă, dată fiind densitatea redusă a populației din cartier. Cei care doresc să închirieze, însă, un loc de parcare de la autoritățile locale se pot interesa la sediul central al Primăriei Clujului (pe Strada Moților, nr. 3).
În ceea ce privește oportunitățile de petrecere a timpului în aer liber, locuitorii cartierului Gruia se pot "lăuda" cu unul dintre cele mai frumoase parcuri din oraș, anume Parcul Cetățuia; amenajat la înălțime, în jurul unei citadele ridicate de către habsburgi la începutul secolului al XVIII-lea, acesta reprezintă un loc perfect de plimbare și relaxare. O bună destinație de weekend este și Muzeul Etnografic "Romulus Vuia" "“ chiar dacă acesta este amplasat dincolo de limita de vest a cartierului. Și pasionații de sport au motive de bucurie: în Gruia se găsește Stadionul C.F.R. (sau Constantin Rădulescu), folosit doar de către fotbaliști, dar și Baza Sportivă C.M.C. (prevăzută cu stadion multifuncțional, teren sintetic etc.). Tot în zonă (în apropierea Parcului Cetățuia) se găsește și un club de tenis, unul de squash, dar și Turnul Parașutiștilor.
Dacă ți-ai dori să locuiești în cartierul Gruia, te vei bucura să afli că în interiorul acestuia, aproape de granița cu Centrul, se găsesc trei importante unități medicale de stat: Spitalul de Pediatrie 2 (de pe strada Crișan, nr. 3-5), Spitalul de Pediatrie 3 (de pe Strada Câmpeni, nr. 2-4), dar și Ambulatorul C.F.R. sau Policlinica C.F.R. (de pe Strada Câmpeni, nr. 3). Din Gruia poți ajunge cu ușurință și în Centru, unde vei găsi cele mai multe spitale din oraș. În zonă poți găsi și câteva cabinete medicale particulare, având diferite specializări. În această categorie se încadrează, spre exemplu, Clinica Endoplus (de pe Strada Emil Racoviță, nr. 54), cu specializarea urologie și andrologie, dar și cabinetul Sanprev (Strada Horea, nr. 67-73), ce oferă servicii în domeniul medicinii muncii.
În afară de câteva fast food-uri de cartier, locuitorii cartierului Gruia beneficiază, în apropierea casei, și de alte oportunități interesante la capitolul gastronomie. Printre acestea se numără restaurantul "Panorama del Baron", amplasat pe Strada Șerpuitoare, nr. 31, ce oferă și servicii de livrare la domiciliu, dar și restaurantul "Vila Lupșa", de pe Strada Rahovei, nr. 7A. Pentru a beneficia de o gamă mai largă de opțiuni pentru ieșirile în oraș cu prietenii, locuitorii acestui cartier pot vizita, desigur, și cartierele învecinate "“ inclusiv zona Centrală.
Dacă ai nevoie să efectuezi o operațiune bancară, te vei bucura să afli că în zona Gruia vei beneficia de destule opțiuni la acest capitol. Astfel, în zona de nord-est a cartierului, la granița cu zona Centrală (reprezentată de Strada Horea), se găsesc trei sucursale bancare: una din rețeaua BCR, o Banca Transilvania, alături de un sediu Raiffeisen Bank. Consultă harta și află unde sunt localizate și alte bănci sau ATM-uri în cartierul Gruia:
Înainte să pleci...
Ești sigur că ai văzut și aceste proprietăți?
279.000 €
Cluj-Napoca, Aeroport
5 camere
136 mp
550 mp teren
310.000 €
Cluj-Napoca, Iris
4 camere
150 mp
334 mp teren
310.000 €
Cluj-Napoca, Gheorgheni
4 camere
125,17 mp
270 mp teren
Creează alertă
Salvează căutarea ca să primești pe email ultimele anunțuri publicate
Case individuale cu 4+ camere de vânzare în zona Gruia, Cluj-Napoca
Cere detalii prin email
*
*
*
*
Detaliile tale de contact vor fi partajate cu Bling Imobiliare
Preț total1.491.048 RON (292.522 €)
Costuri cu achiziția12.860 RON
Preț de achiziție1.478.188 RON
Costuri cu achiziția12.860 RON
Comision agenție Întreabă agenţia
Onorariu notarial10.643 RON
Taxă înscriere OCPI2.217 RON
Preț de achiziție1.478.188 RON
Preț locuință1.478.188 RON
TVA 0%Inclus în prețul cerut
Cost total240.192 RON (47.122 €)
Avans (15%)221.728 RON
Cost achitat în prima lună3.260 RON
Costuri cu achiziția15.204 RON
Cost achitat în prima lună3.260 RON
Comision analiză dosar
400 RON - 900 RON
Taxă evaluare imobil(până la)
900 RON
Rata lunară (variabilă)6.585 RON
Asigurare anuală imobil1.478 RON
Arhivă electronică102 RON
Poliță PAD130 RON
Asigurare de viață/lună Costul este variabil. În funcție de banca aleasă, procentul variază între 0.0259% și 0.035% din soldul creditului.
Costuri cu achiziția15.204 RON
Comision agenție Întreabă agenţia
Onorariu notarial10.643 RON
Taxă întabulare OCPI2.217 RON
Autentificare contract credit2.344 RON
Preț de achiziție1.478.188 RON
Preț locuință1.478.188 RON
TVA 0%Inclus în prețul cerut
Preț de achiziție1.478.188 RON
Preț locuință1.478.188 RON
TVA 0%
Inclus în prețul cerut
Avans minim871.621 RON
Credit pe 30 de ani606.567 RON
Cost achitat în prima lună
Taxa evaluare imobil(până la)
900 RON
Rata lunară (variabilă)4.262 RON
Depozit colateral12.786 RON
Comision de garantare FNGCIMM123 RON
Asigurare anuală imobil1.478 RON
Poliță PAD130 RON
Tarif arhivă electronică102 RON
Costuri adiționale1.618 RON + taxe notariale
Asigurare viață și complexă (opțională)Costul este variabil. În funcție de banca aleasă, procentul variază între 0.0259% și 0.035% din soldul creditului
Onorariu notarialconform tarif notarial
Taxă întabulare OCPI1.618 RON
i
Toate valorile de mai sus sunt estimative și nu reprezintă în mod obligatoriu costurile exacte pe care le veți primi de la companiile/instituțiile prin care veți încheia tranzacția.