Tomis I, vila P+1 cu 4 camere, 2 balcoane, curte, loc de parcare

330.000 €

Tomis I, Constanța

Nr. cam.:
4
Sup. utilă:
106 mp
Sup. teren:
139 mp
Tip prop.:
Individuală
  • • Exclusivitate
  • • Locație Verificată
  • • Locație exactă

Descriere casă

Vila se afla intr-o zona foarte linistita, in apropiere de bd. Al Lapusneanu, cu acces facil la toate arterele principale si la mijloacele de transport. Datorita pozitionarii, este ideala pentru locuit, dar si pentru activitate de birou sau cabinete, gradinita. In fata constructiei, se afla curtea cu gradina si locul de parcare. La parter se afla un living, o camera (in functie de dorinta noului proprietar, poate fi bucatarie sau dormitor), baie, iar etajul are doua dormitoare, o baie si doua balcoane. Casa are compartimentarea ideala, ca a unui duplex, avantajul fiind ca are curte proprie, loc de parcare atat in curte, cat si in fata portii. Programeaza o vizionare! Poate fi CASA POTRIVITA pentru tine!
Citește mai mult Citește mai puțin
Grădină Curte Aer condiționat Calorifere Centrală proprie 1 Garaj Bine întreținut (Bună) Zonă de litoral

Detalii casă

ID anunț: XBVS0100D Copiat! 129342 Copiat!
Actualizat în: 16 Februarie 2026
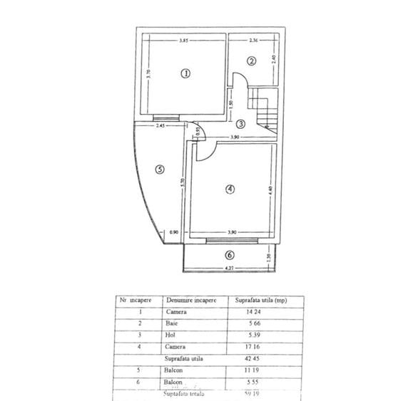
Suprafață construită: 60 mp
Suprafață desfășurată: 106 mp
Nr. bucătării: 1
Nr. băi: 2
Nr. balcoane / Terase / Logii: 2
Nr. terase: 2
Suprafață terase: 17 mp
Front stradal: 6.56 m
Învelitoare acoperiș: Tabla
An construcție: 2010 (Finalizată)
Structură rezistență: Beton
Regim înălțime: P+1E

Utilități

Destinație
Rezidențial Comercial Birouri
Pereți
Faianță Vopsea lavabilă
Podele
Parchet Gresie
Izolații termice
Exterior
Contorizare
Apometre Contor gaz
Facilități imobil
Acoperiș
Utilități
Curent Apă Canalizare CATV Telefon
Internet
Cablu Fibră optică Wireless
Amenajare străzi
Asfaltate Pietruite Mijloace de transport în comun Iluminat stradal
Comision
2% din valoare

Certificat energetic:

Clasa energetică: A

Vecinătăți:

Central, Casa de Cultura, Tomis I, Trocadero, Spitalul Judetean, Universitatea Andrei Saguna

Disponibilitate proprietate:

de comun acord cu proprietarul

Puncte de interes

Mijloace transport
bus-station
Statia Saguna; Linia 100,100C
Stații autobuz aprox. 58 m
bus-station
Statia Casa de Cultura; Linia 100, 100C
Stații autobuz aprox. 458 m
train-station
Gara CFR Constanta(1960)
Stații tren aprox. 1786 m
train-station
Gara Constanța(1960)
Stații tren aprox. 1802 m
Școală
kindergarten
Nouvelle generation
Gradinițe aprox. 55 m
school
Telecom High School (en)
Școli aprox. 109 m
university
Universitatea Andrei Saguna
Universități aprox. 136 m
kindergarten
Gradinita Nr. 23
Gradinițe aprox. 411 m
Recreere
supermarket
Carrefour Market
Supermarket aprox. 49 m
park
Phantasya
Parcuri aprox. 135 m
sports-ground
Teren sportiv
Terenuri sport aprox. 1256 m
public-square
Piața Chiliei
Piețe publice aprox. 1329 m

Detalii despre preț și costuri

Costuri cu achiziția

Fără credit
14.228 RON
Credit ipotecar
16.741 RON
Noua casă
1.821 RON+ taxe notariale

i

Costuri adiționale mai puțin știute la achiziție: taxe notariale, comisioane etc.

Proprietăți recomandate

Detalii de contact

CASA POTRIVITA

Simona Administrator

4.95(13 review-uri)

CASA POTRIVITA
PRO

Abonează-te la newsletter să fii primul care primește cele mai noi recomandări de proprietăți și sfaturi de la experți.

CONTACT

Creează alertă

Salvează căutarea ca să primești pe email ultimele anunțuri publicate

Case individuale cu 4+ camere de vânzare în zona Tomis I, Constanța