Proiect , compus din cinci locuinte avand aceeasi arhitectura, cu mici accente de culoare si placari de piatra.Mai este disponibila o singura unitate cu finalizare 1.04.2025. In interiorul complexului zonele de parcare ale proprietatilor vor fi deschise, se vor crea alveole de parcare pentru oaspeti, iar fiecare proprietate va avea un stalp de iluminat si se vor planta tei pe zonele destinate pentru oaspeti.
Casele se vor preda complet finalizate, cu finisaje alese de designer, curtile amenajate cu sistem de irigare automatizat, gazon , zona de parcare si terase. Suprafata construita este de 172mp, teren 530mp
Toate utilitatile vor fi functionale functionale si individuale pentru fiecare unitate in parte.
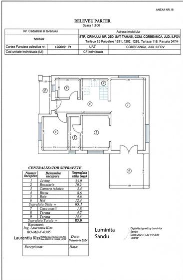
Compartimentare interioara:
-parter: living-dinning 26mp, bucatarie semiinchisa/inchisa 10.15p, cu camera tehnica de 3.5mp, birou 8.65mp, baie cu cabina de dus 4.8mp, depozitare sub scara si o terasa care poate fi acoperita la cerere in suprafata de 14mp
-etaj: dormitor matrimonial cu dressing si baie in suprafata de 22mp, doua dormitoare de 12.5p si o baie cu cada
Finisajele Interioare
1. Living si dinning
• Pardoseala va fi din parchet laminat de 10mm, Egger, clasa 33, folie speciala pentru incalzirea in pardoseala, plinta in culoare/alba.
• Peretii tencuiti si zugraviti cu vopsea lavabila alba.
• Tavanul din dala beton de 18cm si izolat cu rigips pe structura metalica gletuit si zugravit cu vopsea lavabila alba.
• Cablare tv/internet
2. Bucatarie
• Pardoseala va fi din parchet laminat de 10mm, Egger,clasa 33, folie speciala pentru incalzirea in pardoseala,, plinta in culoare/alba.
• Tavanul izolat cu rigips pe structura metalica, gletuit si zugravit cu vopsea lavabila alba.
• Alte dotari prevazute: priza si scurgere pentru masina de spalat vase, racorduri pentru chiuveta, aragaz/hota, cuptor, frigider/congelator.
3. Camera tehnica
• Pardoseala din placi ceramice.
• Peretii zugraviti cu vopsea lavabila alba.
• Tavanul izolat cu rigips pe structura metalica, gletuit si zugravit cu vopsea lavabila alba.
• Prize si scurgeri pentru masina de spalat rufe si uscator rufe.
4. Bai
• Pardoseala din gresie.
• Peretii placati cu faianta 2 pereti si jumatate la inaltimea de 2ml.
• Tavanul izolat cu rigips rezistent la umezeala pe structura metalica gletuit si zugravit cu vopsea lavabila alba.
• Baia de la parter si cea matrimoniala vor fi cu cabina de dus , iar cea de pe hol cu cada si baterie freestanding, mobilier, oglinzi, Wc-uri suspendate
• Prize pentru uscator de par, aparat de ras
5. Scara interioara
• Scara va fi placata cu un parchet special din LVT, clasa trafic 46, productie Suedia
6. Dormitoare
• Pardoseala va fi din parchet laminat de 10mm, Egger, clasa 33, folie speciala pentru incalzirea in pardoseala,, plinta in culoare/alba.
• Peretii tencuiti,gletuiti si zugraviti cu vopsea lavabila alba.
• Tavanul izolat cu rigips pe structura metalica, gletuit si zugravit cu vopsea lavabila alba.
7. Cablare TV/internet in toate camerele
8. Terasa si intrarea in casa
• Terasa laterala de 14 m2, neacoperita, din pavaj .
• Intrarea in casa va fi placata cu travertin/gresie de exterior.
9. Usi
• Porta Doors sau similar de culoare alba .
Construcția
• Este executata pe fundatii continue din beton armat, structura cu stâlpi, grinzi si planseu armat peste parter de 18 cm grosime.
• Zidaria nu este portanta si va fi executata din caramida de 30cm grosime porotherm.
• Casa va fi este acoperita din tabla tip tigla metalica BILKA model Balcanic Grande Mat Ral 8019 Maro Inchis 0.50mm sau model Romanic Mat Ral 7024 Gri Grafit 0.50mm, sub tabla folie anticondens si izolatie din strat de vata minerala de 20cm.
• Toate compartimentarile interioare vor din caramida, peretii tencuiti, gletuiti, sapele elicopterizate. Straturi finisare pereți: tencuiala cu liant Mulltibat, glet de încărcare Gletul meseriasului, glet de finisaj CT 127, vopsea lavabila.
Finisajele Exterioare
• Fatada executata cu tencuiala decorativa Ceresit de culoare alba si bej, caramiziu conform proiect, mici accente din piatra.
• Izolatia la exterior va fi realizata cu polistiren grafitat EPS80 de 10cm
• Scara de la intrare finisata cu placari din granit sau travertin.
• Tamplaria (geamuri si usi de balcon) este din PVC marca Veka Softline 82mm, geam tripan cu protectie solara, low-e exterior si gaz (argon) in interiorul tripanului, structura este: 4mmlow-e-14mmArgon-6mmFloat clar-14mmArgon-6mmPlanitherm 4S Evolution, deschidere osciloculisanta pe bucatarie.
• Glafurile interioare executate din marmura.
• Glafurile la exterior din table
• Usa de la intrarea principala metalica, produsa de MegaDoors
Instalatia de incalzire interioara
• Instalatia de incalzire interioara a locuintei realizata din PEX+PPR. Marca TECE.
• Casa cu incalzire in pardoseala pe intreaga suprafata, cu cu un termostat wifi de reglare a temperaturii si preechipare pentru senzori de reglare a temperaturii in fiecare camera.
• Coloanele realizate din PEX+PPR.
Instalatia interioara de apa rece si calda
• Instalatia interioara de apa rece din PEX+PPR.
• Traseele pentru instalatia interioara de apa rece alese astfel incât sa asigure lungimi minime de conducte si accesul in timpul exploatarii.
• Alimentarea cu apa calda se realizeaza prin conducta de distributie, prin centrala termica in condensatie de 24kw putere Viesman.
Instalatia electrica
• Executata din cupru pe copex. Prin locuri de lampa se intelege: prize, intrerupatoare, cablul tv, internet, telefon, senzori etc.
• In toate incaperile prevazute prize duble cu contact de protectie montate ingropat la 0,30m de la pardoseala finita.
• Prizele si intrerupatoarele, ramele marca Schneider.
• Casa prevazuta cu instalatie de impamântare.
Instalatia de gaze naturale
• Instalatia de gaze naturale este executata astfel incat sa asigure debitul de consum pentru casa.
• Instalatia este prevazuta cu senzor de gaze pentru centrala termica si aragaz.
Canalizarea si apa
• Apa din put in a doua panza freatica, 30ml adancime, teava Pehd de 40 mm, vas de expansiune de 80 l, pompa submersibilă cu debit de 3mc/h, baterie de filtre, cămin cu dimensiunile 2x1,5m și adâncime de 1,8 m
• Statie de epurare cu drenare fara automatizare de 2000l. Tubul de drenaj de 110mm, adancimea acestuia este data de plecarea din fosa si se va executa la cel putin 1,5m adancime fata de cota zero a solului. Partea interioara a liniei de drenaj va fi la cel putin 2ml deasupra panzei freatice. Lungimea drenajului va fi de 12ml. Tubul de drenaj se va aseza pe strat de nisip de 20cm, strat de piatra de 60cm, pamant maxim 60cm.
Curtea
• In jurul casei alei din pavaj pe nisip, cu bordura.
• Perimetral un gard din sipca metalica orizontala cu fundatie mica din beton. Poarta din acelasi model din sipca metalica orizontala, electricitate in asteptare pentru automatizarea portii. Automatizarea nu este inclusa in pret.
• In fata casei vor amenajate doua locuri de parcare cu pavaj.
• Curtea nivelata, amenajata cu gazon insamantat si sistem de irigatii.
• O sursa de apa cu robinet in curte
• Pentru sistemul de iluminare al curtii, cabluri pentru lumina pe gard.
Garantia si cartea tehnica
• Cartea tehnica se va preda odata cu documentele de proprietate.
• Se acorda pentru tot imobilul pentru lucrarile aparente timp de 2 ani de la data predarii pentru orice defectiune aparuta.
• Pentru restul materialelor, obiectelor, tamplarie, acoperis, instalatii termice, sanitare se acorda garantia oferita de producator.
• Toate materialele folosite la instalatia termica si sanitara, centrala termica, distribuitoare vor fi insotite de certificatele de garantie.
• Garantia pentru structura pe durata constructiei se acorda conform normelor din proiect si cartii tehnice.
Citește mai mult
Citește mai puțin
Grădină
Curte
Centrală proprie
Încălzire prin pardoseală
2 Parcări
Sediul central - Timișoara
Bulevardul Victor Babeș nr. 2, 300230, Timișoara, România
Tel: +40.374.40.44.98 / Fax: +40.256.401.179
Email: suport@imobiliare.ro
Luni - Vineri 08:00 - 20:00
Punct de lucru - București: Iride Business Park, Bld. Dimitrie
Pompeiu 9-9A, Clădirea B2B,
020335, Sector 2, București, România
CONTACT
Sediul central - Timișoara
Bulevardul Victor Babeș nr. 2, 300230, Timișoara, România
Tel: +40.374.40.44.98 / Fax: +40.256.401.179
Email: suport@imobiliare.ro
Luni - Vineri 08:00 - 20:00
Punct de lucru - București: Iride Business Park, Bld. Dimitrie
Pompeiu 9-9A, Clădirea B2B,
020335, Sector 2, București, România
Sună acum și cere detalii sau programează o vizionare.
Nu rata ocazia să afli mai multe!
Sună acum și cere detalii sau programează o vizionare.
Cere detalii prin email
*
*
*
*
Terenuri sport
Teren sportiv
aprox.
1632 m
Înainte să pleci...
Ești sigur că ai văzut și aceste proprietăți?
210.000 €
Județul Ilfov, Corbeanca
5 camere
212 mp
447 mp teren
285.000 €
Județul Ilfov, Corbeanca
4 camere
212 mp
447 mp teren
259.500 €
Județul Ilfov, Corbeanca
4 camere
126 mp
430 mp teren
285.000 €
Județul Ilfov, Corbeanca
5 camere
150 mp
627 mp teren
188.000 €
Județul Ilfov, Corbeanca
4 camere
135 mp
360 mp teren
205.000 € + TVA
Județul Ilfov, Corbeanca
5 camere
160 mp
550 mp teren
Creează alertă
Salvează căutarea ca să primești pe email ultimele anunțuri publicate
Case individuale cu 4+ camere de vânzare în Corbeanca, Județul Ilfov
Cere detalii prin email
*
*
*
*
Detaliile tale de contact vor fi partajate cu Rond Real Estate
Preț total1.229.339 RON (241.179 €)
Costuri cu achiziția11.109 RON
Preț de achiziție1.218.230 RON
Costuri cu achiziția11.109 RON
Comision agenție Întreabă agenţia
Onorariu notarial9.282 RON
Taxă înscriere OCPI1.827 RON
Preț de achiziție1.218.230 RON
Preț locuință1.218.230 RON
TVA 0%Inclus în prețul cerut
Cost total198.971 RON (39.035 €)
Avans (15%)182.735 RON
Cost achitat în prima lună3.000 RON
Costuri cu achiziția13.236 RON
Cost achitat în prima lună3.000 RON
Comision analiză dosar
400 RON - 900 RON
Taxă evaluare imobil(până la)
900 RON
Rata lunară (variabilă)5.427 RON
Asigurare anuală imobil1.218 RON
Arhivă electronică102 RON
Poliță PAD130 RON
Asigurare de viață/lună Costul este variabil. În funcție de banca aleasă, procentul variază între 0.0259% și 0.035% din soldul creditului.
Costuri cu achiziția13.236 RON
Comision agenție Întreabă agenţia
Onorariu notarial9.282 RON
Taxă întabulare OCPI1.827 RON
Autentificare contract credit2.127 RON
Preț de achiziție1.218.230 RON
Preț locuință1.218.230 RON
TVA 0%Inclus în prețul cerut
Preț de achiziție1.218.230 RON
Preț locuință1.218.230 RON
TVA 0%
Inclus în prețul cerut
Avans minim611.664 RON
Credit pe 30 de ani606.567 RON
Cost achitat în prima lună
Taxa evaluare imobil(până la)
900 RON
Rata lunară (variabilă)4.262 RON
Depozit colateral12.786 RON
Comision de garantare FNGCIMM102 RON
Asigurare anuală imobil1.218 RON
Poliță PAD130 RON
Tarif arhivă electronică102 RON
Costuri adiționale1.358 RON + taxe notariale
Asigurare viață și complexă (opțională)Costul este variabil. În funcție de banca aleasă, procentul variază între 0.0259% și 0.035% din soldul creditului
Onorariu notarialconform tarif notarial
Taxă întabulare OCPI1.358 RON
i
Toate valorile de mai sus sunt estimative și nu reprezintă în mod obligatoriu costurile exacte pe care le veți primi de la companiile/instituțiile prin care veți încheia tranzacția.