Dezvoltatorul PROPER PROPERTIES va propune:
CUBES - Vila 8
O vila cu personalitate autentica, finalizata in 2024, cu elemente arhitecturale unice.
O proprietate care desenează cadrul ideal pentru o familie care isi doreste siguranță, acces rapid la infrastrucutra dar si intimitate și liniste.
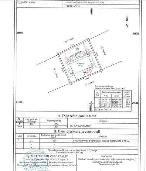
Dispunand de un teren aproape patrat, cu laturi de 23 de metri, proprietatea ofera un lot de 534 metri, din care suprafata construita desfasurata este de 278 metri.
Vila este individuala (nu este lipita de alta constructie) si se afla in ansamblul rezidential CUBES la intrare in Corbeanca dinspre Value Center (DN1). Constructia de tip P+1, a fost finalizata in 2024, cu o suprafata utila de: 168mp, amprenta la sol fiind de: 164mp.
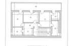
Proprietatea este compusa din 4 camere, 3 dormitoare, 3 bai, iar compartimentarea este de tipul:
- la parter regasim: living cu zona dinning si iesire pe terasa, bucatarie open space, debara (camera pentru vinuri, produse bucatarie), grup sanitar, vestibul, garaj pentru 2 masini si o camera tehnica generoasa; Suprafata utila parter 91 metri + garaj 38 metri + 53 metri.
- compozitia etajului: dormitor matrimonial cu dressing si baie, 2 dormitoare deservite de o alta baie. Eventual unul dintre dormitoare poate fi folosit ca birou pentru lucrul remote. S utila etaj 77 metri + balcon.
Incalzirea se realizeaza prin pardoseala si ventiloconvectoare.
Casa are structura din cadre de beton armat, caramida tip Porotherm, placare cu travertin interior exterior iar peretii exteriori placati cu caramida aparenta King Klinker bej.
Suplimentar sunt montate sisteme de incalzire solara a apei si este facut preseting-ul pentru montarea de panouri solare.
Strada pe care se afla imobilul este in al doilea plan fata de DN, beneficiind de liniste dar are acces facil catre zona comerciala de la intrarea in Corbeanca, supermarketuri, farmacii.
De la iesirea din complex pana in DN1 si A0 sunt de parcurs 200 respectiv 300 de metri, lucru care scuteste proprietarii de traficul din interiorul localitatii Corbeanca si faciliteaza accesul rapid catre Bucuresti.
Casa se afla in stadiul la cheie, Ready To Move, toate finisajele fiind finalizate inclusiv amenajarea peisagistica.
Ideală pentru un stil de viață indoor-outdoor, livingul avand suprafețe vitrate oversized, bucătărie interioară și exterioara, zona de dining & lounge outdoor, proprietatea este impresionanta prin design, calitatea constructiei si a finisajelor.
Panourile vitrate glisante, înălțimea impresionanta a tavanelor si armonizarea esteticii indoor cu cea outdoor crează o legătură organica vizuala, dar și funcțională, a interiorului cu exteriorul. Astfel, casa se inunda cu lumina naturala, iar spațiul de locuit creste, fluxurile sunt optimizate, se crează senzația de spațialitate și armonie.
Curtea incadrată de jardiniere terasate, continue din exterior spre interior, înconjoară casa pe toate laturile, iar împreună cu vegetația gândită în 4 layere, crează o trecere naturala de la casa spre afara. Astfel, se crează un spatiu uniform ce poate genera o varietate mare a formulelor de utilizare sau mobilare.
Nu in ultimul rand spatiile verzi generoase atat de la intrarea in ansamblu (1000 mp) cat si in interiorul ansambului (7.500 mp) completeaza starea de bine pe care o ofera aceasta dezvoltare imobiliara, al carui concept a avut ca element central bucuria de a trai intr-o casa frumoasa, calitatea, exclusivismul si accesibilitatea.
Va multumim!
Citește mai mult
Citește mai puțin
Mobilat Nemobilat Lux
Grădină
Curte
Aer condiționat
Centrală proprie
Încălzire prin pardoseală
2 Parcări
1 Garaj
Bine întreținut (Bună)
Telecomandă poartă acces auto
Telecomandă poartă garaj
Alte spații utile
Spațiu depozitare
Dressing
WC Serviciu
Facilități imobil
Interfon
Utilități
Curent
Curent trifazic
Apă
Canalizare
CATV
Internet
Fibră optică
Amenajare străzi
Asfaltate
Mijloace de transport în comun
Iluminat stradal
Servicii imobil
Administrare
Supraveghere video
Comision
0%
Vicii:
N/A
Vecinătăți:
Value Centre, Therme, Aeroport, Kaufland, Carrefour, Hornbach, A0
Alte detalii:
CUBES RESIDENCE este o dezvoltare imobiliara de tip Boutique Gated Community a companiei PROPER PROPERTIES.
8 vile individuale care beneficiaza de un parc privat de 8.000 de metri, de spatii largi pentru petrecerea timpului liber si de cele mai bune tehnologii si materiale de constructie.
Disponibilitate proprietate:
Imediat.
Discutiile de vanzare se poarta direct cu reprezentantii companiei dezvoltatoare.
Sediul central - Timișoara
Bulevardul Victor Babeș nr. 2, 300230, Timișoara, România
Tel: +40.374.40.44.98 / Fax: +40.256.401.179
Email: suport@imobiliare.ro
Luni - Vineri 08:00 - 20:00
Punct de lucru - București: Iride Business Park, Bld. Dimitrie
Pompeiu 9-9A, Clădirea B2B,
020335, Sector 2, București, România
CONTACT
Sediul central - Timișoara
Bulevardul Victor Babeș nr. 2, 300230, Timișoara, România
Tel: +40.374.40.44.98 / Fax: +40.256.401.179
Email: suport@imobiliare.ro
Luni - Vineri 08:00 - 20:00
Punct de lucru - București: Iride Business Park, Bld. Dimitrie
Pompeiu 9-9A, Clădirea B2B,
020335, Sector 2, București, România
Sună acum și cere detalii sau programează o vizionare.
Cere detalii prin email
*
*
*
*
Stații autobuz
Școli
Gradinițe
Supermarket
Parcări
Parcuri
Terenuri sport
Restaurant
Statie Maxi Taxi
aprox.
1316 m
Statie Maxi Taxi
aprox.
1404 m
Scoala nr. 1 - Balotesti
aprox.
1462 m
Gradinisa cu program prelungit nr.1 - Balotesti
aprox.
1484 m
Mega Image
aprox.
421 m
Mega Image
aprox.
1271 m
Supermarket
aprox.
1889 m
Parcare
aprox.
641 m
Parcare
aprox.
854 m
Parcare
aprox.
1437 m
Parcare
aprox.
1541 m
Parcare
aprox.
1560 m
Parcare
aprox.
1567 m
Padurea Petresti
aprox.
1035 m
Parc
aprox.
1338 m
Teren sportiv
aprox.
1598 m
McDonald's
aprox.
516 m
McDonald's (en)
aprox.
518 m
Shaormeria Baneasa
aprox.
680 m
Vatra Neamului
aprox.
1154 m
Vatra Neamului
aprox.
1154 m
Restaurant Vatra Neamului
aprox.
1154 m
Biker's Club
aprox.
1694 m
Tara Motilor
aprox.
1951 m
Înainte să pleci...
Ești sigur că ai văzut și aceste proprietăți?
640.000 € + TVA
Județul Ilfov, Corbeanca
5 camere
179 mp
588 mp teren
575.000 € + TVA
Județul Ilfov, Corbeanca
4 camere
165 mp
605 mp teren
859.000 €
Județul Ilfov, Corbeanca
6 camere
260 mp
635 mp teren
1.000.000 €
Județul Ilfov, Corbeanca
6 camere
343 mp
1.000 mp teren
643.000 € + TVA
Județul Ilfov, Corbeanca
5 camere
232 mp
500 mp teren
560.000 €
Județul Ilfov, Corbeanca
6 camere
340 mp
650 mp teren
Creează alertă
Salvează căutarea ca să primești pe email ultimele anunțuri publicate
Case individuale cu 4+ camere de vânzare în Corbeanca, Județul Ilfov
Cere detalii prin email
*
*
*
*
Detaliile tale de contact vor fi partajate cu Proper Properties
Preț total3.788.186 RON (743.641 €)
Costuri cu achiziția28.231 RON
Preț de achiziție3.759.955 RON
Costuri cu achiziția28.231 RON
Comision agenție Întreabă agenţia
Onorariu notarial22.591 RON
Taxă înscriere OCPI5.640 RON
Preț de achiziție3.759.955 RON
Preț locuință3.107.401 RON
TVA 21%652.554 RON
Cost total602.011 RON (118.178 €)
Avans (15%)563.993 RON
Cost achitat în prima lună5.542 RON
Costuri cu achiziția32.476 RON
Cost achitat în prima lună5.542 RON
Comision analiză dosar
400 RON - 900 RON
Taxă evaluare imobil(până la)
900 RON
Rata lunară (variabilă)16.749 RON
Asigurare anuală imobil3.760 RON
Arhivă electronică102 RON
Poliță PAD130 RON
Asigurare de viață/lună Costul este variabil. În funcție de banca aleasă, procentul variază între 0.0259% și 0.035% din soldul creditului.
Costuri cu achiziția32.476 RON
Comision agenție Întreabă agenţia
Onorariu notarial22.591 RON
Taxă întabulare OCPI5.640 RON
Autentificare contract credit4.245 RON
Preț de achiziție3.759.955 RON
Preț locuință3.107.401 RON
TVA 21%652.554 RON
Preț de achiziție3.759.955 RON
Preț locuință3.107.401 RON
TVA 21%
652.554 RON
Avans minim3.153.757 RON
Credit pe 30 de ani606.198 RON
Cost achitat în prima lună
Taxa evaluare imobil(până la)
900 RON
Rata lunară (variabilă)4.259 RON
Depozit colateral12.777 RON
Comision de garantare FNGCIMM313 RON
Asigurare anuală imobil3.760 RON
Poliță PAD130 RON
Tarif arhivă electronică102 RON
Costuri adiționale3.900 RON + taxe notariale
Asigurare viață și complexă (opțională)Costul este variabil. În funcție de banca aleasă, procentul variază între 0.0259% și 0.035% din soldul creditului
Onorariu notarialconform tarif notarial
Taxă întabulare OCPI3.900 RON
i
Toate valorile de mai sus sunt estimative și nu reprezintă în mod obligatoriu costurile exacte pe care le veți primi de la companiile/instituțiile prin care veți încheia tranzacția.