4

Casa individuala de lux langa complex Moara

390.000 €

Corbeanca, Județul Ilfov

Nr. cam.:
5
Sup. utilă:
150 mp
Sup. teren:
457 mp
Tip prop.:
Individuală
  • • Locație aproximativă

Descriere casă

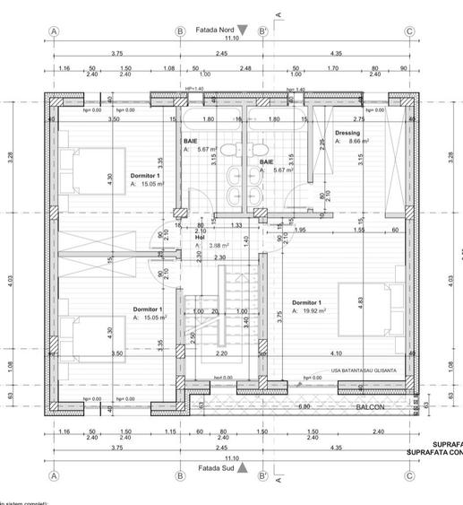
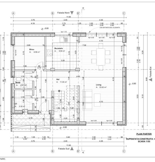
Casă cu grădină proprie de vânzare în Corbeanca – confort, intimitate și acces rapid la facilități! Descoperă o locuință spațioasă și luminoasă, situată într-un cartier intim cu acces securizat prin barieră, chiar vis-a-vis de Parcul Corbeanca și în apropierea viitorului centru educațional și cultural al zonei. Detalii proprietate: • Suprafață construită: 190 mp (150 mp utili) • Teren: 457 mp cu grădină amenajată (gazon, pomi fructiferi și ornamentali, aspersoare automate) • 2 locuri de parcare (1 acoperit) Compartimentare: • Parter: cameră tehnică, baie, birou, living cu dining și bucătărie open space (separabilă cu uși glisante), terasă de 26 mp cu acces direct din living • Etaj: 3 dormitoare (1 matrimonial cu baie proprie, dressing și balcon cu sticlă), 2 dormitoare cu acces la a doua baie Dotări premium: • Finisaje de calitate: Marazzi, Grohe Germania, Ideal Standard Belgia • Centrală termică, boiler propriu, puț pentru irigarea grădinii • Rulouri electrice exterioare la toate dormitoarele și living • Conectată la toate utilitățile publice Se vinde complet mobilată și utilată, conform fotografiilor, cu excepția câtorva obiecte de decor.
Citește mai mult Citește mai puțin
Mobilat Lux Curte Aer condiționat Încălzire prin pardoseală 2 Parcări

Detalii casă

ID anunț: X3RN010OC Copiat! 269896605 Copiat!
Actualizat în: 25 Februarie 2026
Suprafață construită: 75 mp
Suprafață desfășurată: 172 mp
Nr. bucătării: 1
Nr. băi: 3
Nr. terase: 1
Suprafață terase: 26 mp
Front stradal: 20 m
Învelitoare acoperiș: Tabla
An construcție: 2022 (Finalizată)
Structură rezistență: Beton
Regim înălțime: P+1E

Utilități

Destinație
Rezidențial
Pereți
Faianță Vopsea lavabilă
Podele
Parchet Gresie
Ușă intrare
Metal
Uși interior
Celulare
Izolații termice
Exterior
Ferestre cu geam termopan
PVC
Contorizare
Apometre Contor gaz
Bucătărie
Mobilată
Alte spații utile
Dressing WC Serviciu
Utilități
Curent Apă Canalizare Gaze
Internet
Fibră optică Wireless
Amenajare străzi
Asfaltate Mijloace de transport în comun Iluminat stradal

Certificat energetic:

Clasa energetică: A

Vecinătăți:

Locație excelentă – la câțiva pași de:
• Grădiniță, școală primară, casă de cultură (în funcțiune)
• Creșă, bazin de înot, liceu (în dezvoltare)
• Mega Image, Lidl, Moara Corbeanca, benzinărie Rompetrol, centru Cardiorec, stație STB

Puncte de interes

Școală
school
Scoala Nr 1
Școli aprox. 169 m
school
Scoala Nr. 1 Corbeanca
Școli aprox. 179 m
school
Scoala generala
Școli aprox. 186 m
Recreere
park
Pădurea Corbeanca
Parcuri aprox. 1363 m
park
Pădurea Tămași
Parcuri aprox. 1434 m
park
Padurea Petresti
Parcuri aprox. 1972 m

Detalii despre preț și costuri

Costuri cu achiziția

Fără credit
16.286 RON
Credit ipotecar
19.054 RON
Noua casă
2.127 RON+ taxe notariale

i

Costuri adiționale mai puțin știute la achiziție: taxe notariale, comisioane etc.

Proprietăți recomandate

Detalii de contact

REGATTA

Adina Stanescu Real Estate Broker Residential Department

4.97(42 review-uri)

REGATTA
PRO

Abonează-te la newsletter să fii primul care primește cele mai noi recomandări de proprietăți și sfaturi de la experți.

CONTACT

Creează alertă

Salvează căutarea ca să primești pe email ultimele anunțuri publicate

Case individuale cu 4+ camere de vânzare în Corbeanca, Județul Ilfov