Vanzare Casă Valea Seaca - Popesti -Corusu

221.000 €

Corușu, Județul Cluj

Nr. cam.:
4
Sup. utilă:
120 mp
Sup. teren:
500 mp
Tip prop.:
Individuală
  • • Locație aproximativă

Descriere casă

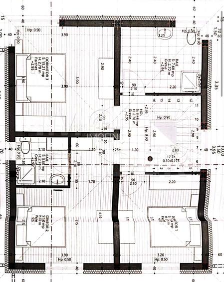
IMOFINDER va propune spre vanzare o casa noua situata in Corusu ,cu o suprafata utila de 120 mp si 525 mp o terasa exterioara in spatele casei de 20 mp,cu iesire din living. Casa dispune de toate utilitatile : Apa,Gaz,Curent,Canalizare racordata la rețeaua publică,Fibra optica. Accesul se face pe un drum de 8 m amenajat si are iluminat public. Compartimentare: PARTER : -Bucatarie -Living -Birou -Baie -Camera tehnica -Hol ETAJ : - 1 Dormitor matrimonial cu baie - 2 Dormitoare - 1 Baie - Hol Casa se preda la stadiul de semifinisat interior si finisat exterior. Casa este realizata din caramida si acoperis din tigla beton. Ext : Polistiren de 10 cm eps 80 Decorativa Ceresit Gemuri VEKA clas. A Pervaze geam Trotuare Jgheaburi si burlane executate dintr o bucata pe intreaga lungime. Garduri care vor inchide intreaga proprietate. Gazon. Incalzire in pardoseala Tencuieli mecanizate Baumit Instalatii sanitatre si electrice trase la pozitie 2 straturi de glet Baumit Termo isolate pod cu lâna ECO si tavane gipscarton. Usa pod( Pod generos ). Locatia se afla la 12 km de centrul Clujului ,intr o zona aerisita si foarte insorita .
Citește mai mult Citește mai puțin
Centrală proprie Încălzire prin pardoseală Zonă rurală

Detalii casă

ID anunț: X7KQ110CP Copiat! 256221547 Copiat!
Actualizat în: 22 Decembrie 2025
Nr. bucătării: 1
Nr. băi: 3
Front stradal: 20.0 m
Învelitoare acoperiș: Țiglă
An construcție: 2024 (Finalizată)
Structură rezistență: Cărămidă
Regim înălțime: P+1E

Utilități

Ușă intrare
PVC
Contorizare
Apometre Contor gaz
Utilități
Curent Apă Canalizare Gaze
Comision
standard

Disponibilitate proprietate:

Imediat

Detalii despre preț și costuri

Costuri cu achiziția

Fără credit
10.493 RON
Credit ipotecar
12.544 RON
Noua casă
1.267 RON+ taxe notariale

i

Costuri adiționale mai puțin știute la achiziție: taxe notariale, comisioane etc.

Proprietăți recomandate

Detalii de contact

IMOFINDER

Darius Radu Cramba General Manager

3.92(4 review-uri)

IMOFINDER
PRO

Abonează-te la newsletter să fii primul care primește cele mai noi recomandări de proprietăți și sfaturi de la experți.

CONTACT

Creează alertă

Salvează căutarea ca să primești pe email ultimele anunțuri publicate

Case individuale cu 4+ camere de vânzare în Corușu, Județul Cluj