2

Casa Individuala | 82 Mp | Preda la Cheie | Cristian

175.000 €

Cristian, Județul Sibiu

Nr. cam.:
3
Sup. utilă:
82 mp
Sup. teren:
300 mp
Tip prop.:
Individuală
  • • Locație aproximativă
  • • Vizionare prin apel video

Descriere casă

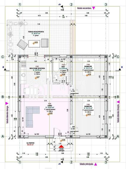
MAAC Imobiliare vă propune spre vânzare o casă de 82 mp utili, aflată în faza de construcție, concepută pentru a deveni un cămin modern și confortabil, potrivit pentru o familie sau pentru cei care își doresc o locuință eficient compartimentată într-o zonă liniștită. Proiectul îmbină designul contemporan cu funcționalitatea, oferind posibilitatea personalizării anumitor detalii înainte de finalizare. Locuința are o suprafață utilă de 82 mp și este configurată pentru a asigura un echilibru optim între zona de zi și zona de noapte, cu spații bine proporționate și luminoase. Compartimentare: -2 dormitoare spațioase -Living generos, conceput ca spațiu central al casei -Bucătărie modernă, cu posibilitate de personalizare -Baie spațioasă, prevăzută cu obiecte sanitare de calitate Casa este situată într-o zonă liniștită, potrivită pentru viață de familie sau pentru utilizare ca locuință de vacanță. Fiind în construcție, proprietatea oferă oportunitatea de a influența anumite aspecte de design și finisaj, astfel încât viitorul proprietar să își creeze un spațiu adaptat propriilor preferințe. Această proprietate reprezintă o investiție atractivă pentru cei care caută o casă nouă, cu design modern și posibilitate de personalizare, realizată conform standardelor actuale de calitate. Pentru mai multe detalii precizați telefonic că ați văzut anunțul cu CP2104365.
Citește mai mult Citește mai puțin
Nemobilat Curte Aer condiționat Centrală proprie Încălzire prin pardoseală

Detalii casă

ID anunț: XCSI110SR Copiat! 239853935 Copiat!
Actualizat în: 25 Martie 2026
Suprafață desfășurată: 115 mp
Nr. bucătării: 1
Nr. băi: 1
Nr. terase: 2
Suprafață terase: 27 mp
Învelitoare acoperiș: Tabla
An construcție: 2024 (Finalizată)

Utilități

Podele
Gresie Parchet
Izolații termice
Exterior
Contorizare
Apometre Contor gaz
Facilități imobil
Acoperiș
Utilități
Curent Apă Canalizare CATV Gaze Telefon
Internet
Cablu
Amenajare străzi
Iluminat stradal Mijloace de transport în comun Asfaltate
Comision
standard

Disponibilitate proprietate:

Imediat

Puncte de interes

Mijloace transport
bus-station
Cristian Sibiu
Stații autobuz aprox. 521 m

Detalii despre preț și costuri

Costuri cu achiziția

Fără credit
Credit ipotecar
Noua casă

i

Costuri adiționale mai puțin știute la achiziție: taxe notariale, comisioane etc.

Insight premium disponibil după login

Proprietăți recomandate

Detalii de contact

MAAC Imobiliare

Darius Mihu Consultant Imobiliar

MAAC Imobiliare
PRO

Abonează-te la newsletter să fii primul care primește cele mai noi recomandări de proprietăți și sfaturi de la experți.

CONTACT

Creează alertă

Salvează căutarea ca să primești pe email ultimele anunțuri publicate

Case individuale cu 3 camere de vânzare în Cristian, Județul Sibiu