2

Casa tip duplex , curte libera 340 mp, Cristian

229.000 €

Cristian, Județul Sibiu

Nr. cam.:
3
Sup. utilă:
103 mp
Sup. teren:
479 mp
Tip prop.:
Individuală
  • • Comision 0%
  • • Locație aproximativă

Descriere casă

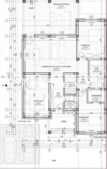
Pret promotional ‼️ CASE INTABULATE ‼️ Oferim spre vanzare un proiect rezidential restrans, intr-o zona linistita si in continua dezvoltare, in Cristian, format din doar doua case moderne, construite perete in perete, cu perete dublu pentru intimitate, confort si izolare fonica superioara. Fiecare locuinta are o suprafata utila de 103 mp, un regim de inaltime Parter + Pod (podul fiind izolat cu vata bazaltica), o curte libera de aproximativ 340 mp si 2 locuri de parcare in curte . Casele se vor preda la cheie in exterior si la alb in interior, cu posibilitatea aducerii la cheie contra cost. Ce le face cu adevarat speciale este independenta energetica: - Panouri solare pe casa + baterii de stocare - Generator pentru situatii de rezerva - Centrala termica pe gaz - Incalzire in pardoseala Constructie de calitate: - Izolatie cu polistiren de 15 cm - Geamuri tripan cu profil Veka - Pod izolat cu vata bazaltica si ignifugat - Tavan izolat cu spuma poliuretanica cu celula inchisa de 7 cm - Perete dublu intre case – confort si intimitate Compartimentare practica si moderna: - Living generos cu loc de luat masa si iesire pe terasa ( o terasa de 30 mp ) - Bucatarie separata - 2 dormitoare (unul cu dressing) - Baie principala + baie de serviciu - Debara - Hol Un proiect ideal pentru familii care cauta o locuinta eficienta energetic, bine compartimentata, cu spatiu verde si intimitate – dar cu acces rapid spre oras. * Termen de predare: Mai 2026 Pret: 229.000 euro TVA inclus Contacteaza-ne pentru detalii.
Citește mai mult Citește mai puțin
Curte Centrală proprie Încălzire prin pardoseală 2 Parcări 2 Parcări / Garaje / Parcări subterane

Detalii casă

ID anunț: X7D5110LN Copiat! 264983250 Copiat!
Actualizat în: 21 Aprilie 2026
Suprafață construită: 140 mp
Nr. bucătării: 1
Nr. băi: 2
Nr. terase: 1
An construcție: 2025 (Finalizată)
Structură rezistență: Cărămidă
Regim înălțime: P

Utilități

Pereți
Vopsea lavabilă
Izolații termice
Exterior
Ferestre cu geam termopan
PVC
Utilități
Curent Canalizare Gaze
Alte spații utile
Spațiu depozitare Dressing WC Serviciu

Certificat energetic:

Clasa energetică: A

Disponibilitate proprietate:

imediat

Puncte de interes

Mijloace transport
bus-station
Cristian Sibiu
Stații autobuz aprox. 471 m

Detalii despre preț și costuri

Costuri cu achiziția

Fără credit
Credit ipotecar
Noua casă

i

Costuri adiționale mai puțin știute la achiziție: taxe notariale, comisioane etc.

Insight premium disponibil după login

Proprietăți recomandate

Detalii de contact

Oglan Imobiliare

Delia Ciorogariu consilier imobiliar

Oglan Imobiliare
PRO

Abonează-te la newsletter să fii primul care primește cele mai noi recomandări de proprietăți și sfaturi de la experți.

CONTACT

Creează alertă

Salvează căutarea ca să primești pe email ultimele anunțuri publicate

Case individuale cu 3 camere de vânzare în Cristian, Județul Sibiu