Casa individuala INTABULATA pe un singur nivel - Cristian Sibiu.

175.000 €

Cristian, Județul Sibiu

Nr. cam.:
3
Sup. utilă:
83 mp
Sup. teren:
300 mp
Tip prop.:
Individuală
  • • Locație aproximativă

Descriere casă

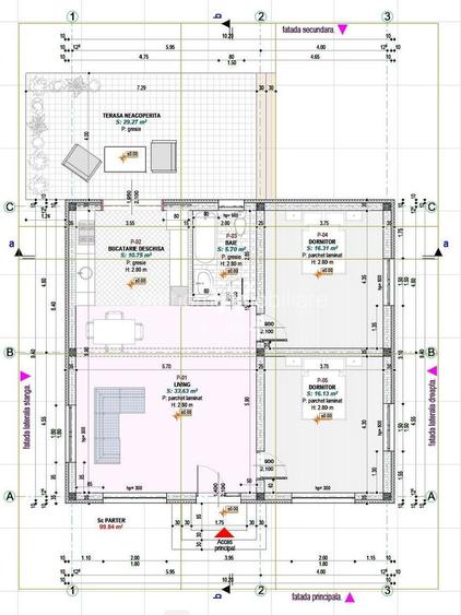
Casa individuala pe un singur nivel! Desfasurata pe un singur nivel, dispune de pod inalt pe toata suprafata casei, se poate mansarda. Suprafata utila - 83 mp plus terasa 30 mp. Compartimentare: 2 dormitoare de 16 mp, living spatios cu bucatarie separata 44 mp, baie cu geam 5 mp. Terenul total este de 295 mp din care curte libere 150 mp distribuiti in fata, lateral si spate. Casa se preda LA CHEIE exterior - gard inalt zidit, poarta cu automatizare, curte pavata, soclu, zone verde, izolata termic, tencuiala decorativa. Interiorul la alb: tavane izolate, gletuit, zugrăvit, încălzire pardoseala, sapa, centrala gaz, baia finalizată, video interfon. Casa este intabulata si dispune de toate utilitatile. Se poate achizitiona si cu credit ipotecar. Pret: 175.000 euro - Programeaza o vizionare!
Citește mai mult Citește mai puțin
Nemobilat Curte Centrală proprie 2 Parcări

Detalii casă

ID anunț: XB50112DK Copiat! 275410336 Copiat!
Actualizat în: 06 Aprilie 2026
Suprafață desfășurată: 99 mp
Nr. bucătării: 1
Nr. băi: 1
Nr. terase: 1
Suprafață terase: 30 mp
Învelitoare acoperiș: Țiglă
An construcție: 2024 (Finalizată)
Structură rezistență: Cărămidă
Regim înălțime: P+M

Utilități

Pereți
Vopsea lavabilă
Ușă intrare
PVC
Uși interior
Lemn
Izolații termice
Exterior
Contorizare
Apometre Contor căldură Contor gaz
Utilități
Curent Apă Canalizare CATV Gaze Telefon
Internet
Cablu
Amenajare străzi
Iluminat stradal Mijloace de transport în comun Asfaltate
Comision
standard

Disponibilitate proprietate:

Imediat

Puncte de interes

Mijloace transport
bus-station
Cristian Sibiu
Stații autobuz aprox. 856 m

Detalii despre preț și costuri

Costuri cu achiziția

Fără credit
Credit ipotecar
Noua casă

i

Costuri adiționale mai puțin știute la achiziție: taxe notariale, comisioane etc.

Insight premium disponibil după login

Proprietăți similare

Casă individuală cu 4 camere în Cristian
190.000 € + TVA
Județul Sibiu, Cristian
4 camere
111 mp
430 mp teren
Casă individuală cu 4 camere în Cristian
177.000 €
Județul Sibiu, Cristian
4 camere
120 mp
140 mp teren
Casă individuală cu 4 camere în Cristian
175.000 €
Județul Sibiu, Cristian
4 camere
100 mp
863 mp teren

Detalii de contact

Welhome Imobiliare

Claudiu Drasovean Broker Imobiliar

Welhome Imobiliare
PRO

Abonează-te la newsletter să fii primul care primește cele mai noi recomandări de proprietăți și sfaturi de la experți.

CONTACT

Creează alertă

Salvează căutarea ca să primești pe email ultimele anunțuri publicate

Case individuale cu 3 camere de vânzare în Cristian, Județul Sibiu