25

Casa individuala 4 camere 120 mp/utili, teren 430 mp, Cristian/Brasov

175.000 €

Cristian, Județul Brașov

Nr. cam.:
4
Sup. utilă:
125 mp
Sup. teren:
430 mp
Tip prop.:
Individuală
  • • Comision 0%
  • • Locație aproximativă

Descriere casă

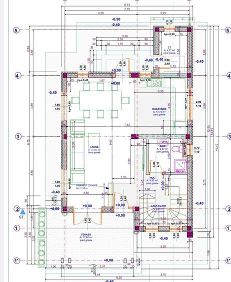
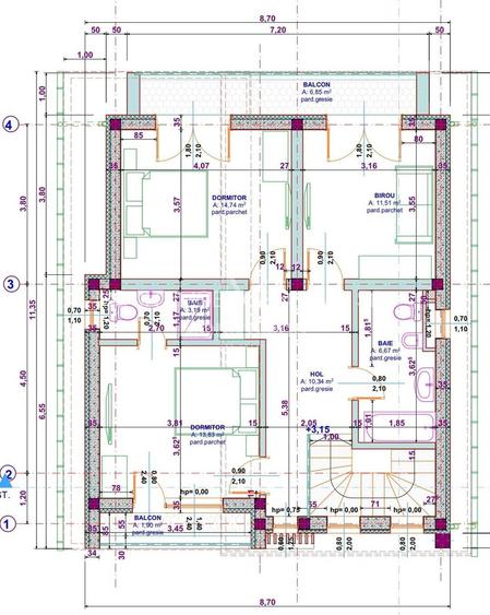
Pretul afisat este pentru stadiu La Rosu ( cu geamuri si utilitati racordate). Proprietar persoana fizica! Te invit sa descoperi aceasta casa dosebita in pitoreasca localitate Cristian cu acces facil catre toate zonele de interes din Brasov, totodata oferind liniste si intimitate viitorilor proprietari. o zona accesibila cu multe perspective, ideal pentru familii cu copii sau cupluri de orice varsta,. Locuinta are o suparafata de 125 mp/utili, formata din 4 camere, dispusa pe parter si etaj, aplasata pe un teren de 430 mp, iar compartimentarea este urmatoarea: - Parter - cu o suprafata utila de 65 mp si Terasa de 18 mp: *camera de zi cu zona de luat masa 31.5 mp, *bucatarie-11.7 mp *grup sanitar-4.4 mp, *hol+scara-9.8 *camera tehnica-4.4 mp. - Etaj - cu o suprafata utila de 60 mp si 2 balcoane cu suprafata comuna de 9 mp. *Hol- 10.3 mp, *dormitor 1-13.8 mp cu baie 3.2 mp, *dormitor 2-14.8 mp, *birou/dormitor-11,5 mp. *baie-6.7 mp Se accepta Credit Ipotecar Plata in 3 transe: - 30% la semnarea contractului - 30% la stadiu de constructie la Rosu - 40% la finalizarea constructiei. Imobilul reprezinta o constructie din beton si caramida T30, cu acoperis de Tigla , cu termoizolatie cu polistiren de 10 cm la exterior, perenti tencuiti la interior, vata minerala de 10 cm la tavane si sub acoperis. Casa pot fi personalizata la cerere si va fi predata cu urmatoarele dotari: incalzire in pardoseala cu solutii moderne de incalzire, ferestre de tip tripan 7 camere, bai mobilate si utilate, parchet, gresie, faianta,, apa, canalizare, termoizolație exterioara din polistiren grafitatat care îi conferă clasa energetica A++ pt un consum energetic minim. Aici veti descopeiri toate avantajele unei locuite sigure si elegante, datorita pasiunii, experientei si calitatea materialelor de constructie folosite de catre Constuctor. Materialele și soluțiile utilizate asigură eficiență energetică de top, contribuind la un trai economic și ecologic. Ideală pentru cei care apreciază confortul și sustenabilitatea! Pentru mai multe detalii astept cu drag un telefon de la Dumneavoastra!
Citește mai mult Citește mai puțin
Grădină Curte Centrală proprie Încălzire prin pardoseală 2 Parcări Zonă de deal / munte Zonă rurală

Detalii casă

ID anunț: XESA1100A Copiat! 260990034 Copiat!
Actualizat în: 03 Martie 2026
Suprafață construită: 90 mp
Nr. bucătării: 1
Nr. băi: 3
Nr. balcoane / Terase / Logii: 2
Nr. terase: 1
Suprafață terase: 18 mp
An construcție: 2025

Utilități

Ușă intrare
PVC
Izolații termice
Exterior
Ferestre cu geam termopan
PVC
Contorizare
Apometre Contor gaz
Utilități
Curent Apă Canalizare CATV Gaze Telefon
Internet
Cablu
Amenajare străzi
Iluminat stradal Mijloace de transport în comun Asfaltate
Comision
0%

Vecinătăți:

Farmacie, magazin La Doi Pasi, Centru Medical, Statie RatBv

Disponibilitate proprietate:

Imediat

Puncte de interes

Mijloace transport
bus-station
Cristian
Stații autobuz aprox. 1243 m
Școală
school
Scoala Generala
Școli aprox. 651 m
kindergarten
Gradinita
Gradinițe aprox. 792 m
Recreere
sports-ground
Teren sportiv
Terenuri sport aprox. 407 m
park
Parc
Parcuri aprox. 721 m
park
Parc
Parcuri aprox. 773 m

Detalii despre preț și costuri

Costuri cu achiziția

Fără credit
8.908 RON
Credit ipotecar
10.763 RON
Noua casă
1.031 RON+ taxe notariale

i

Costuri adiționale mai puțin știute la achiziție: taxe notariale, comisioane etc.

Proprietăți recomandate

Detalii de contact

Abonează-te la newsletter să fii primul care primește cele mai noi recomandări de proprietăți și sfaturi de la experți.

CONTACT

Creează alertă

Salvează căutarea ca să primești pe email ultimele anunțuri publicate

Case individuale cu 4+ camere de vânzare în Cristian, Județul Brașov