Agentie imobiliara va propune spre vanzare casa individuala, constructie noua si moderna, situata in loc. Cristian, la mai putin de un km de zona centrala si primaria comunala a localitatii si cu acces simplu, comod si rapid catre orice directie, inclusiv zona centrala si istorica a orasului Sibiu, drumuri nationale si autostrada.
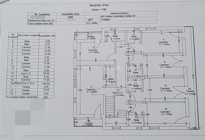
Imobilul este constructie din anul 2016, are suprafata utila totala de 333 mp utili, este structurat, parter si etaj, are curte individuala si este compartimentat astfel:
PARTERUL :
- holul de acces cu zona de receptie;
- un living generoas si luminos ;
- un oficiu;
- bucataria indiviuala si spatioasa cu camara;
- un grup sanitar cu geam aerisire;
- casa scarii la interior;
- camera tehnica cu acces din interior si exterior ;
- terasa exterioara de 40 mp.
ETAJUL :
- holul de acces permite accesul individual in fiecare incapere;
- sase dormitoare, fiecare avind baie proprie si acces la balcon;
- sase bai, fiecare avind cabina dus;
- trei balcoane ;
- casa scarii la interior;
PODUL:
- accesul se face din interior printr-o scara modulara de acces, cu ușurință în utilizare, de încredere și siguranță în expoatare.
- poate fi utilizat pentru depozitare;
TERENUL:
- suprafata totala este de 1008 mp, deschidere la drumul asflatat de 30 ml;
- permite parcarea mai multor autoturisme;
- este amenajat cu gard, pavaj de calitate superioara, gazon, anexa pentru depozitare, etc.;
AVANTAJE SI BENEFICII:
- zona doar de case cu regim redus de inaltime;
- curte generoasa cu minim sapte locuri parcare;
- caramida poroterm 38cm, tencuire interior exterior, Izolatie exterioara de 10 cm, pereti interiori gletuiti
- incalzire electrica pardoseala living 10KW pe 4 zone si incalzire centrala pe lemne cu gazeificare 60KW, inclusiv panouri apa calda permanent presurizate
- curent trifazic aproximativ 35 KW
- tamplarie usi geamuri lemn stratificat
- fantana
- pod cu placa de beton de 15 cm mansardabil inaltime 6metri
- mobilata si utilata complet, izolata la exterior, iar materialele folosite sunt de calitate optima si au determinat finisaje deosebite ;
- curent trifazic, panouri solare pentru apa calda, incalzire cu centrala termica pe lemne, inclusiv incalzire electrica, in pardoseala, in camera de zi de la parter;
- filigorie, magazie lemne, alte anexe;
- confortul sporit al acestei constructii moderne determina o destinatie, fie in scop rezidential ca locuinta familiala, fie ca spatiu pentru diverse afaceri, inclusiv in domeniul inchirierii in regim clasic, pensiune sau de tip hotelier, spatiu de birouri, clinica medicala, azil de batrani, banca comerciala, gradinita, sediu de firma etc.;
Imobilul se vinde la pretul de 380.000 euro negociabil, inclusiv prin credit bancar si se poate preda imediat.
Comision 0 cumparator !
La cerere, punem la dispozitie fotografii suplimentare, planuri, relevee, tur video al imobilului, inclusiv istoric constructie !
Citește mai mult
Citește mai puțin
Mobilat
Centrală proprie
Încălzire prin pardoseală
10 Parcări
Sediul central - Timișoara
Bulevardul Victor Babeș nr. 2, 300230, Timișoara, România
Tel: +40.374.40.44.98 / Fax: +40.256.401.179
Email: suport@imobiliare.ro
Luni - Vineri 08:00 - 20:00
Punct de lucru - București: Iride Business Park, Bld. Dimitrie
Pompeiu 9-9A, Clădirea B2B,
020335, Sector 2, București, România
CONTACT
Sediul central - Timișoara
Bulevardul Victor Babeș nr. 2, 300230, Timișoara, România
Tel: +40.374.40.44.98 / Fax: +40.256.401.179
Email: suport@imobiliare.ro
Luni - Vineri 08:00 - 20:00
Punct de lucru - București: Iride Business Park, Bld. Dimitrie
Pompeiu 9-9A, Clădirea B2B,
020335, Sector 2, București, România
Sună acum și cere detalii sau programează o vizionare.
Cere detalii prin email
*
*
*
*
Stații autobuz
Cristian Sibiu
aprox.
185 m
Înainte să pleci...
Ești sigur că ai văzut și aceste proprietăți?
390.000 €
Județul Sibiu, Cristian
8 camere
300 mp
1.250 mp teren
350.000 €
Sibiu, Turnișor
4 camere
120 mp
350 mp teren
369.000 €
Sibiu, Terezian
8 camere
263 mp
952 mp teren
Creează alertă
Salvează căutarea ca să primești pe email ultimele anunțuri publicate
Case individuale cu 4+ camere de vânzare în Cristian, Județul Sibiu
Cere detalii prin email
*
*
*
*
Detaliile tale de contact vor fi partajate cu Imo Visayan Srl
Preț total1.953.499 RON (383.129 €)
Costuri cu achiziția15.955 RON
Preț de achiziție1.937.544 RON
Costuri cu achiziția15.955 RON
Comision agenție Întreabă agenţia
Onorariu notarial13.049 RON
Taxă înscriere OCPI2.906 RON
Preț de achiziție1.937.544 RON
Preț locuință1.937.544 RON
TVA 0%Inclus în prețul cerut
Cost total313.034 RON (61.393 €)
Avans (15%)290.632 RON
Cost achitat în prima lună3.720 RON
Costuri cu achiziția18.682 RON
Cost achitat în prima lună3.720 RON
Comision analiză dosar
400 RON - 900 RON
Taxă evaluare imobil(până la)
900 RON
Rata lunară (variabilă)8.631 RON
Asigurare anuală imobil1.938 RON
Arhivă electronică102 RON
Poliță PAD130 RON
Asigurare de viață/lună Costul este variabil. În funcție de banca aleasă, procentul variază între 0.0259% și 0.035% din soldul creditului.
Costuri cu achiziția18.682 RON
Comision agenție Întreabă agenţia
Onorariu notarial13.049 RON
Taxă întabulare OCPI2.906 RON
Autentificare contract credit2.727 RON
Preț de achiziție1.937.544 RON
Preț locuință1.937.544 RON
TVA 0%Inclus în prețul cerut
Preț de achiziție1.937.544 RON
Preț locuință1.937.544 RON
TVA 0%
Inclus în prețul cerut
Avans minim1.330.787 RON
Credit pe 30 de ani606.757 RON
Cost achitat în prima lună
Taxa evaluare imobil(până la)
900 RON
Rata lunară (variabilă)4.263 RON
Depozit colateral12.789 RON
Comision de garantare FNGCIMM161 RON
Asigurare anuală imobil1.938 RON
Poliță PAD130 RON
Tarif arhivă electronică102 RON
Costuri adiționale2.078 RON + taxe notariale
Asigurare viață și complexă (opțională)Costul este variabil. În funcție de banca aleasă, procentul variază între 0.0259% și 0.035% din soldul creditului
Onorariu notarialconform tarif notarial
Taxă întabulare OCPI2.078 RON
i
Toate valorile de mai sus sunt estimative și nu reprezintă în mod obligatoriu costurile exacte pe care le veți primi de la companiile/instituțiile prin care veți încheia tranzacția.