1

Casa noua | teren 713 mp | Curtea de Arges (Noaptes) – Baiculesti

135.000 €

Curtea de Argeș, Județul Argeș

Nr. cam.:
4
Sup. utilă:
130 mp
Sup. teren:
713 mp
Tip prop.:
Individuală
  • • Comision 0%
  • • Exclusivitate
  • • Locație exactă

Descriere casă

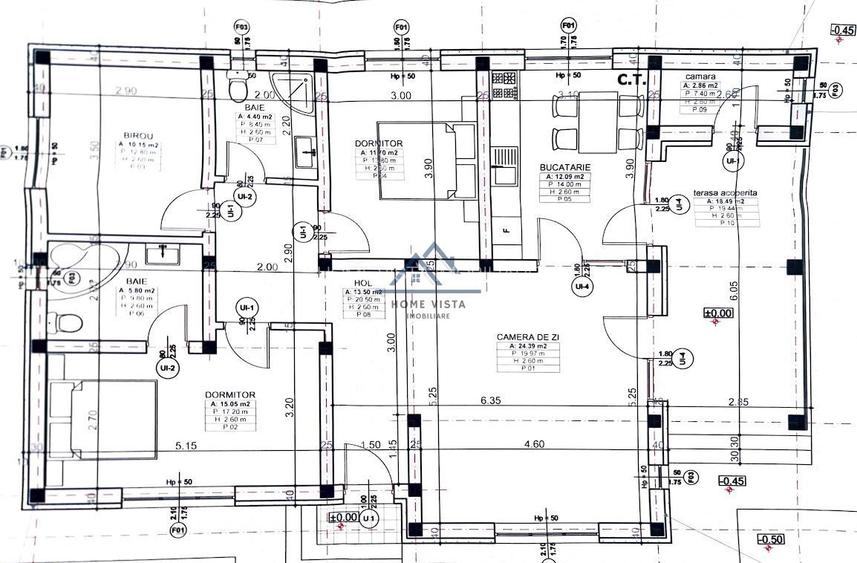
Comision 0% - pentru cumparator! Home Vista Imobiliare va propune spre vanzare o casa individuala noua, situata in zona Noaptes, intr-un cadru linistit, cu acces facil catre Curtea de Arges. Imobilul este in curs de finalizare si face parte dintr-un proiect rezidential cu drum de acces privat. Imobilul se vinde la cheie, fiind in stadiu de amenajari interior/exterior. Finisajele sunt in curs de realizare, ceea ce permite personalizarea acestora in functie de preferintele cumparatorului, in limita stadiului de executie. Detalii proprietate Suprafata utila: apx 130 mp (include terasa acoperita) Suprafata construita / amprenta la sol: 145 mp Suprafata teren: 713 mp (366 mp intravilan si 347 extravilan) Compartimentare: living, bucatarie, 3 dormitoare, 2 bai, terasa, camera tehnica Dotari si finisaje: Incalzire in pardoseala Gresie model herringbone Ceramica de calitate superioara Tamplarie PVC tripan gri antracit Obiecte sanitare montate Prize si intrerupatoare montate Curte amenajata Drum de acces amenajat Gard perimetral cu fundatie din beton si panouri metalice Finisajele interioare si exterioare pot fi personalizate, in functie de preferintele cumparatorului. Stadiu si predare Imobil in curs de finalizare Predare: iulie 2026 Modalitati de achizitie Pentru detalii si vizionare: Home Vista Imobiliare Curtea de Arges
Citește mai mult Citește mai puțin
Centrală proprie Încălzire prin pardoseală Zonă de deal / munte

Detalii casă

ID anunț: XG1G11005 Copiat! 274325687 Copiat!
Actualizat în: 12 Februarie 2026
Suprafață desfășurată: 145 mp
Nr. bucătării: 1
Nr. băi: 2
Nr. terase: 1
An construcție: 2026 (În construcție)
Structură rezistență: Cărămidă

Utilități

Izolații termice
Exterior
Utilități
Curent Apă Canalizare CATV Fosa septică Gaze Telefon
Internet
Cablu
Amenajare străzi
Iluminat stradal Mijloace de transport în comun Asfaltate
Comision
0%

Disponibilitate proprietate:

Imediat

Detalii despre preț și costuri

Costuri cu achiziția

Fără credit
7.536 RON
Credit ipotecar
9.222 RON
Noua casă
828 RON+ taxe notariale

i

Costuri adiționale mai puțin știute la achiziție: taxe notariale, comisioane etc.

Proprietăți recomandate

Detalii de contact

HOME VISTA IMOBILIARE

Dumitrache Vladut Daniel Manager

HOME VISTA IMOBILIARE

Abonează-te la newsletter să fii primul care primește cele mai noi recomandări de proprietăți și sfaturi de la experți.

CONTACT

Creează alertă

Salvează căutarea ca să primești pe email ultimele anunțuri publicate

Case individuale cu 4+ camere de vânzare în Curtea de Argeș, Județul Argeș