Casa individuala cu 5 camere, 163mp utili+pod 45mp, teren 498mp, Daia

350.000 €

Daia, Județul Sibiu

Nr. cam.:
5
Sup. utilă:
163,6 mp
Sup. teren:
498 mp
Tip prop.:
Individuală
  • • Locație aproximativă

Descriere casă

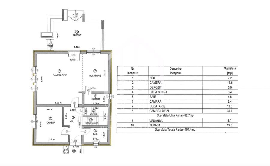
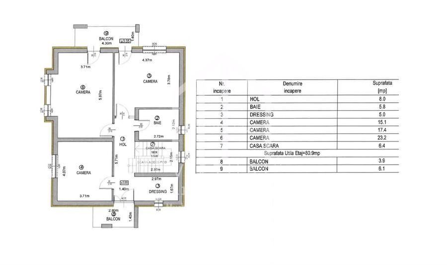
Casa individuala cu 5 camere, 380mp curte libera, incalzire in pardoseala, terasa, carpot, clasa energetica A Avantaje: -intimitate maxima -imobil intabulat -cea mai buna clasa energetica -incalzire in pardoseala la parter-etaj-pod -casa izolata termic cu polistiren de 10cm -pompa de caldura montata -carpot -geamuri cu 3 foi de sticla -sistem de irigare cu control de pe telefon -pod in suprafata de 40mp locuibilu si 45mp pentru depozitare -scara interioara din beton pana in pod -curtea amenajata (pavaj, rulouri gazon) -transport in comuna pana in Sibiu Compartimetare: Parter: -hol de acces -dormitor -baie -spatiu de depozitare -living cu bucatarie open - space -camera tehnica -terasa Etaj: -hol -dressing -3 dormitoare -baie -2 balcoane Pod: -camera ope - space 40mp -spatiu de depozitare 45mp Locatia: Sibiu - Localitatea Daia Noua Iti doresti mai mult decat o simpla locuinta? Noi suntem aici pentru a-ți oferi cele mai bune soluții. Oferim servicii de DESIGN SI AMENAJARI INTERIOARE, PROPERTY MANAGEMENT, REGIM HOTELIER, HOME STAGING, VIRTUAL INVESTMENT, SERVICII DE CURATENIE.
Citește mai mult Citește mai puțin
Curte Centrală proprie Încălzire prin pardoseală 3 Parcări 1 Garaj Zonă rurală

Detalii casă

ID anunț: XDQ4110IH Copiat! 275289210 Copiat!
Actualizat în: 08 Mai 2026
Tip tranzacție: De vânzare prin agent
Nr. bucătării: 1
Nr. băi: 2
Nr. balcoane / Terase / Logii: 2
Suprafață terase: 20 mp
Învelitoare acoperiș: Țiglă
An construcție: 2024
Regim înălțime: P+1E
Modalitate de plată: Cash sau Credit

Utilități

Izolații termice
Exterior
Utilități
Curent Apă Canalizare CATV Gaze Telefon
Internet
Cablu
Amenajare străzi
Iluminat stradal Mijloace de transport în comun Asfaltate
Comision
standard

Disponibilitate proprietate:

Imediat

Detalii despre preț și costuri

Costuri cu achiziția

Fără credit
Credit ipotecar
Noua casă

i

Costuri adiționale mai puțin știute la achiziție: taxe notariale, comisioane etc.

Acces la informații premium după autentificare
Login Gratuit

Proprietăți similare

Casă individuală cu 4 camere în Cisnădie
317.000 €
Județul Sibiu, Cisnădie
4 camere
120 mp
596 mp teren
Casă individuală cu 4 camere în Trei Stejari
385.000 €
Sibiu, Trei Stejari
4 camere
96 mp
358 mp teren
Casă individuală cu 5 camere în Șelimbăr
379.000 €
Județul Sibiu, Șelimbăr
5 camere
156 mp
430 mp teren

Detalii de contact

Virtual Imobiliare

Petru Caburgan Consultant Imobiliar

Virtual Imobiliare

Abonează-te la newsletter să fii primul care primește cele mai noi recomandări de proprietăți și sfaturi de la experți.

CONTACT

Creează alertă

Salvează căutarea ca să primești pe email ultimele anunțuri publicate

Case individuale cu 4+ camere de vânzare în Daia, Județul Sibiu