1

Casă individuala premium de vânzare cu view deosebit în Dezmir 214mp și t. 458mp

365.000 €

Dezmir, Județul Cluj

Nr. cam.:
4
Sup. utilă:
214 mp
Sup. teren:
458 mp
Tip prop.:
Casă individuală
  • • Comision 0%
  • • Locație aproximativă

Descriere casă

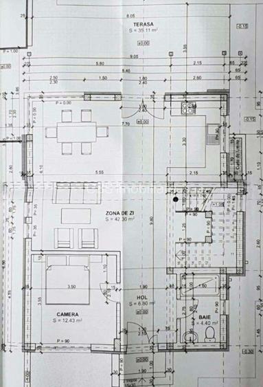
Oportunitate !!! Exclusivitate !!! CBS IMOBILIARE OFERĂ IMOBILIARE OFERA SPRE VÂNZARE CASĂ premium in Sat. Dezmir , o zona foarte liniștită , și cu un view deosebit asupra întregului oraș Cluj -Napoca și spre Aeroport , imobilul este dispus pe 3 nivele D +P+E + terasă circulabila fiind la stadiul de finisat pe exterior cu pavaj ,gazon și plante și pe interior la semifinisat , suprafata 214mpu + terasa circulabila 79mp ,terasa 35mp și balcon 12mp ,teren 458mpu . Compartimentare : Demisol : 2 parcări ,camera, tehnica casa scarii Parter : camera ,hol , bucatarie ,living , dinning, baie ,terasa 35 mp . Etaj: 3 dormitoare, 2 bai , hol Terasă circulabila : hol ,terasă Preț : 365.000€ ușor negociabil Detalii 📞
Citește mai mult Citește mai puțin
Încălzire prin pardoseală 2 Parcări 1 Garaj Bine întreținut (Bună)

Detalii casă

ID anunț: XFM611008 Copiat! 272296618 Copiat!
Actualizat în: 29 Aprilie 2026
Tip tranzacție: De vânzare prin agent
Suprafață construită: 85 mp
Nr. bucătării: 1
Nr. băi: 3
Nr. balcoane / Terase / Logii: 2
Nr. terase: 1
Suprafață terase: 125 mp
An construcție: 2025 (Finalizată)
Structură rezistență: Cărămidă
Modalitate de plată: Cash sau Credit

Utilități

Ușă intrare
PVC
Izolații termice
Exterior
Ferestre cu geam termopan
PVC
Utilități
Curent Apă Canalizare Gaze
Amenajare străzi
Asfaltate Mijloace de transport în comun
Comision
0%

Certificat energetic:

Clasa energetică: B

Puncte de interes

Mijloace transport
airport
Dezmir Airfiled
Aeroporturi aprox. 660 m
bus-station
Agro Transilvania
Stații autobuz aprox. 1128 m
bus-station
EVW Holding
Stații autobuz aprox. 1157 m
tram-station
Statia Electromontaj S, Linia 8
Stații tramvai aprox. 1895 m
Școală
kindergarten
Gradinita
Gradinițe aprox. 1270 m
Recreere
sports-ground
Teren sportiv
Terenuri sport aprox. 1003 m

Detalii despre preț și costuri

Costuri cu achiziția

Fără credit
Credit ipotecar
Noua casă

i

Costuri adiționale mai puțin știute la achiziție: taxe notariale, comisioane etc.

Acces la informații premium după autentificare
Login Gratuit

Proprietăți similare

Casă individuală cu 5 camere în Dezmir
359.999 €
Județul Cluj, Dezmir
5 camere
145 mp
400 mp teren
Casă individuală cu 4 camere în Dezmir
379.000 €
Județul Cluj, Dezmir
4 camere
120 mp
405 mp teren
Casă individuală cu 5 camere în Dezmir
360.000 €
Județul Cluj, Dezmir
5 camere
170 mp
400 mp teren

Detalii de contact

CBS Imobiliare

Alex Rafael Cuibus

CBS Imobiliare

Abonează-te la newsletter să fii primul care primește cele mai noi recomandări de proprietăți și sfaturi de la experți.

CONTACT

Creează alertă

Salvează căutarea ca să primești pe email ultimele anunțuri publicate

Case individuale cu 4+ camere de vânzare în Dezmir, Județul Cluj