10

Casa de vanzare 120 mp, 4 camere,3 bai, teren 350 mp, DEZMIR

193.000 €

Dezmir, Județul Cluj

Nr. cam.:
4
Sup. utilă:
120 mp
Sup. teren:
350 mp
Tip prop.:
Individuală
  • • Comision 0%
  • • Locație aproximativă

Descriere casă

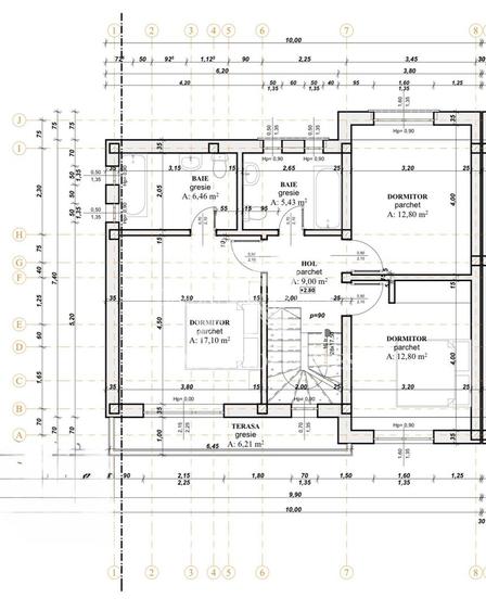
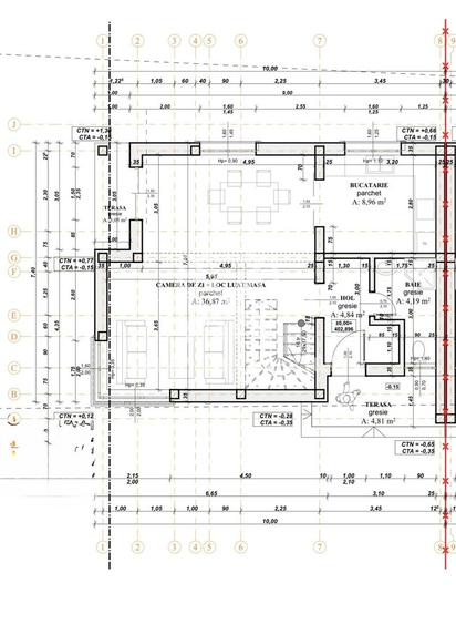
Vă oferim spre vânzare ultimele două case cuplate dintr-un ansamblu de 10 case, localizate in Dezmir cu priveliști spectaculoase. Fiecare casă este gândită să îmbine eleganța modernă cu liniștea unui peisaj natural, având ferestre mari care lasă lumina naturală să pătrundă din plin și creează o legătură armonioasă cu exteriorul. Imobilele dețin centrală termică proprie cu încălzire prin pardoseală la parter, iar la etaj prin calorifere. Casa este construită cu materiale de calitate, țiglă ceramică, geamuri tripan, cărămidă porotherm, izolație exterioară de 10 cm, iar izolația podului de 15 cm. Casele au suprafața utilă de 120 mp și sunt compartimentate astfel: Parter: • hol • living generos • bucătărie • baie Etaj: • 3 dormitoare • 2 băi • balcon Pod: • pod generos pentru spațiu de depozitare Pentru mai multe informații sau programarea unei vizionări nu ezitați să ne contactați!
Citește mai mult Citește mai puțin
Nemobilat Grădină Curte Calorifere Centrală proprie Încălzire prin pardoseală 2 Parcări

Detalii casă

ID anunț: XFUO1100L Copiat! 272392156 Copiat!
Actualizat în: 14 Mai 2026
Tip tranzacție: De vânzare prin agent
Suprafață construită: 75 mp
Suprafață desfășurată: 150 mp
Nr. bucătării: 1
Nr. băi: 3
Nr. balcoane / Terase / Logii: 1
Nr. terase: 1
Suprafață terase: 8 mp
Învelitoare acoperiș: Țiglă
An construcție: 2024 (Finalizată)
Regim înălțime: P+2E
Modalitate de plată: Cash sau Credit

Utilități

Ușă intrare
PVC
Izolații termice
Exterior
Ferestre cu geam termopan
PVC
Contorizare
Apometre Contor gaz
Diverse
Telecomandă poartă acces auto
Alte spații utile
WC Serviciu
Facilități imobil
Acoperiș
Utilități
Curent Apă Canalizare CATV Curent trifazic Gaze
Internet
Cablu
Amenajare străzi
Iluminat stradal Asfaltate De pământ Pietruite
Comision
0%

Disponibilitate proprietate:

Imediat

Puncte de interes

Mijloace transport
airport
Dezmir Airfiled
Aeroporturi aprox. 507 m
bus-station
Statia Piata AGRO, Linia 8L
Stații autobuz aprox. 624 m
tram-station
Statia Electromontaj S, Linia 8
Stații tramvai aprox. 1078 m
airport
International Airport Cluj-napoca--Terminal
Aeroporturi aprox. 1620 m
Școală
kindergarten
Gradinita
Gradinițe aprox. 1715 m
Recreere
sports-ground
Teren sportiv
Terenuri sport aprox. 196 m
cafe
So! Coffee
Cafenea aprox. 1627 m
cafe
Air Caffe
Cafenea aprox. 1699 m

Detalii despre preț și costuri

Costuri cu achiziția

Fără credit
Credit ipotecar
Noua casă

i

Costuri adiționale mai puțin știute la achiziție: taxe notariale, comisioane etc.

Acces la informații premium după autentificare
Login Gratuit

Proprietăți similare

Casă individuală cu 4 camere în Dezmir
194.999 €
Județul Cluj, Dezmir
4 camere
119 mp
350 mp teren
Casă individuală cu 4 camere în Dezmir
204.999 €
Județul Cluj, Dezmir
4 camere
115 mp
495 mp teren
Casă individuală cu 4 camere în Dezmir
209.000 €
Județul Cluj, Dezmir
4 camere
120 mp
500 mp teren

Detalii de contact

Dream Properties

Augustin Paul Daniel Manager

Dream Properties

Abonează-te la newsletter să fii primul care primește cele mai noi recomandări de proprietăți și sfaturi de la experți.

CONTACT

Creează alertă

Salvează căutarea ca să primești pe email ultimele anunțuri publicate

Case individuale cu 4+ camere de vânzare în Dezmir, Județul Cluj