3

Case individuale, 120 mp, utilitati, semifinisate, Dezmir

210.000 €

Dezmir, Județul Cluj

Nr. cam.:
4
Sup. utilă:
120 mp
Sup. teren:
350 mp
Tip prop.:
Individuală
  • • Locație aproximativă

Descriere casă

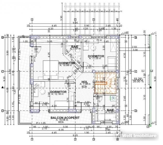
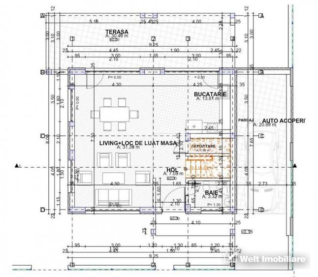
Va aducem in atentie oportunitatea achizitionarii unei case dintr-un ansamblu de 7 unitati locative, situate in Dezmir. Acestea sunt situate pe un drum privat, inchis cu poarta, accesul facandu-se pe baza de telecomanda, astfel doar locatarii avand acces. O casa are un regim de inaltime P+E, avand urmatoarea compartimentare: *La parter: living open space cu bucatarie, 1 baie, 1 hol,+ scara, 1 terasa, 1 parcaj auto acoperit; *La etaj: 3 dormitoare, 2 bai, 1 hol, 1 balcon acoperit. Acestea dispun de toate utilitatile: gaz, apa, curent, canalizare, incalzire in pardoseala la ambele niveluri. Interiorul se preda la stadiul de semifinisat, cu pereti tencuiti si gletuiti, sape, cu instalatii electrice si sanitare. Asteptam cu interes sa ne contactati cu privire la vizionarea acestor proprietati! Echipa Welt Imobiliare
Citește mai mult Citește mai puțin
Nemobilat Grădină Curte Centrală proprie Încălzire prin pardoseală

Detalii casă

ID anunț: X1KA11189 Copiat! 47794380 Copiat!
Actualizat în: 28 Februarie 2026
Suprafață construită: 144 mp
Nr. bucătării: 1
Nr. băi: 2
Nr. balcoane / Terase / Logii: 1
Nr. terase: 1
Front stradal: 25 m
Structură rezistență: Cărămidă
Regim înălțime: P+1E

Utilități

Contorizare
Apometre Contor gaz
Utilități
Curent Apă Canalizare Gaze
Ușă intrare
PVC
Izolații termice
Exterior
Ferestre cu geam termopan
PVC
Amenajare străzi
Asfaltate Iluminat stradal Mijloace de transport în comun
Comision
2%+TVA

Disponibilitate proprietate:

imediat

Puncte de interes

Mijloace transport
airport
Dezmir Airfiled
Aeroporturi aprox. 1438 m
bus-station
Statia Piata AGRO, Linia 8L
Stații autobuz aprox. 1830 m
bus-station
Halta Agro
Stații autobuz aprox. 1836 m
bus-station
Halta Dezmir
Stații autobuz aprox. 1839 m
Recreere
sports-ground
Teren sportiv
Terenuri sport aprox. 1384 m
park
Pădurea Dezmir (en)
Parcuri aprox. 1977 m

Detalii despre preț și costuri

Costuri cu achiziția

Fără credit
10.110 RON
Credit ipotecar
12.114 RON
Noua casă
1.210 RON+ taxe notariale

i

Costuri adiționale mai puțin știute la achiziție: taxe notariale, comisioane etc.

Proprietăți recomandate

Detalii de contact

WELT IMOBILIARE

Welt Imobiliare

4.52(21 review-uri)

WELT IMOBILIARE
PRO

Abonează-te la newsletter să fii primul care primește cele mai noi recomandări de proprietăți și sfaturi de la experți.

CONTACT

Creează alertă

Salvează căutarea ca să primești pe email ultimele anunțuri publicate

Case individuale cu 4+ camere de vânzare în Dezmir, Județul Cluj