23

Casa individuala superba, amenajata in stil scandinav Dezmir

304.000 €

Dezmir, Județul Cluj

Nr. cam.:
4
Sup. utilă:
166 mp
Sup. teren:
455 mp
Tip prop.:
Individuală
  • • Comision 0%
  • • Exclusivitate
  • • Locație exactă

Descriere casă

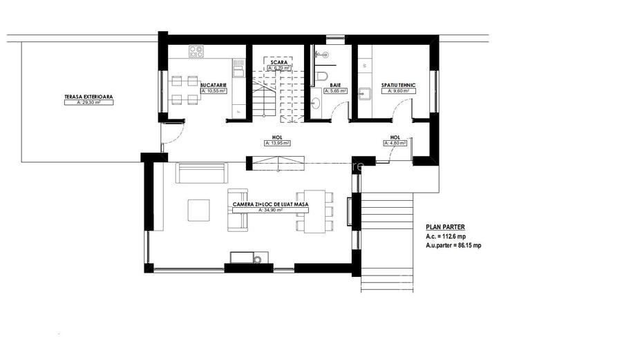
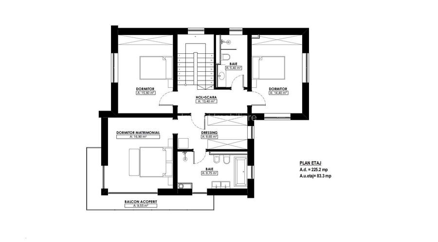
Impakt Imobiliare va propune spre vanzare o casa individuala superba, situata in Dezmir, la doar 15 minute de centrul orasului Cluj Napoca. Aceasta locuinta impresioneaza prin finisaje deosebite si un design modern, emanand eleganta si bun gust. Haideti sa exploram in detaliu aceasta proprietate atragatoare: Proprietatea este amplasata pe un teren generos de 455 m2, cu un front de 14 ml, oferind suficient spatiu pentru o curte frumoasa si ingrijita. Amprenta la sol este de 113 m2, iar suprafata utila a casei este de 166 m2. Casa este dispusa pe P+E astfel: La Parter veti fi intampinati de un living spatios, cu suprafete vitrate care permit patrunderea luminii naturale, creand o atmosfera prietenoasa si placuta. Zona special amenajata pentru locul luat masa este perfecta pentru a va bucura de mese intr-un mediu intim si confortabil. Bucataria este separata, inchisa cu usi de sticla si adauga un aer modern si functional locuintei, iar finisajele de calitate asigura un aspect elegant. Tot la parter avem o baie extrem de practica si comoda pentru utilizarea de zi cu zi. Iesirea catre terasa din curte va invita sa va bucurati de aerul proaspat si de momente de relaxare in natura. Holul de la intrare si casa scarii sunt detalii ce completeaza cu rafinament designul modern al intregii tehnica completeaza parterul oferind spatii pentru echipamentele casnice . La Etaj casa dispune de 3 dormitoare, fiecare dintre ele oferind intimitate si confort pentru fiecare membru al familiei sau pentru oaspeti. Dormitorul matrimonial dispune de dressing si baie proprie, asigurand un spatiu privat si bine organizat pentru proprietari.Balconul adauga un plus de farmec locuintei, fiind locul ideal pentru a va bucura de aerul proaspat si pentru a admira peisajele si apusurile de neuitat, intr-o atmosfera speciala si romantica. Totodata la Etaj avem si o baie secundara cu cabina de dus. Casa dispune de finisaje moderne, parchet din lemn masiv, tamplarie cu 7 camere si 3 sticle, bai echipate cu obiecte sanitare premium, jaluzele ext. Proprietatea dispune de toate utilitatile (gaz la capatul strazii) asigurand un trai confortabil si fara griji. Sistemul de incalzire cu pompe de caldura aduce eficienta energetica si economii pe termen lung. Podul este izolat cu vata bazaltica de 25 cm aspect ce contribuie la mentinerea temperaturii interioare, asigurand un climat placut in orice anotimp. Acoperisul din tigla Creaton este o alegere clasica si durabila, garantand protectia si siguranta locuintei. Aceasta casa din Dezmir este o alegere excelenta pentru cei care doresc sa se bucure de confort, rafinament si design modern, intr-o locatie convenabila si cu o arhitectura atragatoare. Cu finisaje de calitate si un interior bine compartimentat, aceasta proprietate reprezinta un camin ideal pentru cei care cauta sa se bucure de frumusetea vietii intr-un mediu elegant si primitor. Pentru detalii sau pentru a stabili o vizionare, contactati-ne !
Citește mai mult Citește mai puțin
Parțial mobilat Grădină Încălzire prin pardoseală

Detalii casă

ID anunț: X8I71100K Copiat! 258396183 Copiat!
Actualizat în: 27 Martie 2026
Tip tranzacție: De vânzare prin agent
Suprafață desfășurată: 200 mp
Nr. bucătării: 1
Nr. băi: 3
Nr. balcoane / Terase / Logii: 1
Front stradal: 14.0 m
Învelitoare acoperiș: Tabla
An construcție: 2018 (Finalizată)
Structură rezistență: Cărămidă
Modalitate de plată: Cash sau Credit

Utilități

Destinație
Rezidențial
Jaluzele
Verticale
Pereți
Faianță
Podele
Gresie Parchet
Uși interior
Lemn
Izolații termice
Exterior
Contorizare
Apometre
Bucătărie
Mobilată Parțial utilată
Electrocasnice
Aragaz Frigider Mașină de spălat Mașină spălat vase
Diverse
Senzor de fum
Utilități
Curent Apă Canalizare Gaze
Internet
Cablu
Amenajare străzi
De pământ Pietruite
Comision
0%

Certificat energetic:

Clasa energetică: A

Disponibilitate proprietate:

Imediat

Puncte de interes

Mijloace transport
airport
Dezmir Airfiled
Aeroporturi aprox. 862 m
bus-station
Halta Agro
Stații autobuz aprox. 1297 m
bus-station
Halta Dezmir
Stații autobuz aprox. 1297 m
tram-station
Statia Electromontaj S, Linia 8
Stații tramvai aprox. 1755 m
Recreere
sports-ground
Teren sportiv
Terenuri sport aprox. 835 m

Detalii despre preț și costuri

Costuri cu achiziția

Fără credit
Credit ipotecar
Noua casă

i

Costuri adiționale mai puțin știute la achiziție: taxe notariale, comisioane etc.

Acces la informații premium după autentificare
Login Gratuit

Proprietăți similare

Casă individuală cu 4 camere în Dezmir
299.000 €
Județul Cluj, Dezmir
4 camere
200 mp
450 mp teren
Casă individuală cu 5 camere în Dezmir
320.000 €
Județul Cluj, Dezmir
5 camere
250 mp
640 mp teren
Casă individuală cu 5 camere în Dezmir
300.000 €
Județul Cluj, Dezmir
5 camere
249 mp
640 mp teren

Detalii de contact

Impakt Imobiliare

Ovidiu Stetco Manager - Expert Imobiliar

4.61(6 review-uri)

Impakt Imobiliare
PRO

Abonează-te la newsletter să fii primul care primește cele mai noi recomandări de proprietăți și sfaturi de la experți.

CONTACT

Creează alertă

Salvează căutarea ca să primești pe email ultimele anunțuri publicate

Case individuale cu 4+ camere de vânzare în Dezmir, Județul Cluj