Vila moderna 4 camere // 114 // teren 440mp / Tunari/ Localitatea Dimieni

260.000 €

Dimieni, Județul Ilfov

Nr. cam.:
4
Sup. utilă:
104,6 mp
Sup. teren:
300 mp
Tip prop.:
Individuală
  • • Locație aproximativă

Descriere casă

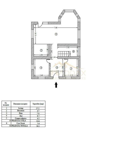
Vilă exclusivistă în Tunari | Design contemporan, rafinament și confort absolut | MADDAX Luxury Properties vă invită să descoperiți o proprietate remarcabilă, concepută pentru un stil de viață sofisticat, unde arhitectura modernă se îmbină armonios cu funcționalitatea și eleganța. Situată în Tunari, localitatea Dimieni într-o zonă liniștită și în plină dezvoltare, vila oferă acces rapid către București, fiind alegerea ideală pentru cei care doresc echilibrul perfect între intimitate și conectivitate urbană. ✨ Concept & spațialitate Proprietatea impresionează prin volumetrie echilibrată, lumină naturală abundentă și o compartimentare inteligentă, desfășurată pe niivle P+1 + pod inalta, oferind in total 4 camere, dintre care 3 dormitoare. 🔹 Parter – zona de zi si de relaxare Un spațiu generos, dedicat socializării și relaxării: • Living amplu, cu deschidere către terasa exterioară • Bucătărie open space • Baie • Acces direct către zona de exterior • Casa scarii 5.4 mp 👉 Terasa devine extensia naturală a casei – locul perfect pentru dimineți însorite, cine rafinate sau seri relaxante alături de cei dragi. 🔹 Etaj 1- zona de noapte • 3 dormitoare luminoase • 1 baie moderna • Casa scarii 4.7 mp 📐 Detalii proprietate • Suprafață teren: 440 MP • Amprenta la sol: 75mp • 220 metri cota indiviza dintr-o pădurice și drumul de acces • Curte privată cu locuri de parcare • Drumul principal asfaltat, drumul de acces pietruit ⚙️ Dotări premium • Încălzire în pardoseală pentru confort optim • Centrală termică proprie • Finisaje atent selecționate: parchet, gresie de calitate superioară • Acoperiș modern în pantă, cu ferestre tip VELUX pentru lumină naturală 🌿 Stil de viață Această vilă nu este doar o locuință, ci o experiență de locuire: ✔ intimitate și liniște ✔ spații aerisite și funcționale ✔ design contemporan ✔ acces rapid către principalele puncte de interes 📍 Accesibilitate excelentă: • ~arprox. 7 minute până la Centura București • ~aprox. 45 minute până în centrul capitalei 🔑 O proprietate pentru cei care apreciază detaliile Această vilă se adresează celor care caută mai mult decât o casă – un loc unde confortul, estetica și calitatea se întâlnesc într-un mod natural. 📞 MADDAX Luxury Properties Vă stă la dispoziție pentru detalii suplimentare și programarea unei vizionări private.
Citește mai mult Citește mai puțin
Grădină Curte Aer condiționat Centrală proprie 2 Parcări

Detalii casă

ID anunț: XDJC11252 Copiat! 275437242 Copiat!
Actualizat în: 15 Aprilie 2026
Suprafață desfășurată: 114.7 mp
Nr. bucătării: 1
Nr. băi: 2
Nr. balcoane / Terase / Logii: 1
Nr. terase: 1
Suprafață terase: 11.52 mp
Învelitoare acoperiș: Țiglă
An construcție: 2025 (Finalizată)
Structură rezistență: Cărămidă
Regim înălțime: P+1E

Utilități

Pereți
Vopsea lavabilă
Podele
Parchet
Ușă intrare
Metal
Izolații termice
Exterior Interior
Bucătărie
Mobilată
Diverse
Sistem de alarmă
Utilități
Curent Apă Canalizare CATV Gaze Telefon
Internet
Cablu
Amenajare străzi
Iluminat stradal Mijloace de transport în comun Asfaltate
Comision
standard

Disponibilitate proprietate:

Imediat

Detalii despre preț și costuri

Costuri cu achiziția

Fără credit
Credit ipotecar
Noua casă

i

Costuri adiționale mai puțin știute la achiziție: taxe notariale, comisioane etc.

Insight premium disponibil după login

Proprietăți similare

Casă individuală cu 7 camere în Chiajna
260.000 €
Județul Ilfov, Chiajna
7 camere
150 mp
400 mp teren
Casă individuală cu 8 camere în Central
275.000 € + TVA
Județul Ilfov, Popești-Leordeni
8 camere
180 mp
240 mp teren
Casă individuală cu 5 camere în Central
265.000 €
Județul Ilfov, Popești-Leordeni
5 camere
185 mp
256 mp teren

Detalii de contact

MADDAX Luxury Properties

Angela Ene Business Partner

MADDAX Luxury Properties
PRO

Abonează-te la newsletter să fii primul care primește cele mai noi recomandări de proprietăți și sfaturi de la experți.

CONTACT

Creează alertă

Salvează căutarea ca să primești pe email ultimele anunțuri publicate

Case individuale cu 4+ camere de vânzare în Dimieni, Județul Ilfov