Vila individuala Luceafarului - adiacent Radului - Bucatarie inchisa

185.000 €

Domnești, Județul Ilfov

Nr. cam.:
4
Sup. utilă:
118 mp
Sup. teren:
394 mp
Tip prop.:
Individuală
  • • Comision 0%
  • • Locație exactă

Descriere casă

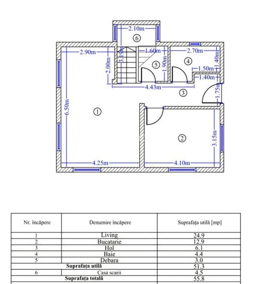
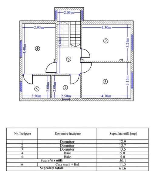
Va prezint spre vanzare o vila individuala, situata in Domnesti, zona noua de case / vile, adiacent strada Radului - str Luceafarului, constructie 2025/2026, avand o curte disponibila de 394 mp si un regim de inaltime Parter + Etaj 1 + Pod. Imobilul dispune de aprox 117 mp utili + pod , 4 camere (living + 3 dormitoare), 3 bai si bucatarie inchisa. Proprietatea este conectata individuala la utilitati (gaz, curent, apa, canalizare) si dispune de centrala proprie cu calorifere, constructie beton+caramida, termopane tripan. Pret imobil: 185.000 EURO COMISION CUMPARATOR 0%! Acte disponibile, se accepta credit!
Citește mai mult Citește mai puțin

Detalii casă

ID anunț: XFMQ01002 Copiat! 275462486 Copiat!
Actualizat în: 21 Aprilie 2026
Nr. bucătării: 1
Nr. băi: 3
An construcție: 2026
Regim înălțime: P+1E

Utilități

Comision
0%

Puncte de interes

Recreere
restaurant
Restaurant Casa Domnesti
Restaurant aprox. 607 m
sports-ground
Teren sportiv
Terenuri sport aprox. 771 m

Detalii despre preț și costuri

Costuri cu achiziția

Fără credit
Credit ipotecar
Noua casă

i

Costuri adiționale mai puțin știute la achiziție: taxe notariale, comisioane etc.

Insight premium disponibil după login

Proprietăți similare

Casă individuală cu 4 camere în Domnești
175.000 €
Județul Ilfov, Domnești
4 camere
116 mp
420 mp teren
Casă individuală cu 4 camere în Domnești
195.000 €
Județul Ilfov, Domnești
4 camere
118 mp
350 mp teren
Casă individuală cu 5 camere în Domnești
180.000 €
Județul Ilfov, Domnești
5 camere
200 mp
920 mp teren

Detalii de contact

BGX IMOB

Bogdan Mandoiu

BGX IMOB

Abonează-te la newsletter să fii primul care primește cele mai noi recomandări de proprietăți și sfaturi de la experți.

CONTACT

Creează alertă

Salvează căutarea ca să primești pe email ultimele anunțuri publicate

Case individuale cu 4+ camere de vânzare în Domnești, Județul Ilfov