2

Casă individuală spațioasă, la 10 km de Timișoara

265.000 €

Dudeștii Noi, Județul Timiș

Nr. cam.:
6
Sup. utilă:
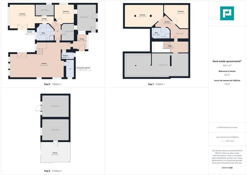
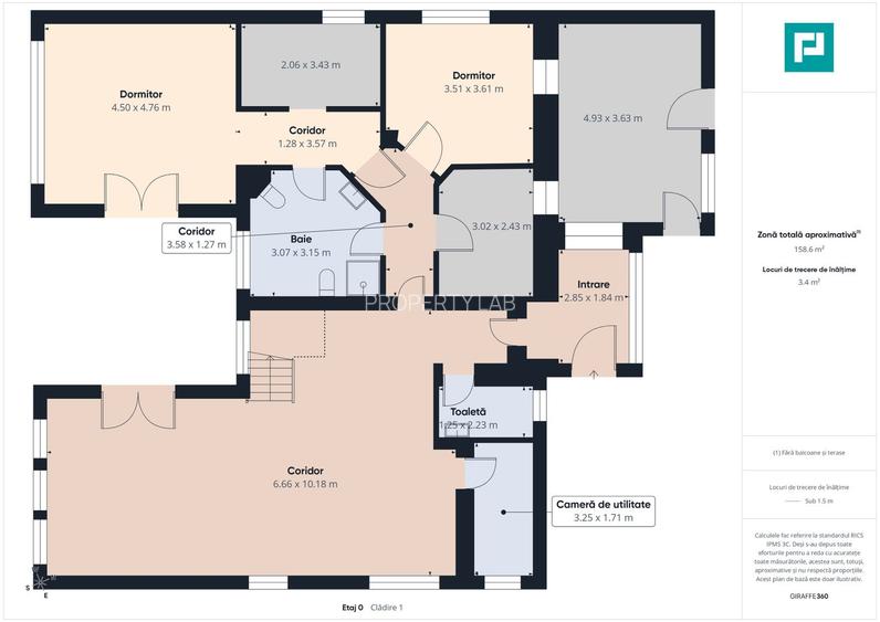
323 mp
Sup. teren:
1.376 mp
Tip prop.:
Individuală
  • • Exclusivitate
  • • Locație aproximativă

Descriere casă

Îti dorești o locuință spațioasă, modernă, cu teren generos și multiple posibilități de compartimentare? Atunci această proprietate este exact ce cauți! Detalii principale: - Suprafață construită: 325 mp - Terasă spațioasă: 14 mp - Magazie: 20 mp - Teren generos de 920 mp (2 CF-uri – unul separat de 456 mp) - Front stradal larg: 40 m - Acces auto, carport, alei pavate, curte frumos amenajată cu pomi fructiferi și plante ornamentale Dotări și beneficii: - Încălzire mixtă: în pardoseală + calorifere - Șemineu elegant în zona de living - Panouri solare, pufer, boiler performant – pentru confort termic optim - Butelie de gaz reîncărcabilă - Supraveghere video + sistem de alarmă - Acces auto pe două părți ale proprietății Compartimentare inteligentă: - 4 dormitoare, 2 dressinguri - 3 băi moderne (cu duș, cadă, bideu – una cu acces direct din dormitor) - Living spațios cu bucătărie open-space, ieșire pe terasă - Mansardă – o parte finisată, cealaltă în curs de amenajare, perfectă pentru un al doilea apartament sau spațiu de birou Ce oferă în plus această casă? Posibilitatea de a fi locuită de două familii Spațiu generos și luminos pentru o viață confortabilă Toate utilitățile disponibile: apă, canal, curent trifazic, gaz O zonă rezidențială liniștită, cu locuințe în vecinătate Perfectă pentru cei care își doresc liniște, intimitate, dar și acces rapid la oraș Este alegerea perfectă pentru: - Familii extinse sau două generații - Persoane care lucrează de acasă și au nevoie de spațiu dedicat - Cei care vor o locuință cu adevărat completă, gata să fie numită „acasă” Vino să descoperi o proprietate unică, cu suflet și caracter! Pentru vizionare sau detalii suplimentare, sunt aici pentru tine. Daniela Ianc - consultant imobiliar PropertyLab telefon:
07223**** Vezi tot numărul
mail:
danie**** Trimite email
CP2833388
Citește mai mult Citește mai puțin
Mobilat Mobilat Grădină Curte Aer condiționat Calorifere Centrală proprie Încălzire prin pardoseală 10 Parcări 1 Garaj Bine întreținut (Bună) Zonă rurală

Detalii casă

ID anunț: X5I1111HQ Copiat! 272962301 Copiat!
Actualizat în: 05 Martie 2026
Suprafață construită: 180 mp
Suprafață desfășurată: 387 mp
Nr. bucătării: 1
Nr. băi: 3
Nr. terase: 1
Suprafață terase: 20 mp
Front stradal: 22.0 m
Învelitoare acoperiș: Țiglă
An construcție: 2012
Structură rezistență: Cărămidă
Regim înălțime: P+1E+M

Utilități

Pereți
Faianță Vopsea lavabilă
Podele
Gresie Parchet
Ușă intrare
PVC
Uși interior
Celulare
Izolații termice
Exterior
Ferestre cu geam termopan
PVC
Contorizare
Apometre Contor căldură Contor gaz
Bucătărie
Mobilată Utilată
Electrocasnice
Aragaz Frigider Hotă Mașină de spălat TV
Diverse
Scară interioară Șemineu Sistem de alarmă
Alte spații utile
Dressing
Facilități imobil
Acoperiș Spații agrement
Utilități
Curent Apă Canalizare CATV Curent trifazic Gaze Telefon
Internet
Cablu Wireless
Servicii imobil
Supraveghere video
Amenajare străzi
Iluminat stradal Mijloace de transport în comun Asfaltate
Comision
standard

Disponibilitate proprietate:

Imediat

Puncte de interes

Mijloace transport
bus-station
Sanandrei
Stații autobuz aprox. 1381 m

Detalii despre preț și costuri

Costuri cu achiziția

Fără credit
11.997 RON
Credit ipotecar
14.234 RON
Noua casă
1.490 RON+ taxe notariale

i

Costuri adiționale mai puțin știute la achiziție: taxe notariale, comisioane etc.

Proprietăți recomandate

Detalii de contact

PROPERTY LAB

Daniela Ianc Real Estate Consultant Timisoara

PROPERTY LAB

Abonează-te la newsletter să fii primul care primește cele mai noi recomandări de proprietăți și sfaturi de la experți.

CONTACT

Creează alertă

Salvează căutarea ca să primești pe email ultimele anunțuri publicate

Case individuale cu 4+ camere de vânzare în Dudeștii Noi, Județul Timiș