2

Vilă in constructie, locatie excelenta, Comision 0%

390.000 €

Feleacu, Județul Cluj

Nr. cam.:
5
Sup. utilă:
142 mp
Sup. teren:
611 mp
Tip prop.:
Individuală
  • • Comision 0%
  • • Locație exactă
  • • Vizionare prin apel video

Descriere casă

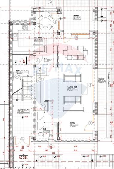
Vă oferim spre vânzare, fără comision la achizitie, o locuință aflată în construcție, situată într-o zonă liniștită și panoramică din Feleacu, la doar 7 minute de Cluj-Napoca. Aceasta reprezintă oportunitatea ideală de a vă implica direct în personalizarea finisajelor și de a urmări calitatea construcției pas cu pas. Suprafață utilă: 142 mp Teren: ~600 mp Camere: 5 Dormitoare: 3 (dintre care unul matrimonial cu baie proprie și ieșire pe terasă) Băi: 3 Terase: 2 Parcări: 2 locuri exterioare La parter regăsim un spațiu de zi generos cu living, dining, bucătărie open space, terasa și un birou. La etaj ne intampina un hol generos, un dormitor matrimonial cu baie si terasa, doua dormitoare secundare si o baie. Toate dormitoarele oferă suprafete vitrate mari si priveliște spectaculoasă asupra orașului Cluj-Napoca. Constructia este realizata cu materiale de calitate si se va preda la stadiul de semifinisat. Această proprietate este ideală pentru cei care doresc liniște și aer curat fără a renunța la proximitatea urbană. Va rugam sa vizionati turul virtual si schitele imobilului. Pentru mai multe detalii sau programarea unei vizionări, nu ezitați să ne contactați!
Citește mai mult Citește mai puțin
Centrală proprie Încălzire prin pardoseală 2 Parcări Zonă de deal / munte

Detalii casă

ID anunț: XDV211033 Copiat! 266027209 Copiat!
Actualizat în: 23 Ianuarie 2026
Suprafață construită: 250 mp
Suprafață desfășurată: 250 mp
Nr. bucătării: 1
Nr. băi: 3
Nr. terase: 2
Suprafață terase: 17 mp
Învelitoare acoperiș: Tabla
An construcție: 2025 (În construcție)
Structură rezistență: Cărămidă
Tip imobil: Casă/Vilă
Regim înălțime: P+1E

Utilități

Ușă intrare
Metal
Izolații termice
Exterior
Ferestre cu geam termopan
PVC
Contorizare
Contor gaz
Facilități imobil
Acoperiș
Amenajare străzi
Iluminat stradal
Comision
0%

Disponibilitate proprietate:

Imediat

Puncte de interes

Mijloace transport
bus-station
M-DJ 71
Stații autobuz aprox. 902 m
bus-station
M-Post Control
Stații autobuz aprox. 927 m
bus-station
M-Scoala Feleacu V
Stații autobuz aprox. 1535 m
bus-station
M-Scoala Feleacu E
Stații autobuz aprox. 1543 m
Școală
kindergarten
Gradinita Feleacu
Gradinițe aprox. 1533 m
school
Scoala Generala Feleacu
Școli aprox. 1553 m
Recreere
restaurant
Aroma
Restaurant aprox. 1508 m
restaurant
Restaurant Aroma
Restaurant aprox. 1519 m
restaurant
Restaurant Pensiunea Serena
Restaurant aprox. 1956 m

Detalii despre preț și costuri

Costuri cu achiziția

Fără credit
16.286 RON
Credit ipotecar
19.054 RON
Noua casă
2.127 RON+ taxe notariale

i

Costuri adiționale mai puțin știute la achiziție: taxe notariale, comisioane etc.

Proprietăți recomandate

Detalii de contact

Abonează-te la newsletter să fii primul care primește cele mai noi recomandări de proprietăți și sfaturi de la experți.

CONTACT

Creează alertă

Salvează căutarea ca să primești pe email ultimele anunțuri publicate

Case individuale cu 4+ camere de vânzare în Feleacu, Județul Cluj