2

Casa Unifamiliala Parter + Etaj , situata in Floresti!

190.000 € + TVA

Florești, Județul Cluj

Nr. cam.:
4
Sup. utilă:
112 mp
Sup. teren:
256 mp
Tip prop.:
Individuală
  • • Locație aproximativă
  • • Vizionare prin apel video

Descriere casă

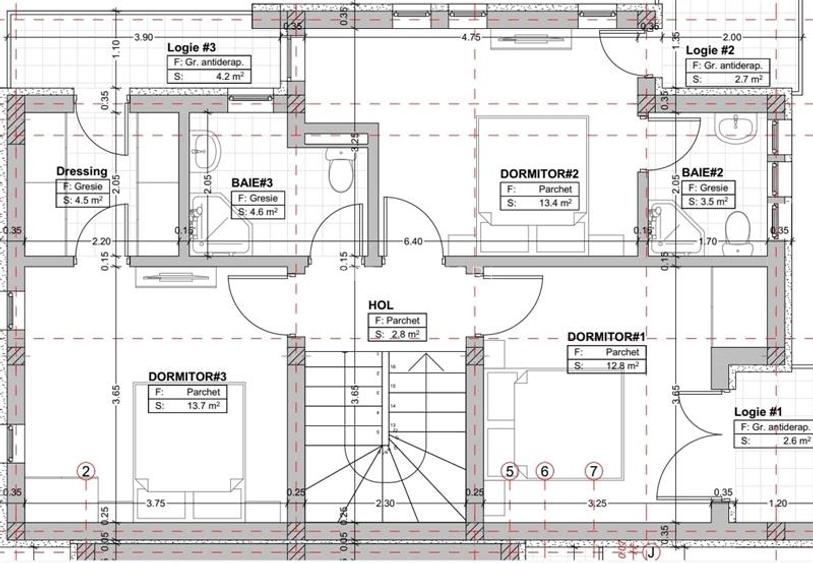
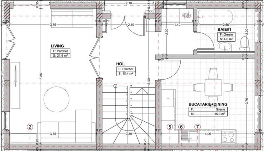
Rower Estate va propune spre vanzare Casa Unifamiliala, situata in Floresti, cu un regim de inaltime Parter + Etaj , situata intr-o zona nou dezvoltata, cu acces privat si bariera. Casa are 4 camere si o suprafata utila de 112 mp utili + 256 mp teren in proprietate si este compartimentata astfel : - Parter: 1 Living, 1 Bucatarie cu loc de luat masa ,1 baie, casa scarii. Etaj: 3 dormitoare, 2 bai, 1 dressing, 1 hol, 3 logii. Se ofera spre vanzare pregatita pentru finisaje la stadiul de semifinisat, cu sapa autonivelanta, peretii gletuiti si instalatile trase la pozitie. Casa beneficiaza de Centrala Termica, Incalzire in pardoseala (parter+etaj). Gradina este amenajata cu gazon si pavaj , Imprejmuire cu gard pe fundatie de beton, grilaj metalic. La pret se adauga TVA de 21%. ID intern: ROW3655
Citește mai mult Citește mai puțin
Nemobilat Centrală proprie Încălzire prin pardoseală 2 Parcări

Detalii casă

ID anunț: XBUG110GP Copiat! 235349020 Copiat!
Actualizat în: 24 Februarie 2026
Suprafață construită: 112 mp
Suprafață desfășurată: 112 mp
Nr. bucătării: 1
Nr. băi: 3
Nr. balcoane / Terase / Logii: 3
Suprafață terase: 9 mp
Nr. fronturi stradale: 1
Învelitoare acoperiș: Țiglă
An construcție: 2025 (Finalizată)
Structură rezistență: Altele
Etaj: Etaj 1 / 1
Regim înălțime: P+1E

Utilități

Destinație
Rezidențial
Izolații termice
Exterior
Ferestre cu geam termopan
PVC
Utilități
Apă Curent Gaze Canalizare CATV
Internet
Cablu Fibră optică Wireless
Amenajare străzi
Asfaltate
Comision
2%

Puncte de interes

Mijloace transport
bus-station
M-Cartier Terra
Stații autobuz aprox. 837 m
bus-station
M-Prof. Dumitru Mocanu
Stații autobuz aprox. 1047 m
bus-station
M-Prof. Dumitru Mocanu E
Stații autobuz aprox. 1049 m
bus-station
M-Prof. Dumitru Mocanu V
Stații autobuz aprox. 1057 m
Recreere
park
Parc
Parcuri aprox. 475 m
restaurant
Pizza Pizza
Restaurant aprox. 588 m
supermarket
Profi
Supermarket aprox. 1232 m
sports-ground
Teren Fotbal Sintetic
Terenuri sport aprox. 1341 m

Detalii despre preț și costuri

Costuri cu achiziția

Fără credit
34.213 RON
Credit ipotecar
36.301 RON
Noua casă
1.311 RON+ taxe notariale

i

Costuri adiționale mai puțin știute la achiziție: taxe notariale, comisioane etc.

Proprietăți recomandate

Detalii de contact

ROWER ESTATE S.R.L.

Razvan Suciu Broker Imobiliar

4.33(3 review-uri)

ROWER ESTATE S.R.L.
PRO

Abonează-te la newsletter să fii primul care primește cele mai noi recomandări de proprietăți și sfaturi de la experți.

CONTACT

Creează alertă

Salvează căutarea ca să primești pe email ultimele anunțuri publicate

Case individuale cu 4+ camere de vânzare în Florești, Județul Cluj