Casa individuala, 132mp, terasa 60mp,teren 2004mp, zona Avram Iancu

235.000 €

Florești, Județul Cluj

Nr. cam.:
4
Sup. utilă:
132,08 mp
Sup. teren:
380 mp
Tip prop.:
Individuală
  • • Locație aproximativă

Descriere casă

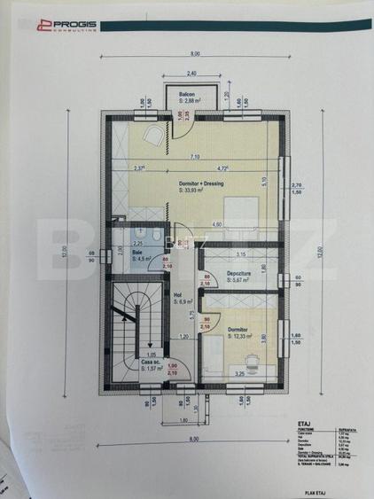
Blitz ofera spre vanzare 4 case individuale situate in zona Avram Iancu, in imediata apropiere a statiilor de autobuz, magazine, spatii verzi si centura Donath/Grigorescu. Constructia v-a fi finalizata la finalul anului 2025 si are un regim de inaltime P+1. Dispune de o suprafata de 132 mp utili si 300 mp de teren. Compartimentarea este practic gandita si se prezinta astfel; parter: hol, living generos cu bucatarie si loc de luat masa, birou/ dormitor, baie, spatiu de depozitare si doua terase. etajul 1: hol, 2 dormitoare unul cu dressing, baie si spatiu de depozitare, mai sus avem o terasa circulabila de 60mp. Terenul din jurul casei este de 204mp. Este dotata cu: centrala termica proprie, incalzire in pardoseala, geamuri termopan cu tamplarie PVC, casa fiind din caramida si izolatie de 15cm. Casa se preda la stadiul de semifinisat in toamna anului 2026 si fiecare casa dispune de un loc de parcare. Pentru mai multe detalii si vizionari, nu ezitati sa ne contactati! Cod oferta / ID BLITZ: P138871
Citește mai mult Citește mai puțin
Nemobilat Centrală proprie 1 Parcare 1 Parcare / Garaj / Parcare subterană

Detalii casă

ID anunț: XFTI1110E Copiat! 261088626 Copiat!
Actualizat în: 05 Martie 2026
Nr. bucătării: 1
Nr. băi: 2
Nr. balcoane / Terase / Logii: 1
Nr. terase: 3
Front stradal: 20 m
An construcție: 2025 (La gri)
Structură rezistență: Cărămidă
Regim înălțime: P+1E

Utilități

Utilități
Curent Apă Canalizare Gaze
Alte spații utile
Spațiu depozitare Dressing
Amenajare străzi
Asfaltate
Izolații termice
Exterior
Comision
%

Certificat energetic:

Clasa energetică: B

Disponibilitate proprietate:

imediat

Puncte de interes

Mijloace transport
bus-station
Oncos S
Stații autobuz aprox. 1174 m
bus-station
Oncos N
Stații autobuz aprox. 1187 m
bus-station
Metro Nord S
Stații autobuz aprox. 1229 m
bus-station
Metro Nord N
Stații autobuz aprox. 1247 m
Recreere
supermarket
Metro
Supermarket aprox. 1229 m
park
Parcul Poligon
Parcuri aprox. 1236 m
mall
Complex comercial Polus
Mall aprox. 1527 m
sports-ground
Teren Decathlon
Terenuri sport aprox. 1738 m

Detalii despre preț și costuri

Costuri cu achiziția

Fără credit
10.970 RON
Credit ipotecar
13.080 RON
Noua casă
1.338 RON+ taxe notariale

i

Costuri adiționale mai puțin știute la achiziție: taxe notariale, comisioane etc.

Proprietăți recomandate

Detalii de contact

BLITZ

BLITZ ROMANIA

4.70(105 review-uri)

BLITZ
PRO

Abonează-te la newsletter să fii primul care primește cele mai noi recomandări de proprietăți și sfaturi de la experți.

CONTACT

Creează alertă

Salvează căutarea ca să primești pe email ultimele anunțuri publicate

Case individuale cu 4+ camere de vânzare în Florești, Județul Cluj