Vila de Lux in Floresti I 120mp I 250mp teren I Garaj I zona Vivo

339.900 €

Florești, Județul Cluj

Nr. cam.:
4
Sup. utilă:
120 mp
Sup. teren:
250 mp
Tip prop.:
Casă individuală
  • • Locație aproximativă

Descriere casă

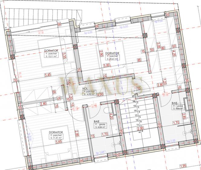
Waxus Imobiliare vă propune spre vânzare o casă individuală situată în zona Vivo – Florești, în imediata apropiere a centurii și a principalelor puncte de interes din zonă. Proprietatea face parte dintr-un proiect rezidențial exclusivist, aflat în construcție, cu predare estimată la începutul anului 2026 și intabulare (CF) în vara anului 2026. Casa are o suprafață utilă de 120 mp, la care se adaugă un garaj subteran de 21 mp și o terasă generoasă de 35 mp, oferind confort și funcționalitate pentru o familie modernă. Regimul de înălțime este S+P+1, compartimentat astfel: Demisol: garaj. Parter: hol de acces de 3,5 mp, living cu bucătărie open-space de 35 mp, dispus pe orientarea E–S–V, cămară de 3 mp, casă a scării de 6 mp și baie de 3,4 mp. Etaj: două băi de câte 4,84 mp, un dormitor de 20 mp, un dormitor de 13 mp, un dormitor de 11 mp și două holuri însumând 5 mp. Proiectul se remarcă prin atenția la detalii, amplasarea excelentă și calitatea construcției, fiind o alegere ideală pentru cei care își doresc o locuință într-o zonă liniștită, dar foarte accesibilă. Pentru mai multe informații sau pentru programarea unei vizionări, vă invităm să ne contactați. ID extern: 143227
Citește mai mult Citește mai puțin
Nemobilat Centrală proprie Încălzire prin pardoseală 1 Parcare 1 Garaj Bine întreținut (Bună)

Detalii casă

ID anunț: XDKC11021 Copiat! 271299058 Copiat!
Actualizat în: 08 Aprilie 2026
Tip tranzacție: De vânzare prin agent
Suprafață construită: 160 mp
Nr. bucătării: 1
Nr. băi: 3
Nr. terase: 1
Suprafață terase: 34 mp
An construcție: 2025 (Finalizată)
Structură rezistență: Cărămidă
Regim înălțime: P+1E
Modalitate de plată: Cash sau Credit

Utilități

Ușă intrare
Metal
Izolații termice
Exterior
Ferestre cu geam termopan
PVC PVC
Contorizare
Apometre Contor căldură Contor gaz
Utilități
Curent Apă Canalizare Gaze CATV
Internet
Fibră optică
Amenajare străzi
Asfaltate
Comision
2.3%

Puncte de interes

Mijloace transport
bus-station
VIVO!
Stații autobuz aprox. 260 m
bus-station
VIVO!
Stații autobuz aprox. 337 m
tram-station
Clabucet
Stații tramvai aprox. 799 m
tram-station
Clabucet
Stații tramvai aprox. 948 m
Școală
kindergarten
Gradinita Dumbrava Minunata
Gradinițe aprox. 1032 m
school
Școala Generală Nr. 29 / "Octavian Goga"
Școli aprox. 1326 m
school
Scoala Octavian Goga
Școli aprox. 1351 m
kindergarten
Grăd.Dumbrava minunată
Gradinițe aprox. 1379 m
Recreere
supermarket
VIVO!
Supermarket aprox. 122 m
mall
Complex comercial Polus
Mall aprox. 174 m
sports-ground
Teren Decathlon
Terenuri sport aprox. 335 m
park
Parc
Parcuri aprox. 357 m

Istoricul prețurilor

Acces la informații premium după autentificare
Login Gratuit

Detalii despre preț și costuri

Costuri cu achiziția

Fără credit
Credit ipotecar
Noua casă

i

Costuri adiționale mai puțin știute la achiziție: taxe notariale, comisioane etc.

Acces la informații premium după autentificare
Login Gratuit

Proprietăți similare

Casă individuală cu 5 camere în Florești
318.000 €
Județul Cluj, Florești
5 camere
150 mp
900 mp teren
Casă individuală cu 4 camere în Florești
320.000 €
Județul Cluj, Florești
4 camere
170 mp
120 mp teren
Casă individuală cu 5 camere în Florești
320.000 €
Județul Cluj, Florești
5 camere
140 mp
500 mp teren

Detalii de contact

Waxus Imobiliare

Walter Condello Manager Agentie

Waxus Imobiliare
PRO

Abonează-te la newsletter să fii primul care primește cele mai noi recomandări de proprietăți și sfaturi de la experți.

CONTACT

Creează alertă

Salvează căutarea ca să primești pe email ultimele anunțuri publicate

Case individuale cu 4+ camere de vânzare în Florești, Județul Cluj