Casa deosebita, 200 mp, 500mp teren, zona Faget

389.000 €

Florești, Județul Cluj

Nr. cam.:
4
Sup. utilă:
200 mp
Sup. teren:
500 mp
Tip prop.:
Casă individuală
  • • Locație aproximativă

Descriere casă

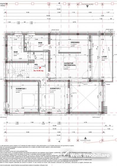
Welt Imobiliare va propune spre vanzare o casa individuala semifinisata, in Faget, in mijlocul naturii, zona Roata Faget, la 5 minute de mers cu masina. Zona este una foarte buna, cu case noi, retrasa de galagia orasului, aerisita, cu verdeata si priveliste frumoasa, la 7 km de centrul orasului. Este situata pe un teren de 500 mp, are o suprafata utila de 175 mp + demisol, cu regim de inaltime D+P+1. Compartimentarea este urmatoarea: La demisol: - garaj dublu si spatiu tehnic; La parter: - 1 living cu loc de luat masa si iesire pe terasa; - 1 bucatarie cu iesire pe terasa; - 1 spatiu de depozitare; - 1 baie. La etaj: - 1 dormitor matrimonial cu dressing si baie proprie; - 2 dormitoare; - a 3-a baie; - 1 balcon. Se preda la stadiul de semifinisat, cu: - gradina amenajata; - exteriorul complet finisat cu decorativa; - utilitati: apa, curent, butelii gaz, fosa septica; - ****************** pe pozitie; - izolatie cu polistiren de 10 cm; - ferestre termoizolante cu tamplarie PVC; - centrala termica proprie; - acoperis tip terasa. Se poate finisa, la cerere. Recomandam aceasta proprietate datorita zonei, a suprafetei optime, atat cea utila cat si a terenului, respectiv a compartimentarii ideale. Pentru programarea unei vizionari, nu ezitati sa ne contactati, Echipa Welt Imobiliare.
Citește mai mult Citește mai puțin
Grădină Curte Centrală proprie 2 Parcări 2 Garaje Bine întreținut (Bună)

Detalii casă

ID anunț: X1KA1126I Copiat! 275013119 Copiat!
Actualizat în: 29 Aprilie 2026
Tip tranzacție: De vânzare prin agent
Suprafață construită: 240 mp
Nr. bucătării: 1
Nr. băi: 3
Nr. balcoane / Terase / Logii: 1
Nr. terase: 1
Suprafață terase: 23 mp
An construcție: 2025 (În construcție)
Structură rezistență: Cărămidă
Regim înălțime: P+1E
Modalitate de plată: Cash sau Credit

Utilități

Ușă intrare
PVC
Izolații termice
Exterior
Ferestre cu geam termopan
PVC
Diverse
Scară interioară
Utilități
Curent Apă Canalizare
Amenajare străzi
Asfaltate Pietruite

Certificat energetic:

Clasa energetică: B

Puncte de interes

Mijloace transport
bus-station
VIVO!
Stații autobuz aprox. 1257 m
bus-station
Metro Nord S
Stații autobuz aprox. 1454 m
tram-station
Clabucet
Stații tramvai aprox. 1574 m
tram-station
Clabucet
Stații tramvai aprox. 1688 m
Școală
kindergarten
Gradinita Dumbrava Minunata
Gradinițe aprox. 1919 m
Recreere
park
Parc
Parcuri aprox. 317 m
supermarket
VIVO!
Supermarket aprox. 1198 m
sports-ground
Teren sportiv
Terenuri sport aprox. 1198 m
mall
Complex comercial Polus
Mall aprox. 1242 m

Detalii despre preț și costuri

Costuri cu achiziția

Fără credit
Credit ipotecar
Noua casă

i

Costuri adiționale mai puțin știute la achiziție: taxe notariale, comisioane etc.

Acces la informații premium după autentificare
Login Gratuit

Proprietăți similare

Casă individuală cu 5 camere în Florești
400.000 €
Județul Cluj, Florești
5 camere
180 mp
400 mp teren
Casă individuală cu 7 camere în Florești
380.000 €
Județul Cluj, Florești
7 camere
200 mp
500 mp teren
Casă individuală cu 4 camere în Florești
389.000 €
Județul Cluj, Florești
4 camere
140 mp
495 mp teren

Detalii de contact

WELT IMOBILIARE

Welt Imobiliare

4.41(24 review-uri)

WELT IMOBILIARE
PRO

Abonează-te la newsletter să fii primul care primește cele mai noi recomandări de proprietăți și sfaturi de la experți.

CONTACT

Creează alertă

Salvează căutarea ca să primești pe email ultimele anunțuri publicate

Case individuale cu 4+ camere de vânzare în Florești, Județul Cluj