Case cuplate pozitionate intr-un cartier privat, 110 mp , 250 teren, zona Terra

185.000 € + TVA

Florești, Județul Cluj

Nr. cam.:
5
Sup. utilă:
110 mp
Sup. teren:
250 mp
Tip prop.:
Individuală
  • • Locație aproximativă

Descriere casă

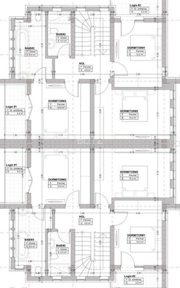
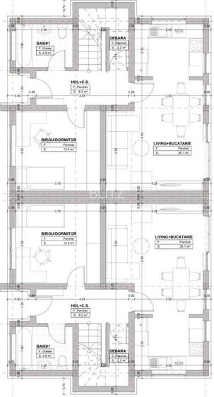
Blitz ofera spre vanzare case cuplate cu predare la stadiul de semifinisat , atent si armonios pozitionate intr-un cartier privat in zona Terra. Numarul total de unitati locative este de 30 case si au un regim de inaltime P + E. Locatia este una retrasa, linistita, si in acelas timp in apropierea tuturor facilitatilor: magazine, cresa / gradinita, statie de bus, farmacie, parc de joaca pentru copii. Complexul propune 6 tipuri de compartimentare cu suprafete cuprinse intre 110 mp - 120 mp si 100 teren - 300 teren. Achizitionarea unei case din etapa de proiect / constructie permite modificari pe partea interioara a proiectului. Primul tip de proiect propunere urmatoarea compartimentare: Parter - hol acces, casa scarii, baie, birou , debara, living + bucatarie Etaj - hol, trei dormitoare, doua bai una fiind matrimoniala si doua balcoane. Podul se poate utiliza ca si spatiu pentru depozitare. Predarea se face la stadiul de semifinisat : peretii gletuiti, incalzire in pardoseala la parter si etaj, geamuri termopan , sape autonivelante, instalatii sanitare si electrice. Exteriorul case se preda izolat termic, constructiile sunt din caramida si acoperite cu tabla. Terenul aferent caselor va fi delimitat cu gard si imprejmuit + amenajata o parcare. Utilitati: apa, gaz, curent, canalizare. Cod oferta / ID BLITZ: P93707
Citește mai mult Citește mai puțin
Nemobilat 1 Parcare

Detalii casă

ID anunț: XFTI1104S Copiat! 261064515 Copiat!
Actualizat în: 18 Februarie 2026
Nr. bucătării: 1
Nr. băi: 3
Nr. balcoane / Terase / Logii: 2
Front stradal: 13 m
An construcție: 2023 (La gri)
Structură rezistență: Beton
Regim înălțime: P+1E

Utilități

Comision
%

Disponibilitate proprietate:

Azi

Puncte de interes

Mijloace transport
bus-station
M-Cartier Terra
Stații autobuz aprox. 1437 m
bus-station
Teilor
Stații autobuz aprox. 1514 m
bus-station
Cetate
Stații autobuz aprox. 1525 m
bus-station
Cetate
Stații autobuz aprox. 1548 m
Recreere
park
Parc
Parcuri aprox. 1074 m
restaurant
Pizza Pizza
Restaurant aprox. 1173 m
supermarket
Profi
Supermarket aprox. 1811 m
sports-ground
Teren Fotbal Sintetic
Terenuri sport aprox. 1863 m

Detalii despre preț și costuri

Costuri cu achiziția

Fără credit
10.587 RON
Credit ipotecar
12.650 RON
Noua casă
1.281 RON+ taxe notariale

i

Costuri adiționale mai puțin știute la achiziție: taxe notariale, comisioane etc.

Proprietăți recomandate

Detalii de contact

BLITZ

BLITZ ROMANIA

4.70(105 review-uri)

BLITZ
PRO

Abonează-te la newsletter să fii primul care primește cele mai noi recomandări de proprietăți și sfaturi de la experți.

CONTACT

Creează alertă

Salvează căutarea ca să primești pe email ultimele anunțuri publicate

Case individuale cu 4+ camere de vânzare în Florești, Județul Cluj