Casa 5 camere de vanzare in Floresti

325.000 €

Florești, Județul Cluj

Nr. cam.:
5
Sup. utilă:
180 mp
Sup. teren:
270 mp
Tip prop.:
Individuală
  • • Locație aproximativă

Descriere casă

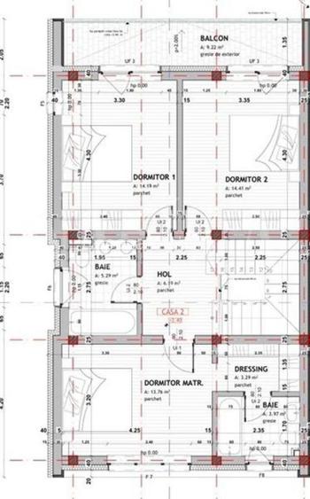
Va oferim spre vanzare o casa tip duplex amplasata in Floresti, in zona Vivo! Cu o suprafata utila de 180 mp, pe un teren de 270 mp. Regimul de inaltime este D+P+E, fiind compartimenta astfel: Demisol: -Open space 60 mp utili. Parter: : -Bucatarie moderna, open-space, integrata cu un living generos, perfect pentru momentele petrecute alaturi de familie si prieteni, cu iesire directa pe terasa de 17mp si curte; -1 Baie; -1 Birou luminos, ideal pentru activitati profesionale sau studiu; -Hol de acces primitor si generos; -Scara interioara cu design modern. -1 tersa; Etaj: 83 mp utili: -1 dormitor matrimomial prevazut cu baie proprie si dressing ; -2 dormitoare, ambele cu acces pe terasa; -1 baie; -Hol cu acces facil catre toate camerele. Casa de preda interior la stadiul de semifinisat: -Sapa autonivelanta; -Pereti tencuiti si gletuiti; -Geamuri tripan, asigurand izolatie termica si fonica optima; -instalatii sanitare si electrice pe pozite; -Centrala termica proprie dotata cu boiler; -Incalzire in pardoseala; Proprietatea beneficeza de toate utilitatile: -Apa; -Gaz; -Curent; -Canalizare; Dispune de 3 locuri de parcare proprii. Imobilul se vinde de pe persoana fizica, pretul nu este purtator de TVA! ID oferta: 152867
Citește mai mult Citește mai puțin
3 Parcări

Detalii casă

ID anunț: X57Q112RK Copiat! 275373805 Copiat!
Actualizat în: 01 Aprilie 2026
Tip tranzacție: De vânzare prin agent
Nr. bucătării: 1
Nr. băi: 3
Nr. balcoane / Terase / Logii: 2
Nr. terase: 1
Învelitoare acoperiș: Tabla
Regim înălțime: D+P+1E
Modalitate de plată: Cash sau Credit

Utilități

Utilități
Curent Apă Canalizare Gaze
Comision
standard

Disponibilitate proprietate:

Imediat

Puncte de interes

Mijloace transport
bus-station
Tautiului S
Stații autobuz aprox. 922 m
bus-station
Tautiului N
Stații autobuz aprox. 936 m
bus-station
Oncos S
Stații autobuz aprox. 968 m
bus-station
Oncos N
Stații autobuz aprox. 981 m
Recreere
park
Parcul Poligon
Parcuri aprox. 720 m
bar
City Cafe
Bar aprox. 1347 m
supermarket
Metro
Supermarket aprox. 1682 m
sports-ground
Teren Fotbal Sintetic
Terenuri sport aprox. 1960 m

Detalii despre preț și costuri

Costuri cu achiziția

Fără credit
Credit ipotecar
Noua casă

i

Costuri adiționale mai puțin știute la achiziție: taxe notariale, comisioane etc.

Acces la informații premium după autentificare
Login Gratuit

Proprietăți similare

Casă individuală cu 5 camere în Florești
318.000 €
Județul Cluj, Florești
5 camere
150 mp
900 mp teren
Casă individuală cu 5 camere în Florești
320.000 €
Județul Cluj, Florești
5 camere
140 mp
500 mp teren
Casă individuală cu 4 camere în Florești
339.000 €
Județul Cluj, Florești
4 camere
125 mp
445 mp teren

Detalii de contact

Napoca Imobiliare

Napoca Imobiliare Manager Agentie

Napoca Imobiliare
PRO

Abonează-te la newsletter să fii primul care primește cele mai noi recomandări de proprietăți și sfaturi de la experți.

CONTACT

Creează alertă

Salvează căutarea ca să primești pe email ultimele anunțuri publicate

Case individuale cu 4+ camere de vânzare în Florești, Județul Cluj