2

Casa parter la gri 155 mp, teren 1.007 mp – Fundulea, 25 min de Bucuresti

120.000 €

Fundulea, Județul Călărași

Nr. cam.:
4
Sup. utilă:
130 mp
Sup. teren:
1.007 mp
Tip prop.:
Individuală
  • • Comision 0%
  • • Locație exactă

Descriere casă

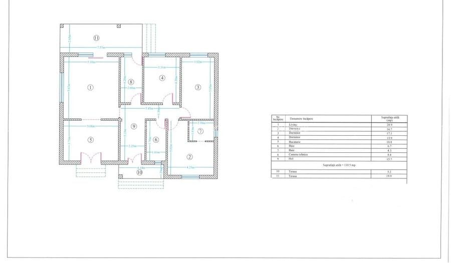
Va propunem spre vanzare o casa parter, edificata pe un teren intravilan generos de 1.007 mp, cu deschidere de 22 metri la strada Cimbrului, situata intr-o zona rezidentiala linistita a orasului Fundulea. Imobilul se remarca printr-o constructie solida si o compartimentare functionala, reprezentand o baza excelenta pentru personalizare si amenajare conform gusturilor viitorului proprietar. Accesul se realizeaza pe drum asfaltat pana in apropierea proprietatii, ultimii aproximativ 60 metri fiind pe drum pietruit, iar latimea strazii este de 9 metri, facilitand accesul auto in conditii optime. Proprietatea beneficiaza de o pozitionare avantajoasa, la aproximativ 25 de minute de Bucuresti, cu acces rapid atat pe DN3, cat si pe Autostrada A2. Detalii proprietate: Suprafata teren: 1.007 mp Deschidere la strada: 22 ml Suprafata construita la sol: 155 mp Suprafata utila: 130 mp Regim de inaltime: Parter Terase: 5,2 mp + 19,9 mp Compartimentare: Living: 28,9 mp 3 dormitoare: 16,7 mp / 17,1 mp / 13,9 mp Bucatarie: 18,8 mp 2 bai: 6,7 mp si 4,3 mp Camera tehnica: 8,4 mp Hol: 15,7 mp Caracteristici constructive: Zidarie din BCA Acoperis Wetterbest Tamplarie Salamander, geam tripan Izolatie exterioara cu polistiren expandat grafitat de 10 cm Instalatiile electrice si sanitare trase pe pozitie Placa de beton intre parter si pod Pod cu spatiu de depozitare, accesibil din lateralul locuintei Utilitati: Curent electric – bransat Fantana proprie Gaze, apa curenta si canalizare – in apropiere, la aproximativ 60 m Avantaje: • Teren generos, imprejmuit • Deschidere mare la strada • Zona linistita, exclusiv rezidentiala • Acces rapid catre Bucuresti • Ideala pentru locuire permanenta sau investitie Pret: 120.000 euro – negociabil 📞
Citește mai mult Citește mai puțin
3 Parcări

Detalii casă

ID anunț: XG3L01003 Copiat! 274881407 Copiat!
Actualizat în: 26 Aprilie 2026
Tip tranzacție: De vânzare prin agent
Suprafață desfășurată: 155 mp
Nr. bucătării: 1
Nr. băi: 2
Nr. terase: 2
Suprafață terase: 25 mp
Nr. fronturi stradale: 1
Front stradal: 22 m
Învelitoare acoperiș: Tabla
An construcție: 2024 (La gri)
Structură rezistență: BCA
Regim înălțime: P
Modalitate de plată: Cash sau Credit

Utilități

Destinație
Rezidențial
Ușă intrare
PVC
Ferestre cu geam termopan
PVC
Utilități
Curent Apă
Amenajare străzi
Asfaltate Pietruite
Comision
0%

Detalii despre preț și costuri

Costuri cu achiziția

Fără credit
Credit ipotecar
Noua casă

i

Costuri adiționale mai puțin știute la achiziție: taxe notariale, comisioane etc.

Acces la informații premium după autentificare
Login Gratuit

Proprietăți similare

Casă individuală cu 5 camere în Frumușani
109.000 €
Județul Călărași, Frumușani
5 camere
190 mp
500 mp teren
Casă individuală cu 5 camere în Frumușani
109.000 €
Județul Călărași, Frumușani
5 camere
190 mp
500 mp teren
Casă individuală cu 4 camere în Sohatu
129.000 €
Județul Călărași, Sohatu
4 camere
200 mp
800 mp teren

Detalii de contact

Abonează-te la newsletter să fii primul care primește cele mai noi recomandări de proprietăți și sfaturi de la experți.

CONTACT

Creează alertă

Salvează căutarea ca să primești pe email ultimele anunțuri publicate

Case individuale cu 4+ camere de vânzare în Fundulea, Județul Călărași