2

114.000 Euro- casa 3 dormitoare, 2 grupuri sanitare, zona Arcasilor

114.000 €

Nord, Galați

Nr. cam.:
4
Sup. utilă:
100 mp
Sup. teren:
177 mp
Tip prop.:
Individuală
  • • Locație aproximativă

Descriere casă

114.000 Euro- casa 3 dormitoare, 2 grupuri sanitare, zona Arcasilor Agentia imobiliara Familia va propune spre cumparare o proprietate deosebita intr-o zona linistita, completconsolidata in 2024, zona Arcasilor- Bariera Traian. Această construcție cu regim de înălțime P , are o amprentă la sol de aproximativ 100 mp și este executata pe fundație de beton și zidărie de cărămidă tencuită manual. Casa beneficiază de tamplarie Salamander cu geam tripan, iar încălzirea se va realiza printr-o centrală proprie pe gaz (achiziționată, dar în curs de montare). Întreaga construcție este izolată la interior cu vată minerală și la exterior cu polistiren de 10 cm, oferind un confort sporit și un consum energetic scăzut. Imobilul dispune de două băi, dintre care una cu acces de la exterior și una la interior. Camerele sunt luminoase și aerisite, imobilul fiind compus din 3 dormitoare, o bucătărie și un living, poziționate spre sud-vest, beneficiind de lumină naturală pe o mare perioadă a zilei. Casa a fost consolidată sub atenta supervizare a proprietarului, cu simț de responsabilitate și folosind materiale de bună calitate. Instalatiile de electricitate de apa si pentru caldura fiind montate noi. Acoperișul a fost înlocuit complet și modernizat, de la asterială până la tabla Lindab de cea mai bună calitate, conferind un plus de estetică și confort locuinței. Terenul are o deschidere stradală de 13 ml iar gardul este realizat din fier forjat, având o suprafață totală de 170 mp. În fața casei există o curte betonată, o jardinierea cocheta cu flori și un gratar rustic din piatra. Utilitățile disponibile sunt: apă, gaz, curent, canalizare, cablu TV și internet. Imobilul are mai multe îmbunătățiri, dar mai necesită finisaje, oferind astfel posibilitatea viitorului proprietar să își pună amprenta personală asupra aspectului final al locuinței. Locuința se vinde așa cum este prezentată în imagini. Designul modern și materialele de calitate folosite pentru consolidarea recentă o recomandă ca o investiție imobiliară excelentă. Prețul de achizitie: 114.000 euro negociabil. Pentru mai multe detalii si pentru a programa o vizionare va asteptam la sediul agentiei noastre din Micro 20 ( Capat Trolebuz), Bulevardul Otelarilor nr.29, bloc K, scara 3 parter, program 10.30-18.30 luni-vineri Aurelian Iordache – 0772* 064* 583 Valentina Vevera – 0746* 716* 535 Agenția Imobiliară Familia
Citește mai mult Citește mai puțin
Curte Centrală proprie 2 Parcări Necesită renovare

Detalii casă

ID anunț: X4S40103I Copiat! 275435919 Copiat!
Actualizat în: 23 Aprilie 2026
Tip tranzacție: De vânzare prin agent
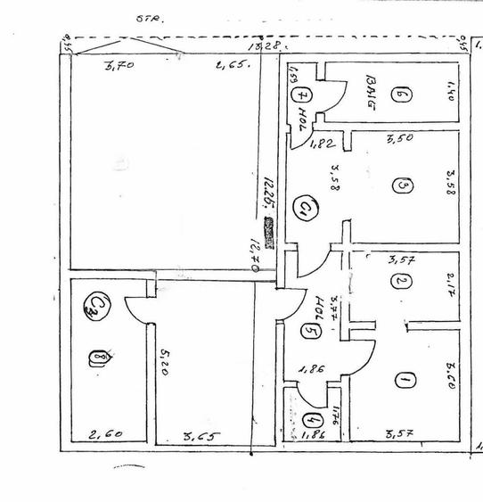
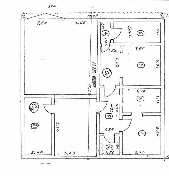
Suprafață construită: 100 mp
Suprafață desfășurată: 100 mp
Nr. bucătării: 1
Nr. băi: 2
Front stradal: 13.0 m
Învelitoare acoperiș: Tabla
Structură rezistență: Cărămidă
Modalitate de plată: Cash sau Credit

Utilități

Destinație
Rezidențial
Ușă intrare
PVC
Izolații termice
Exterior
Ferestre cu geam termopan
PVC
Contorizare
Apometre Contor gaz
Alte spații utile
WC Serviciu
Utilități
Curent Apă Canalizare CATV Gaze Telefon
Internet
Cablu
Amenajare străzi
Iluminat stradal Mijloace de transport în comun Asfaltate
Comision
standard

Disponibilitate proprietate:

Imediat

Puncte de interes

Mijloace transport
tram-station
Strada Vanatori
Stații tramvai aprox. 175 m
tram-station
Depoul nr. 2
Stații tramvai aprox. 268 m
tram-station
UM 1244
Stații tramvai aprox. 681 m
tram-station
Galmopan
Stații tramvai aprox. 738 m
Școală
school
Gradinita Mugurel
Școli aprox. 711 m
school
Scoala Generala nr. 34 Mihai Viteazul
Școli aprox. 1147 m
kindergarten
Gradinita Nicolae Labis
Gradinițe aprox. 1380 m
kindergarten
Centrul de plasament nr. 3
Gradinițe aprox. 1641 m
Recreere
restaurant
Viva Club
Restaurant aprox. 643 m
sports-ground
Viva Club Bowling
Terenuri sport aprox. 685 m
park
Parcul CFR
Parcuri aprox. 988 m
supermarket
Kaufland 2
Supermarket aprox. 1506 m

Detalii despre preț și costuri

Costuri cu achiziția

Fără credit
Credit ipotecar
Noua casă

i

Costuri adiționale mai puțin știute la achiziție: taxe notariale, comisioane etc.

Acces la informații premium după autentificare
Login Gratuit

Proprietăți similare

Casă individuală cu 4 camere în Central
120.000 €
Galați, Central
4 camere
150 mp
142 mp teren
Casă individuală cu 4 camere în Piața Centrală
105.000 €
Galați, Piața Centrală
4 camere
150 mp
300 mp teren
Casă individuală cu 3 camere în Bărboși
110.000 €
Galați, Bărboși
3 camere
105 mp
1.117 mp teren

Detalii de contact

AGENTIA IMOBILIARA FAMILIA

AURELIAN IORDACHE Agent imobiliar

AGENTIA IMOBILIARA FAMILIA

Abonează-te la newsletter să fii primul care primește cele mai noi recomandări de proprietăți și sfaturi de la experți.

CONTACT

Creează alertă

Salvează căutarea ca să primești pe email ultimele anunțuri publicate

Case individuale cu 4+ camere de vânzare în zona Nord, Galați