9

Casă nouă parter, 142 mp utili, teren 750 mp, exterior finalizat, Ghermănești

199.900 €

Ghermănești, Județul Ilfov

Nr. cam.:
4
Sup. utilă:
118 mp
Sup. teren:
750 mp
Tip prop.:
Individuală
  • • Comision 0%
  • • Exclusivitate
  • • Locație exactă
  • • Vizionare prin apel video

Descriere casă

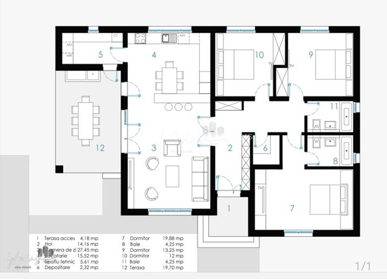
Comision 0%! Vă propun spre vânzare o casă individuală pe parter, situată în Ghermănești – Snagov, într-o zonă de case noi, liniștită și în plină dezvoltare. Proprietatea este amplasată pe un teren de 750 mp și are o suprafață utilă de 142 mp, terasa fiind inclusă în această suprafață. Casa are exteriorul complet finalizat, iar interiorul este pregătit pentru finisaje personalizate, ceea ce oferă viitorului proprietar libertatea de a amenaja totul exact după propriul gust. Unul dintre marile avantaje ale acestei proprietăți este regimul de înălțime pe parter, tot mai căutat de familiile care își doresc confort, funcționalitate și acces facil, fără scări interioare. În plus, casa are placă peste parter, ceea ce adaugă un plus de valoare construcției și deschide posibilități pentru utilizări viitoare. Dotări și avantaje: suprafață utilă 142 mp teren 750 mp casă individuală pe parter exterior finalizat placă peste parter încălzire în pardoseală curent trifazic 380V apă, gaz, curent, canalizare puț propriu fosă gard din lemn pe fundație de beton armat terasă generoasă poate fi achiziționată cu credit bancar Accesul se face pe drum pietruit, la aproximativ 300 m de asfalt. Canalizarea a fost introdusă recent în zonă, ceea ce confirmă dezvoltarea infrastructurii locale și evoluția zonei. Proprietatea este potrivită atât pentru rezidență permanentă, cât și pentru cei care caută o casă nouă aproape de București, într-un cadru aerisit, cu teren generos și posibilitatea de a-și alege singuri finisajele. Preț actualizat: 199.900 € Acest imobil aparține in exclusivitate Agenției Marius Team membra a General Finance Group
Citește mai mult Citește mai puțin
Acceptă animale de companie Grădină Curte Centrală proprie Încălzire prin pardoseală

Detalii casă

ID anunț: XD3A0100R Copiat! 275281435 Copiat!
Actualizat în: 06 Mai 2026
Tip tranzacție: De vânzare prin agent
Suprafață construită: 142 mp
Nr. bucătării: 1
Nr. băi: 2
Nr. terase: 2
Suprafață terase: 24 mp
An construcție: 2025
Regim înălțime: P
Modalitate de plată: Cash sau Credit

Utilități

Destinație
Rezidențial
Pereți
Vopsea lavabilă
Ușă intrare
Metal
Izolații termice
Exterior
Ferestre cu geam termopan
PVC
Contorizare
Contor gaz
Diverse
Telecomandă poartă acces auto
Alte spații utile
WC Serviciu Dressing Spațiu depozitare
Facilități imobil
Acoperiș
Utilități
CATV Gaze Telefon Curent Fosa septică Canalizare Curent trifazic Apă
Internet
Cablu Fibră optică Wireless
Servicii imobil
Supraveghere video
Amenajare străzi
Iluminat stradal Mijloace de transport în comun
Comision
0%

Certificat energetic:

Clasa energetică: A

Puncte de interes

Recreere
park
Padurea Snagov
Parcuri aprox. 763 m
sports-ground
Teren sportiv
Terenuri sport aprox. 1718 m
sports-ground
Teren sportiv
Terenuri sport aprox. 1778 m

Detalii despre preț și costuri

Costuri cu achiziția

Fără credit
Credit ipotecar
Noua casă

i

Costuri adiționale mai puțin știute la achiziție: taxe notariale, comisioane etc.

Acces la informații premium după autentificare
Login Gratuit

Proprietăți similare

Casă individuală cu 5 camere în Berceni
185.000 €
Județul Ilfov, Berceni
5 camere
170 mp
450 mp teren
Casă individuală cu 4 camere în Domnești
215.000 €
Județul Ilfov, Domnești
4 camere
140 mp
350 mp teren
Casă individuală cu 5 camere în Ghermănești
195.000 €
Județul Ilfov, Ghermănești
5 camere
160 mp
480 mp teren

Detalii de contact

Premium Vision & Partners

Administrator Administrator

Premium Vision & Partners

Abonează-te la newsletter să fii primul care primește cele mai noi recomandări de proprietăți și sfaturi de la experți.

CONTACT

Creează alertă

Salvează căutarea ca să primești pe email ultimele anunțuri publicate

Case individuale cu 4+ camere de vânzare în Ghermănești, Județul Ilfov