1

Duplex modern P+1, 110mp utili cu un teren de 310mp

190.000 €

Giarmata, Județul Timiș

Nr. cam.:
5
Sup. utilă:
106 mp
Sup. teren:
330 mp
Tip prop.:
Individuală
  • • Locație aproximativă

Descriere casă

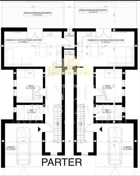
Bindea Imobiliare vă oferă spre vânzare o jumătate de duplex situată în Giarmata Mare, amplasată pe un teren de 330 mp, într-o zonă nouă, în plină dezvoltare, cu acces rapid pe drumul cu 4 benzi către Timișoara și conexiune facilă către autostradă. Imobilul se remarcă printr-o arhitectură modernă, deosebită, cu linii curate, volumetrie echilibrată și suprafețe vitrate generoase, care oferă lumină naturală din plin pe tot parcursul zilei. Suprafața utilă este de 106 mp, compartimentată eficient pentru confort și funcționalitate. Compartimentare: Parter: Hol de acces Living spațios cu bucătărie open space Birou (poate fi transformat în bucătărie închisă, la nevoie) Baie Cameră tehnică Ieșire pe terasa de 22 mp Carport cu acces direct în locuință Etaj: Hol Dormitor matrimonial cu dressing Baie Dormitor secundar Terasă exterioară de 20 mp Zona beneficiază de stație de autobuz către Timișoara, parc pentru copii și toate utilitățile: canalizare, apă, curent și gaz. Cartierul este aerisit, modern și în continuă dezvoltare, ceea ce face proprietatea potrivită atât pentru locuire, cât și pentru investiție. Locuința se predă la cheie, cu finisaje finalizate și băile complet amenajate și echipate. Noul proprietar își poate alege materialele și cromatica pentru finisaje – de la gresie și faianță până la parchet – având astfel posibilitatea de a-și pune amprenta personală asupra întregului spațiu. Este cadrul ideal pentru a-ți amenaja apartamentul exact așa cum îți dorești, fără compromisuri. Imobilul beneficiază de toate utilitățile necesare: apă, gaz și canalizare. Pentru detalii suplimentare și programarea unei vizionări, vă stăm la dispoziție.
Citește mai mult Citește mai puțin
Încălzire prin pardoseală 4 Parcări Zonă rurală

Detalii casă

ID anunț: XEHU11062 Copiat! 275013121 Copiat!
Actualizat în: 16 Aprilie 2026
Tip tranzacție: De vânzare prin agent
Nr. bucătării: 1
Nr. băi: 2
Nr. terase: 2
An construcție: 2026 (Finalizată)
Modalitate de plată: Cash sau Credit

Utilități

Utilități
Curent Apă Canalizare CATV Gaze Telefon
Internet
Cablu
Amenajare străzi
Iluminat stradal Mijloace de transport în comun Asfaltate
Comision
standard

Disponibilitate proprietate:

Imediat

Puncte de interes

Recreere
park
Parcul Izvorului
Parcuri aprox. 966 m

Istoricul prețurilor

Acces la informații premium după autentificare
Login Gratuit

Detalii despre preț și costuri

Costuri cu achiziția

Fără credit
Credit ipotecar
Noua casă

i

Costuri adiționale mai puțin știute la achiziție: taxe notariale, comisioane etc.

Acces la informații premium după autentificare
Login Gratuit

Proprietăți similare

Casă individuală cu 5 camere în Giarmata
175.000 €
Județul Timiș, Giarmata
5 camere
134 mp
500 mp teren
Casă individuală cu 4 camere în Giarmata
175.000 €
Județul Timiș, Giarmata
4 camere
120 mp
250 mp teren
Casă individuală cu 4 camere în Giarmata
199.000 €
Județul Timiș, Giarmata
4 camere
150 mp
740 mp teren

Detalii de contact

Bindea Imobiliare

Marius Bindea Administrator

Bindea Imobiliare
PRO

Abonează-te la newsletter să fii primul care primește cele mai noi recomandări de proprietăți și sfaturi de la experți.

Feedback apel

CONTACT

Creează alertă

Salvează căutarea ca să primești pe email ultimele anunțuri publicate

Case individuale cu 4+ camere de vânzare în Giarmata, Județul Timiș